Oasis Residence

Eladó téglalakás
Budapest, VII. kerület, Családi ház

+ 9 kép 1/12
74 000 000 Ft74 M Ft 1 193 548 Ft/m2
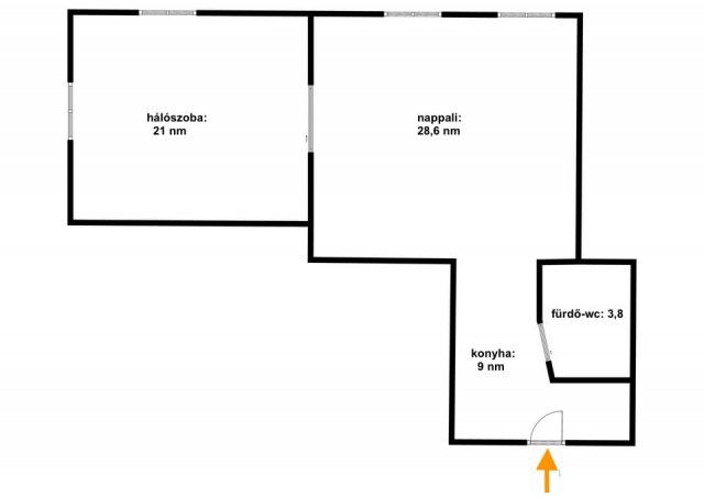
2 szoba
62 m2
Családi ház

Részletes adatok

Fűtés: Gázkazán
Emelet: 1. emelet
Közmű: Víz, Gáz, Villany, Csatorna
Energetikai besorolás: Nem adta meg a hirdető

Az OTP Bank lakáshitel ajánlataFizetett hirdetés

+36 70 454
Németh Tamás
referens

Érdekel az OTP Bank kedvezményes lakáshitel ajánlata? *

* A kérdésre „Igen” válasz bejelölése esetén, az „Üzenet küldése” gombra kattintva kijelentem, hogy az OTP Bank Nyrt. Adatkezelési tájékoztatójának tartalmát megismertem és tudomásul vettem.

Eladó téglalakás leírása

A Városliget közelében kínálunk eladásra egy felújított állapotú, első emeleti saroklakást, amely ideális választás fiatal felnőttek számára, akik saját otthonra vagy befektetési célra keresnek lakást.
Ez a 62 négyzetméteres, két szobás, világos és tágas nappalival rendelkező otthon tökéletesen ötvözi a modern életstílust a belváros nyújtotta előnyökkel. A lakás elrendezése praktikus,
a nagy belmagasság pedig még inkább fokozza a térérzetet, lehetővé téve, hogy kedvenc bútorait stílusosan elhelyezhesse. Az ablakok redőnnyel és szúnyoghálóval biztosítják a nyugodt pihenést.
A fa nyílászárók eredeti mintára készített, thermo üveggel és kiváló szigetelő tulajdonsággal rendelkeznek. A napfényes ingatlan MIKA gáz (cirko) fűtéssel és klímával van felszerelve, így a komfortérzet garantált.

Lakás:
-teljes műszaki és esztétikai felújítás történt 10 éve
-inverteres klíma beszerelése és nyílászáró csere 7 éve
-frissen festett falak
-egyedi gázfűtés, saját vízórával mért fogyasztás
-egyedi megrendelésre készült, jó állapotú konyhabútor
-a meleg vizet átfolyós gázkazán biztosítja.

Társasház:
-rendezett, karbantartott állapotú
- a lépcsőház és a belső homlokzat 2020-ban lett kifestve
-közös költség 25.000 Ft/hó.

Környék:
-ellátottsága kiváló, hiszen a közelben számos bolt, étterem és szórakozási lehetőség található
-a közeli Városliget sétára, sportra, programok szervezésére minden évszakban remek helyszín.

Közlekedés:
-M4 és M2 metró 5 perc sétával elérhető
- 30-as, 5-ös és 7-es buszok 3 percre.

Hirdetés feltöltve: 2025. 11. 14. Utoljára módosítva: 2026. 01. 13.

2 szobás téglalakások ára Budapesten

Ebből az összehasonlításból megtudhatod, hogyan viszonyul a lakás ára a környékbeli téglalakások átlagos árához. Ez nem azt jelenti, hogy ennyivel olcsóbb vagy drágább, mint amennyit a lakás ér, hanem hogy ennyivel tér el a környékbeli átlagtól.

Ennek a m² ára
VII. kerület m² ár
Budapest m² ár
1194 e Ft
1548 e Ft 23%
1700 e Ft 30%
Ennek az ára
VII. kerület átlagár
Budapest átlagár
74 M Ft m Ft
83.3 m Ft 11%
120.5 m Ft 39%

Az ingatlan elhelyezkedése

Cím: Budapest, VII. kerület, Családi ház

Eladó ingatlanok a környékről

Eladó téglalakás
Eladó téglalakás

VII. kerület

124.9 M Ft
3 szoba
74 m2
Eladó téglalakás
Eladó téglalakás

VII. kerület, Zsinagógával szemben

89 M Ft
2 szoba
62 m2
Eladó téglalakás
Eladó téglalakás

VIII. kerület, Palotanegyed, Rákóczi út

185 M Ft
5 szoba
121 m2
Eladó téglalakás
Eladó téglalakás

VI. kerület, Külső Terézváros, Szív utca

119.5 M Ft
3 szoba
94 m2
Eladó téglalakás
Eladó téglalakás

VII. kerület

139 M Ft
3 szoba
86 m2
Eladó téglalakás
Eladó téglalakás

VII. kerület, Külső Erzsébetváros, Dohány utca

135 M Ft
3 szoba
86 m2
Eladó téglalakás
Eladó téglalakás

XIV. kerület, Barack utca 16

111.539 M Ft
2 + 1 szoba
65 m2
Eladó téglalakás
Eladó téglalakás

VII. kerület, Külső Erzsébetváros, Rózsa utca

210 M Ft
5 szoba
124 m2
Eladó téglalakás
Eladó téglalakás

III. kerület, Óbuda, Szomolnok utca

89.9 M Ft
2 + 2 szoba
96 m2
Eladó téglalakás
Eladó téglalakás

XIV. kerület, Barack utca 16

133.251 M Ft
2 + 1 szoba
74 m2
Eladó téglalakás
Eladó téglalakás

VII. kerület

75 M Ft
1 + 2 szoba
60 m2
Eladó téglalakás
Eladó téglalakás

VII. kerület

125 M Ft
3 szoba
128 m2
Eladó téglalakás
Eladó téglalakás

XIV. kerület, Barack utca 16

96.655 M Ft
2 + 1 szoba
65 m2
Eladó téglalakás
Eladó téglalakás

XIV. kerület, Barack utca 16

93.73 M Ft
2 + 1 szoba
68 m2
Eladó téglalakás
Eladó téglalakás

VI. kerület, Külső Terézváros, Szófia utca

112.9 M Ft
4 szoba
103 m2
Eladó téglalakás
Eladó téglalakás

VII. kerület

105 M Ft
2 szoba
42 m2
Eladó téglalakás
Eladó téglalakás

XIV. kerület, Barack utca 16

93.392 M Ft
2 + 1 szoba
67 m2
Eladó téglalakás
Eladó téglalakás

III. kerület, Óbudaisziget, Folyamőr utca

69.9 M Ft
1 szoba
25 m2
Eladó téglalakás
Eladó téglalakás

VII. kerület

170 M Ft
6 szoba
104 m2
Eladó téglalakás
Eladó téglalakás

VII. kerület, Belső Erzsébetváros, Rózsa utca

170 M Ft
5 szoba
124 m2
Eladó téglalakás
Eladó téglalakás

V. kerület, Belváros, Belgrád rakpart

78 M Ft
1 + 1 szoba
42 m2
Eladó téglalakás
Eladó téglalakás

VII. kerület

117.3 M Ft
4 szoba
138 m2
Eladó téglalakás
Eladó téglalakás

VII. kerület

185 M Ft
3 szoba
128 m2
Eladó téglalakás
Eladó téglalakás

XIV. kerület, Barack utca 16

114.317 M Ft
2 + 1 szoba
68 m2

Falusi CSOK ingatlanok

Eladó családi ház
Eladó családi ház

Dombrád

8 M Ft
2 szoba
85 m2
Eladó családi ház
Eladó családi ház

Szederkény

107.9 M Ft
6 szoba
224 m2
Eladó családi ház
Eladó családi ház

Tengőd

32 M Ft
4 szoba
118 m2
Eladó családi ház
Eladó családi ház

Homokbödöge

24.9 M Ft
3 szoba
102 m2
Eladó családi ház
Eladó családi ház

Hercegszántó

7 M Ft
3 szoba
120 m2
Eladó családi ház
Eladó családi ház

Csurgó

23.5 M Ft
4 szoba
80 m2
Eladó családi ház
Eladó családi ház

Kaposmérő

68 M Ft
2 + 2 szoba
150 m2
Eladó családi ház
Eladó családi ház

Szentkirályszabadja

119.9 M Ft
6 szoba
185 m2