BAM Living

Eladó téglalakás
Budapest, VII. kerület, 3. emelet

+ 8 kép 1/11
99 900 000 Ft99.9 M Ft 999 000 Ft/m2
2 szoba
100 m2
3. emelet
építés éve:1800

Részletes adatok

Állapot: Átlagos
Fűtés: Gázkazán
Parkolás: Garázs
Közmű: Víz, Gáz, Villany, Csatorna
Extrák: Lift
Energetikai besorolás: Nem adta meg a hirdető

Az OTP Bank lakáshitel ajánlataFizetett hirdetés

+36 70 412
Rusznák Zoltán
referens

Érdekel az OTP Bank kedvezményes lakáshitel ajánlata? *

* A kérdésre „Igen” válasz bejelölése esetén, az „Üzenet küldése” gombra kattintva kijelentem, hogy az OTP Bank Nyrt. Adatkezelési tájékoztatójának tartalmát megismertem és tudomásul vettem.

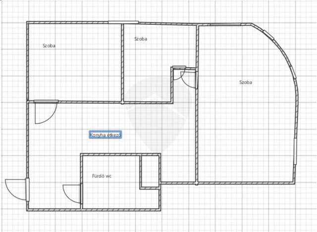
Eladó téglalakás leírása

???? Eladó lakás a belváros szívében – Blaha Lujza téren, két lakássá osztható, kiváló befektetés!

Eladásra kínálok egy 96 m²-es, 3. emeleti, világos és tágas lakást Budapest belvárosában, a Blaha Lujza tér közvetlen közelében.
Az ingatlan egy szép, rendezett házban található, kulturált lakóközösséggel és kiváló közlekedéssel.

???? Főbb jellemzők:

Alapterület: 96 m²

Emelet: 3.

Két lakássá osztható – külön bejárat is kialakítható

Világos, jól alakítható terek

Szép, rendezett társasház

Csendes lakás, mégis a város szívében

???? Kiváló befektetési lehetőség:
A lakás elhelyezkedése és kialakíthatósága miatt ideális befektetőknek, rövid- és hosszú távú kiadásra, vagy akár két külön lakásként is hasznosítható.

Hirdetés feltöltve: 2025. 11. 07. Utoljára módosítva: 2025. 11. 19.

2 szobás téglalakások ára Budapesten

Ebből az összehasonlításból megtudhatod, hogyan viszonyul a lakás ára a környékbeli téglalakások átlagos árához. Ez nem azt jelenti, hogy ennyivel olcsóbb vagy drágább, mint amennyit a lakás ér, hanem hogy ennyivel tér el a környékbeli átlagtól.

Ennek a m² ára
VII. kerület m² ár
Budapest m² ár
999 e Ft
1578 e Ft 37%
1686 e Ft 41%
Ennek az ára
VII. kerület átlagár
Budapest átlagár
99.9 M Ft m Ft
82.9 m Ft -21%
90.7 m Ft -10%

Az ingatlan elhelyezkedése

Cím: Budapest, VII. kerület, 3. emelet

Eladó ingatlanok a környékről

Eladó téglalakás
Eladó téglalakás

VIII. kerület, Palotanegyed, Rákóczi út

190 M Ft
5 szoba
121 m2
Eladó téglalakás
Eladó téglalakás

X. kerület, Gyárdűlő

79.9 M Ft
2 szoba
52 m2
Eladó téglalakás
Eladó téglalakás

VII. kerület, Belső Erzsébetváros, Erzsébet körút

89.9 M Ft
1 + 1 szoba
71 m2
Eladó téglalakás
Eladó téglalakás

VII. kerület

59.8 M Ft
2 szoba
38 m2
Eladó téglalakás
Eladó téglalakás

VII. kerület

95 M Ft
2 szoba
71 m2
Eladó téglalakás
Eladó téglalakás

XI. kerület, Gellérthegy, Gombócz Zoltán utca

142 M Ft
2 + 1 szoba
71 m2
Eladó téglalakás
Eladó téglalakás

VII. kerület, Külső Erzsébetváros, Rottenbiller utca

95 M Ft
5 szoba
108 m2
Eladó téglalakás
Eladó téglalakás

VII. kerület, Belső Erzsébetváros, Dob utca

212 M Ft
4 szoba
180 m2
Eladó téglalakás
Eladó téglalakás

XIV. kerület, Herminamező

84.9 M Ft
3 szoba
49 m2
Eladó téglalakás
Eladó téglalakás

VII. kerület, Belső Erzsébetváros, Murányi

75 M Ft
3 szoba
76 m2
Eladó téglalakás
Eladó téglalakás

XIV. kerület, Kiszugló, Kövér Lajos utca

168 M Ft
3 + 1 szoba
84 m2
Eladó téglalakás
Eladó téglalakás

VII. kerület

139 M Ft
3 szoba
86 m2
Eladó téglalakás
Eladó téglalakás

VII. kerület, Belső Erzsébetváros, Erzsébet körút

160 M Ft
3 szoba
88 m2
Eladó téglalakás
Eladó téglalakás

VII. kerület, Külső Erzsébetváros, Kazinczy utca

47.9 M Ft
1 szoba
23 m2
Eladó téglalakás
Eladó téglalakás

IV. kerület, Káposztásmegyer, Károlyi István utca

62 M Ft
1 szoba
34 m2
Eladó téglalakás
Eladó téglalakás

V. kerület, Belváros, Petőfi Sándor utca

134 M Ft
2 szoba
59 m2
Eladó téglalakás
Eladó téglalakás

VII. kerület

155.9 M Ft
3 szoba
129 m2
Eladó téglalakás
Eladó téglalakás

VII. kerület

105 M Ft
2 szoba
42 m2
Eladó téglalakás
Eladó téglalakás

VII. kerület

125 M Ft
3 szoba
128 m2
Eladó téglalakás
Eladó téglalakás

VII. kerület

125 M Ft
4 szoba
118 m2
Eladó téglalakás
Eladó téglalakás

VII. kerület

53.5 M Ft
1 szoba
35 m2
Eladó téglalakás
Eladó téglalakás

XII. kerület

69.8 M Ft
1 szoba
36 m2
Eladó téglalakás
Eladó téglalakás

VII. kerület, Külső Erzsébetváros, Hársfa utca

90 M Ft
2 szoba
69 m2
Eladó téglalakás
Eladó téglalakás

VII. kerület

34.9 M Ft
1 szoba
20 m2

Falusi CSOK ingatlanok

Eladó családi ház
Eladó családi ház

Tápiógyörgye

32 M Ft
3 szoba
86 m2
Eladó családi ház
Eladó családi ház

Vasszécseny

20 M Ft
2 szoba
139 m2
Eladó családi ház
Eladó családi ház

Bag

16.9 M Ft
6 szoba
160 m2
Eladó ikerház
Eladó ikerház

Tápióbicske

28.5 M Ft
4 szoba
74 m2
Eladó családi ház
Eladó családi ház

Enese

82.9 M Ft
4 szoba
90 m2
Eladó családi ház
Eladó családi ház

Jakabszállás

69.99 M Ft
1 + 4 szoba
91 m2
Eladó családi ház
Eladó családi ház

Petrivente, Kossuth Lajos utca

31.9 M Ft
3 szoba
127 m2
Eladó családi ház
Eladó családi ház

Enese

78.9 M Ft
4 szoba
90 m2