Astora Art House

Eladó téglalakás
Budapest, VII. kerület

+ 7 kép 1/10
59 800 000 Ft59.8 M Ft 1 573 684 Ft/m2
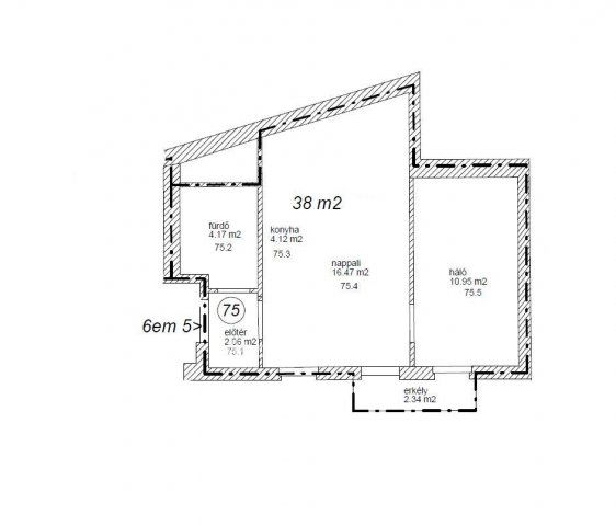
2 szoba
38 m2
építés éve:2022

Részletes adatok

Fűtés: Elektromos
Emelet: földszint
Extrák: Lift
Energetikai besorolás: Nem adta meg a hirdető

Az OTP Bank lakáshitel ajánlataFizetett hirdetés

+36 70 393
Rácz Ildikó Éva
OTP - Vágujhelyi Zsuzsanna

Érdekel az OTP Bank kedvezményes lakáshitel ajánlata? *

* A kérdésre „Igen” válasz bejelölése esetén, az „Üzenet küldése” gombra kattintva kijelentem, hogy az OTP Bank Nyrt. Adatkezelési tájékoztatójának tartalmát megismertem és tudomásul vettem.

Eladó téglalakás leírása

Hamarosan átadásra kerülő újépítésű lakások eladók a Keleti pályaudvar közelében. Kínálatunk 33nm-es garzontól a 98nm-es 4 szobásig terjed.
A központi elhelyezkedés miatt a befektetésre is kiválóan alkalmas ingatlanok egy liftes, 6 emeletes társasházban találhatóak.
Az OTP Ingatlanpont teljes körű ügyintézéssel áll az eladók és a vevők rendelkezésére! Az ingatlan finanszírozásához kedvezményes hitel- és lízingkonstrukciókat, lakástakarék-pénztári megoldásokat kínálunk.
További információkért kérem hívjon vagy írjon!
We can recommend the assistance of a reliable (English speaking) lawyer, if so requested and can also offer help at arranging the administrative matters related to the acquisition. If you wish to send an English language notification of your interest, please send a message thereof indicating your phone number (and/or e-mail address) so we can contact you without language difficulties.

Referencia szám: M239370

Hirdetés feltöltve: 2025. 10. 06. Utoljára módosítva: 2026. 01. 28.

2 szobás téglalakások ára Budapesten

Ebből az összehasonlításból megtudhatod, hogyan viszonyul a lakás ára a környékbeli téglalakások átlagos árához. Ez nem azt jelenti, hogy ennyivel olcsóbb vagy drágább, mint amennyit a lakás ér, hanem hogy ennyivel tér el a környékbeli átlagtól.

Ennek a m² ára
VII. kerület m² ár
Budapest m² ár
1574 e Ft
1593 e Ft 1%
1704 e Ft 8%
Ennek az ára
VII. kerület átlagár
Budapest átlagár
59.8 M Ft m Ft
96.9 m Ft 38%
120.5 m Ft 50%

Az ingatlan elhelyezkedése

Cím: Budapest, VII. kerület

Eladó ingatlanok a környékről

Eladó téglalakás
Eladó téglalakás

VII. kerület

155.9 M Ft
3 szoba
129 m2
Eladó panellakás
Eladó panellakás

X. kerület

84 M Ft
3 szoba
74 m2
Eladó téglalakás
Eladó téglalakás

XIV. kerület, Kiszugló, Kövér Lajos utca

168 M Ft
3 + 1 szoba
84 m2
Eladó családi ház
Eladó családi ház

XXII. kerület, Budafok, Baross utca

222 M Ft
6 + 1 szoba
200 m2
Eladó téglalakás
Eladó téglalakás

VI. kerület, Külső Terézváros, Szófia utca

112.9 M Ft
4 szoba
103 m2
Eladó téglalakás
Eladó téglalakás

XI. kerület, Lágymányos, Móricz Zsigmond körtér

89.5 M Ft
2 szoba
52 m2
Eladó téglalakás
Eladó téglalakás

VII. kerület

184.9 M Ft
8 szoba
128 m2
Eladó téglalakás
Eladó téglalakás

I. kerület, Krisztinaváros, Feszty Árpád utca

78.99 M Ft
1 szoba
28 m2
Eladó téglalakás
Eladó téglalakás

VII. kerület, Külső Erzsébetváros, Izabella utca

89 M Ft
3 szoba
106 m2
Eladó téglalakás
Eladó téglalakás

VII. kerület, Belső Erzsébetváros, Klauzál tér

85 M Ft
2 szoba
77 m2
Eladó téglalakás
Eladó téglalakás

V. kerület, Belváros, Belgrád rakpart

78 M Ft
1 + 1 szoba
42 m2
Eladó téglalakás
Eladó téglalakás

VII. kerület

125 M Ft
3 szoba
128 m2
Eladó téglalakás
Eladó téglalakás

VII. kerület

125 M Ft
4 szoba
118 m2
Eladó téglalakás
Eladó téglalakás

VII. kerület, Külső Erzsébetváros, Rózsa utca

210 M Ft
5 szoba
124 m2
Eladó téglalakás
Eladó téglalakás

VIII. kerület, Palotanegyed, Rákóczi út

185 M Ft
5 szoba
121 m2
Eladó téglalakás
Eladó téglalakás

XIII. kerület

135.896 M Ft
3 szoba
64 m2
Eladó téglalakás
Eladó téglalakás

VII. kerület

139 M Ft
3 szoba
86 m2
Eladó téglalakás
Eladó téglalakás

VII. kerület, Belső Erzsébetváros, Murányi

75 M Ft
3 szoba
76 m2
Eladó téglalakás
Eladó téglalakás

VII. kerület

87.5 M Ft
3 + 1 szoba
104 m2
Eladó téglalakás
Eladó téglalakás

VI. kerület, Külső Terézváros, Szív utca

124.9 M Ft
3 szoba
94 m2
Eladó téglalakás
Eladó téglalakás

IX. kerület, József Attila lakótelep

75 M Ft
2 szoba
55 m2
Eladó téglalakás
Eladó téglalakás

I. kerület, Krisztinaváros, Széna tér

189 M Ft
4 szoba
90 m2
Eladó téglalakás
Eladó téglalakás

III. kerület, Óbudaisziget, Folyamőr utca

69.9 M Ft
1 szoba
25 m2
Eladó téglalakás
Eladó téglalakás

VII. kerület

210 M Ft
5 szoba
124 m2

Falusi CSOK ingatlanok

Eladó családi ház
Eladó családi ház

Dág

39.9 M Ft
2 szoba
80 m2
Eladó családi ház
Eladó családi ház

Nagyhegyes

80 M Ft
2 szoba
94 m2
Eladó családi ház
Eladó családi ház

Pécsvárad

140 M Ft
2 szoba
79 m2
Eladó családi ház
Eladó családi ház

Törtel

32.9 M Ft
3 szoba
68 m2
Eladó családi ház
Eladó családi ház

Törtel

59.9 M Ft
3 szoba
66 m2
Eladó családi ház
Eladó családi ház

Kesztölc

37.9 M Ft
3 szoba
75 m2
Eladó családi ház
Eladó családi ház

Pécsvárad

79.9 M Ft
4 szoba
100 m2
Eladó családi ház
Eladó családi ház

Hegyeshalom

190 M Ft
2 szoba
120 m2