Pesti Házak

Eladó téglalakás
Budapest, VI. kerület, földszint

+ 4 kép 1/7
210 000 000 Ft210 M Ft 2 164 948 Ft/m2
4 szoba
97 m2
földszint
építés éve:2023

Részletes adatok

Fűtés: Egyéb
Extrák: Lift
Energetikai besorolás: Nem adta meg a hirdető

Az OTP Bank lakáshitel ajánlataFizetett hirdetés

+36 30 400
Papp-Horváth Katalin
Otp Ingatlanpont Falk Miksa

Érdekel az OTP Bank kedvezményes lakáshitel ajánlata? *

* A kérdésre „Igen” válasz bejelölése esetén, az „Üzenet küldése” gombra kattintva kijelentem, hogy az OTP Bank Nyrt. Adatkezelési tájékoztatójának tartalmát megismertem és tudomásul vettem.

Eladó téglalakás leírása

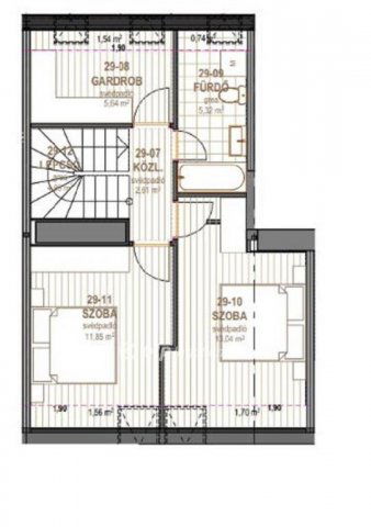
BELSŐ KÉTSZINTES , 97nm-es, 4 szobás , tágas 27 m2-es világos nappalival és TÉLIKERTTEL ELADÓ.

Budapest 6. kerületében, a pesti Broadway közelében, 15 új lakás kerül értékesítésre. Az új projekt, az UNESCO világörökség részét képező műemlék védettség alatt álló épület felső szintjén és tetőterében helyezkedik el. Műszakilag és esztétikailag is igazodik a környék exkluzív elvárásaihoz. Méretüket tekintve 64 -154 nm alapterületű lakások választhatók, melyek egyszintes, kétszintes illetve belső háromszintes luxuslakások nagyméretű tetőterasszal, télikerttel minden igényt kielégítő kivitelben készülnek. Műszaki tartalmát tekintve, külső nyílászárók rendszere: Gealan S9000 ötkamrás, 3 rétegű, kiváló hang és hőszigetelést biztosító rendszer, elektromos redőnyökkel. A melegburkolatú helyiségekben oldalfali fan-coilos, a hidegburkolatú helyiségekben padlófűtéses megoldás van. A hőszivattyúk saját vezérlő automatikával rendelkeznek, melyek a fűtési-hűtési kört is tudják vezérelni, időjárásfüggő szabályozással működnek.

Referencia szám: M227615

Hirdetés feltöltve: 2025. 12. 09. Utoljára módosítva: 2025. 12. 09.

4 szobás téglalakások ára Budapesten

Ebből az összehasonlításból megtudhatod, hogyan viszonyul a lakás ára a környékbeli téglalakások átlagos árához. Ez nem azt jelenti, hogy ennyivel olcsóbb vagy drágább, mint amennyit a lakás ér, hanem hogy ennyivel tér el a környékbeli átlagtól.

Ennek a m² ára
VI. kerület m² ár
Budapest m² ár
2165 e Ft
1835 e Ft -18%
1739 e Ft -24%
Ennek az ára
VI. kerület átlagár
Budapest átlagár
210 M Ft m Ft
195.9 m Ft -7%
182.4 m Ft -15%

Az ingatlan elhelyezkedése

Cím: Budapest, VI. kerület, földszint

Eladó ingatlanok a környékről

Eladó téglalakás
Eladó téglalakás

III. kerület, Óbudaisziget, Folyamőr utca

76.9 M Ft
1 szoba
25 m2
Eladó téglalakás
Eladó téglalakás

VI. kerület

129 M Ft
4 szoba
123 m2
Eladó téglalakás
Eladó téglalakás

XIV. kerület, Kiszugló, Kövér Lajos utca

168 M Ft
3 + 1 szoba
84 m2
Eladó téglalakás
Eladó téglalakás

V. kerület

138.113 M Ft
1 + 1 szoba
58 m2
Eladó üzlethelyiség
Eladó üzlethelyiség

II. kerület, Országút, Margit körút

6.999 M Ft
5 m2
Eladó téglalakás
Eladó téglalakás

III. kerület, Óbuda, Szomolnok utca

89.9 M Ft
2 + 2 szoba
96 m2
Eladó téglalakás
Eladó téglalakás

VI. kerület, Külső Terézváros, Podmaniczky utca

260 M Ft
3 szoba
117 m2
Eladó téglalakás
Eladó téglalakás

VI. kerület

175 M Ft
1 szoba
100 m2
Eladó téglalakás
Eladó téglalakás

VI. kerület, Belső Terézváros, Teréz körút

51 M Ft
1 szoba
49 m2
Eladó téglalakás
Eladó téglalakás

I. kerület, Krisztinaváros, Feszty Árpád utca

78.99 M Ft
1 szoba
28 m2
Eladó téglalakás
Eladó téglalakás

VI. kerület, Belső Terézváros, Andrássy út

329.9 M Ft
146 m2
Eladó téglalakás
Eladó téglalakás

VII. kerület, Belső Erzsébetváros, Rózsa utca

170 M Ft
5 szoba
124 m2
Eladó téglalakás
Eladó téglalakás

VI. kerület, Belső Terézváros, Bajcsy-Zsilinszky út

149 M Ft
3 szoba
98 m2
Eladó téglalakás
Eladó téglalakás

VI. kerület, Belső Terézváros, Andrássy út

329.9 M Ft
3 szoba
146 m2
Eladó téglalakás
Eladó téglalakás

VI. kerület

136 M Ft
5 szoba
125 m2
Eladó telek
Eladó telek

II. kerület

289 M Ft
1328 m²
Eladó téglalakás
Eladó téglalakás

VII. kerület, Belső Erzsébetváros, Erzsébet körút

89.9 M Ft
1 + 1 szoba
71 m2
Eladó téglalakás
Eladó téglalakás

VI. kerület, Külső Terézváros, Szinyei Merse utca

114.9 M Ft
3 szoba
93 m2
Eladó téglalakás
Eladó téglalakás

V. kerület, Belváros, Petőfi Sándor utca

134 M Ft
2 szoba
59 m2
Eladó téglalakás
Eladó téglalakás

III. kerület, Rómaifürdő, Királyok útja

139 M Ft
3 szoba
65 m2
Eladó téglalakás
Eladó téglalakás

VI. kerület, Belső Terézváros, Teréz körúton

150 M Ft
3 szoba
105 m2
Eladó téglalakás
Eladó téglalakás

VI. kerület, Külső Terézváros, Szófia utca

114.9 M Ft
4 szoba
103 m2
Eladó téglalakás
Eladó téglalakás

VI. kerület

221.99 M Ft
8 szoba
150 m2
Eladó téglalakás
Eladó téglalakás

VIII. kerület, Palotanegyed, Rákóczi út

190 M Ft
5 szoba
121 m2

Falusi CSOK ingatlanok

Eladó téglalakás
Eladó téglalakás

Balatonszemes

119.9 M Ft
2 szoba
81 m2
Eladó családi ház
Eladó családi ház

Bajánsenye

34.9 M Ft
5 szoba
130 m2
Eladó családi ház
Eladó családi ház

Pétfürdő

36.5 M Ft
3 szoba
100 m2
Eladó családi ház
Eladó családi ház

Pétfürdő

74.9 M Ft
3 szoba
89 m2
Eladó családi ház
Eladó családi ház

Farmos

38.9 M Ft
2 szoba
46 m2
Eladó családi ház
Eladó családi ház

Pétfürdő

44.9 M Ft
2 szoba
75 m2
Eladó családi ház
Eladó családi ház

Vasszécseny, Szövetkezet

29.9 M Ft
2 + 1 szoba
85 m2
Eladó családi ház
Eladó családi ház

Elek

88.9 M Ft
5 szoba
274 m2