Eladó téglalakás
Budapest, VI. kerület, földszint

+ 5 kép 1/8
99 000 000 Ft99 M Ft 1 941 176 Ft/m2
1 + 1 szoba
51 m2
földszint
építés éve:1920

Részletes adatok

Állapot: Felújított
Fűtés: Gázkazán
Extrák: Lift
Energetikai besorolás: Nem adta meg a hirdető

Az OTP Bank lakáshitel ajánlataFizetett hirdetés

+36 70 206
Tamásné Mocsári Ildikó
referens

Érdekel az OTP Bank kedvezményes lakáshitel ajánlata? *

* A kérdésre „Igen” válasz bejelölése esetén, az „Üzenet küldése” gombra kattintva kijelentem, hogy az OTP Bank Nyrt. Adatkezelési tájékoztatójának tartalmát megismertem és tudomásul vettem.

Eladó téglalakás leírása

Budapest ikonikus sugárútján, az Andrássy úton, melyet gyakran a magyar Champs-Élysées-ként emlegetnek , a Cseh Nagykövetség közvetlen közelében kínálunk eladásra egy magasföldszinti ingatlant.

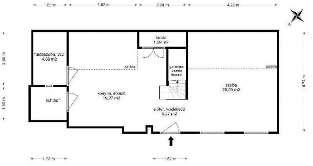
A tulajdoni lapon 51 nm alapterület szerepel, azonban a kialakított 18 nm-es galériával és a kizárólagos használatú, 4 nm-es lichthof területtel együtt összesen 73 nm hasznos élettérrel rendelkezik.

Az ingatlan teljes körűen felújított, műszakilag és esztétikailag egyaránt kifogástalan állapotban van.

2017-ben alakították át jelenlegi formájára lakberendező bevonásával, prémium színvonalon.

Az átalakítás során teljes gépészeti rendszer- és vezetékhálózat-csere történt, modern padlófűtés, új szaniterek és beépített bútorok kerültek beépítésre.

Az alaprajzot teljes mértékben újragondolták. Az ablakok korszerű, hőszigetelt üvegezést kaptak, a fűtésről és a melegvízről kondenzációs gázkazán gondoskodik. A tágas belmagasság lehetővé tette egy 18 nm-es galéria kialakítását. Az enteriőrt a 19. századi Andrássy útról készült képek, valamint eredeti, felújított díszítőelemek, például korlátok és lámpatartók, teszik egyedivé, megőrizve a klasszikus hangulatot.

Az ingatlan belső terei átgondoltan, praktikus elrendezéssel készültek.

A bejáraton belépve egy előtér fogad, amely közvetlen összeköttetésben áll a balra található konyha-étkező résszel, illetve a jobbra eső nappalival. A földszinten mindenhol padlófűtés működik. A nappaliban egy térdfallal leválasztott dolgozósarok is helyet kapott. A galériára vezető lépcsővel szemben egy 2 nm-es háztartási helyiség található, a lépcső alatti részek pedig tárolóként lettek hasznosítva.

A fürdőszoba, amely a konyha felől közelíthető meg, zuhanyzóval és toalettel került kialakításra. Ugyanezen a részen található a lakáshoz kizárólagosan tartozó, intim jellegű, 4 nm-es lichthof is, melyet hangulatos, kivilágított pihenősarokká alakítottak.

A galéria két részre tagolódik: a nappali felett egy kb. 9 nm-es, radiátoros fűtéssel felszerelt, ajtóval szeparált hálófülke kapott helyet, melyhez franciaerkély nyílik, rálátással a nappalira. A konyha fölött egy szintén kb. 9 nm-es, nyitott, üvegkorláttal határolt galéria áll rendelkezésre, amelyen vendégágy és gardróbszekrény is elfért.

A felújítás során külön mosókonyha került kialakításra mosó- és szárítógéppel, valamint modern, teljesen gépesített konyha (beépített sütő, indukciós főzőlap, mosogatógép, fagyasztós hűtő). A biztonságról riasztórendszer, a komfortérzetről pedig hűtő-fűtő klíma gondoskodik.

Kiváló elhelyezkedésének és adottságainak köszönhetően az ingatlan befektetésként is remek lehetőség. Jelenleg is bérbe van adva, havi 420.000 Ft bérleti díjért.

Referencia szám: M313496-ZE

Hirdetés feltöltve: 2025. 10. 06. Utoljára módosítva: 2025. 10. 06.

2 szobás téglalakások ára Budapesten

Ebből az összehasonlításból megtudhatod, hogyan viszonyul a lakás ára a környékbeli téglalakások átlagos árához. Ez nem azt jelenti, hogy ennyivel olcsóbb vagy drágább, mint amennyit a lakás ér, hanem hogy ennyivel tér el a környékbeli átlagtól.

Ennek a m² ára
VI. kerület m² ár
Budapest m² ár
1941 e Ft
1758 e Ft -10%
1684 e Ft -15%
Ennek az ára
VI. kerület átlagár
Budapest átlagár
99 M Ft m Ft
102.5 m Ft 3%
90.7 m Ft -9%

Az ingatlan elhelyezkedése

Cím: Budapest, VI. kerület, földszint

Eladó ingatlanok a környékről

Eladó téglalakás
Eladó téglalakás

VI. kerület, Belső Terézváros, Andrássy út

329.9 M Ft
3 szoba
146 m2
Eladó téglalakás
Eladó téglalakás

VI. kerület, Király utca

130 M Ft
4 szoba
95 m2
Eladó téglalakás
Eladó téglalakás

XVI. kerület

54.999 M Ft
2 szoba
48 m2
Eladó téglalakás
Eladó téglalakás

VII. kerület

64.9 M Ft
1 szoba
36 m2
Eladó családi ház
Eladó családi ház

XXI. kerület, Királyerdő

269 M Ft
5 + 1 szoba
206 m2
Eladó téglalakás
Eladó téglalakás

VI. kerület, Szondi utca

130 M Ft
2 + 1 szoba
99 m2
Eladó családi ház
Eladó családi ház

XV. kerület, Rákospalota

99.5 M Ft
3 szoba
109 m2
Eladó panellakás
Eladó panellakás

XV. kerület, Pestújhely

74.9 M Ft
3 szoba
64 m2
Eladó téglalakás
Eladó téglalakás

VII. kerület

78.9 M Ft
2 szoba
38 m2
Eladó téglalakás
Eladó téglalakás

VI. kerület

139 M Ft
6 szoba
130 m2
Eladó téglalakás
Eladó téglalakás

VI. kerület, Belső Terézváros, Bajcsy-Zsilinszky út

149 M Ft
3 szoba
98 m2
Eladó téglalakás
Eladó téglalakás

VI. kerület

366.8 M Ft
132 m²
132 m2
Eladó téglalakás
Eladó téglalakás

VI. kerület

129 M Ft
4 szoba
123 m2
Eladó téglalakás
Eladó téglalakás

X. kerület, Óhegy

52 M Ft
2 szoba
40 m2
Eladó téglalakás
Eladó téglalakás

II. kerület

179 M Ft
5 szoba
116 m2
Eladó családi ház
Eladó családi ház

III. kerület

320 M Ft
5 szoba
310 m2
Eladó téglalakás
Eladó téglalakás

XVIII. kerület, Liptáktelep

77.99 M Ft
3 szoba
72 m2
Eladó panellakás
Eladó panellakás

XV. kerület, Újpalota

82.9 M Ft
3 szoba
71 m2
Eladó téglalakás
Eladó téglalakás

VI. kerület

103.5 M Ft
3 szoba
72 m2
Eladó téglalakás
Eladó téglalakás

VI. kerület, Külső Terézváros, Oktogon

76 M Ft
3 szoba
69 m2
Eladó panellakás
Eladó panellakás

XI. kerület, Kelenföld

69.6 M Ft
2 szoba
48 m2
Eladó téglalakás
Eladó téglalakás

VI. kerület

52.5 M Ft
2 szoba
46 m2
Eladó panellakás
Eladó panellakás

IV. kerület

73.5 M Ft
2 + 1 szoba
71 m2
Eladó téglalakás
Eladó téglalakás

V. kerület, Belváros

79.9 M Ft
1 szoba
39 m2

Falusi CSOK ingatlanok

Eladó családi ház
Eladó családi ház

Nemesbőd

87 M Ft
5 szoba
120 m2
Eladó családi ház
Eladó családi ház

Becsehely

18 M Ft
4 szoba
134 m2
Eladó családi ház
Eladó családi ház

Rédics

51 M Ft
3 szoba
107 m2
Eladó családi ház
Eladó családi ház

Koppányszántó, Fő u 211

9.9 M Ft
2 szoba
55 m2
Eladó téglalakás
Eladó téglalakás

Hegyeshalom

35 M Ft
43 m2
Eladó téglalakás
Eladó téglalakás

Fonyód

39.9 M Ft
4 szoba
67 m2
Eladó családi ház
Eladó családi ház

Hernádnémeti

19.9 M Ft
2 szoba
62 m2
Eladó családi ház
Eladó családi ház

Bátya

11.5 M Ft
2 szoba
83 m2