Metrodom

Eladó téglalakás
Budapest, V. kerület, 4. emelet

+ 4 kép 1/7
339 000 000 Ft339 M Ft 2 627 907 Ft/m2
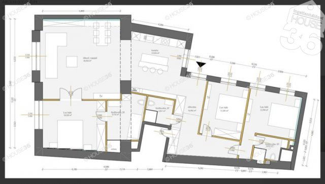
4 szoba
129 m2
4. emelet
építés éve:1950

Részletes adatok

Állapot: Felújított
Fűtés: Gázkazán
Energetikai besorolás: Nem adta meg a hirdető

Az OTP Bank lakáshitel ajánlataFizetett hirdetés

+36 70 336
Vezsenyi Gábor
HOUSE36 Ingatlanbázis Kft.

Érdekel az OTP Bank kedvezményes lakáshitel ajánlata? *

* A kérdésre „Igen” válasz bejelölése esetén, az „Üzenet küldése” gombra kattintva kijelentem, hogy az OTP Bank Nyrt. Adatkezelési tájékoztatójának tartalmát megismertem és tudomásul vettem.

Eladó téglalakás leírása

Budapest egyik legismertebb sétáló utcájában található ez a rendkívül kifinomult 3,7 méter belmagasságú luxus lakás.
Neves tervezőiroda által megálmodott és egyedileg kivitelezett értékálló polgári lakás. Egyedileg tervezett bútorok, minőségi hidegburkolatok, led fény világítások mellett különleges Onyx kőből épitett bárpult is található.

Figyelem az adatlap megbízónktól kapott adatok alapján készült, pontosságáért felelősséget nem tudunk vállalni!

A HOUSE36 kínálatában található összes ingatlannal kapcsolatban tudok felvilágosítást nyújtani!
Hívjon bizalommal!
Szolgáltatásaink Kereső ügyfeleink számára ingyenesek.
Az iroda legfrissebb, aktuális kínálatát a HOUSE36 saját weboldalán találja!

Hirdetés feltöltve: 2025. 12. 14. Utoljára módosítva: 2025. 12. 14.

4 szobás téglalakások ára Budapesten

Ebből az összehasonlításból megtudhatod, hogyan viszonyul a lakás ára a környékbeli téglalakások átlagos árához. Ez nem azt jelenti, hogy ennyivel olcsóbb vagy drágább, mint amennyit a lakás ér, hanem hogy ennyivel tér el a környékbeli átlagtól.

Ennek a m² ára
V. kerület m² ár
Budapest m² ár
2628 e Ft
2349 e Ft -12%
1736 e Ft -51%
Ennek az ára
V. kerület átlagár
Budapest átlagár
339 M Ft m Ft
274.5 m Ft -23%
181.7 m Ft -87%

Az ingatlan elhelyezkedése

Cím: Budapest, V. kerület, 4. emelet

Eladó ingatlanok a környékről

Eladó ipari ingatlan
Eladó ipari ingatlan

IX. kerület

10.9 M Ft
26 m2
Eladó ipari ingatlan
Eladó ipari ingatlan

IX. kerület

10.9 M Ft
22 m2
Eladó téglalakás
Eladó téglalakás

VIII. kerület

59.9 M Ft
2 szoba
55 m2
Eladó téglalakás
Eladó téglalakás

V. kerület, Belváros, Váci utca

329.9 M Ft
4 szoba
112 m2
Eladó téglalakás
Eladó téglalakás

V. kerület, Lipótváros

420 M Ft
4 szoba
147 m2
Eladó panellakás
Eladó panellakás

XIX. kerület

56.9 M Ft
1 + 2 szoba
59 m2
Eladó téglalakás
Eladó téglalakás

V. kerület, Belváros, Aranykéz utca

339.9 M Ft
4 szoba
121 m2
Eladó téglalakás
Eladó téglalakás

XVIII. kerület

101 M Ft
3 szoba
67 m2
Eladó panellakás
Eladó panellakás

VIII. kerület

59.9 M Ft
2 szoba
56 m2
Eladó panellakás
Eladó panellakás

XV. kerület

78 M Ft
4 szoba
69 m2
Eladó téglalakás
Eladó téglalakás

V. kerület, Belváros

260 M Ft
3 szoba
98 m2
Eladó téglalakás
Eladó téglalakás

V. kerület, Belváros, Vörösmarty tér

495.3 M Ft
3 + 1 szoba
135 m2
Eladó téglalakás
Eladó téglalakás

V. kerület

319 M Ft
3 szoba
107 m2
Eladó téglalakás
Eladó téglalakás

V. kerület, Belváros

230.328 M Ft
1 szoba
44 m2
Eladó családi ház
Eladó családi ház

XX. kerület

79.9 M Ft
6 szoba
102 m2
Eladó panellakás
Eladó panellakás

III. kerület, Békásmegyer

74.9 M Ft
3 szoba
57 m2
Eladó téglalakás
Eladó téglalakás

XVIII. kerület, Szent Imre kertváros

69.9 M Ft
3 szoba
67 m2
Eladó téglalakás
Eladó téglalakás

XIII. kerület, Újlipótváros

102.9 M Ft
2 szoba
66 m2
Eladó családi ház
Eladó családi ház

II. kerület

224.9 M Ft
4 + 1 szoba
218 m2
Eladó ikerház
Eladó ikerház

III. kerület, Remetehegy

398.4 M Ft
5 szoba
189 m2
Eladó téglalakás
Eladó téglalakás

XIII. kerület, Angyalföld

85.5 M Ft
2 szoba
45 m2
Eladó téglalakás
Eladó téglalakás

V. kerület

319 M Ft
2 szoba
99 m2
Eladó téglalakás
Eladó téglalakás

V. kerület, Lipótváros, Luxus minőségű lakás

116 M Ft
51 m2
Eladó téglalakás
Eladó téglalakás

V. kerület

130 M Ft
2 szoba
55 m2

Falusi CSOK ingatlanok

Eladó családi ház
Eladó családi ház

Recsk

59 M Ft
2 szoba
70 m2
Eladó családi ház
Eladó családi ház

Devecser

62.49 M Ft
5 szoba
180 m2
Eladó családi ház
Eladó családi ház

Pétfürdő

74.9 M Ft
3 szoba
89 m2
Eladó családi ház
Eladó családi ház

Bajánsenye

34.9 M Ft
5 szoba
130 m2
Eladó családi ház
Eladó családi ház

Enese

78.9 M Ft
4 szoba
90 m2
Eladó családi ház
Eladó családi ház

Kenyeri

39.9 M Ft
3 szoba
94 m2
Eladó családi ház
Eladó családi ház

Csurgó

10 M Ft
2 szoba
80 m2
Eladó családi ház
Eladó családi ház

Bakonycsernye

39 M Ft
3 szoba
350 m2