Avico Greentop

Eladó téglalakás
Budapest, V. kerület, Belváros, 5. emelet

+ 17 kép 1/20
190 000 000 Ft190 M Ft 1 881 188 Ft/m2
3 szoba
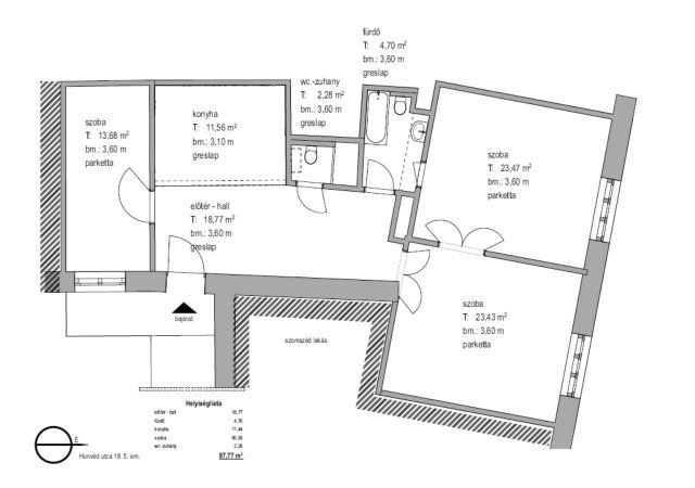
101 m²
5. emelet
építés éve:1905

Részletes adatok

Állapot: Felújított
Fűtés: Házközponti
Emelet: 5. emelet
Extrák: Lift
Energetikai besorolás: Nem adta meg a hirdető

Az OTP Bank lakáshitel ajánlataFizetett hirdetés

+36 70 376
Fehér Judit
referens

Érdekel az OTP Bank kedvezményes lakáshitel ajánlata? *

* A kérdésre „Igen” válasz bejelölése esetén, az „Üzenet küldése” gombra kattintva kijelentem, hogy az OTP Bank Nyrt. Adatkezelési tájékoztatójának tartalmát megismertem és tudomásul vettem.

Eladó téglalakás leírása

Eladó felújított, tágas, 3 szobás lakás Budapest szívében
Ritka lehetőség a belváros egyik legkedveltebb részén! A Honvéd utcában kínálunk megvételre egy összesen 101 m²-es, teljeskörűen felújított, nagy terekkel rendelkező, 3 szobás, 2 fürdőszobás gyönyörű otthont.
A lakás 2025-ben átfogó felújításon esett át, melynek során új műanyag, redőnyös kültéri nyílászárókat, modern burkolatokat és minőségi szanitereket kapott. Az ingatlan elosztása rendkívül praktikus: különnyíló szobák, egy kádas és egy zuhanyzós fürdőszoba is szolgálja a kényelmet – így családoknak, pároknak és akár kiadásra is ideális választás.
Az 5. emeleti elhelyezkedésnek köszönhetően a lakás világos, csendes, a jó állapotú, karbantartott társasház pedig lifttel rendelkezik, ami még kényelmesebbé teszi a mindennapokat. A közös költség tartalmazza a víz és fűtés díját.
Főbb jellemzők:
• Alapterület: 101 m²
• Elosztás: 3 szoba
• 2 fürdőszoba (kád + zuhany)
• 2025-ben teljeskörű felújítás
• Új műanyag nyílászárók, redőnyök
• 5. emelet, liftes ház
• Csendes, tágas, azonnal költözhető
Irányár: 190.000.000 Ft
Ha szeretnél egy frissen felújított, elegáns és kiváló lokációjú lakást Budapest belvárosában, ne hagyd ki ezt a lehetőséget! Kiváló befektetés és kényelmes otthon egyben. ...TOVÁBBI, TÖBBEZRES INGATLAN KÍNÁLAT: www.gdn-ingatlan.hu - GDN azonosító: 390404

Hirdetés feltöltve: 2025. 12. 04. Utoljára módosítva: 2026. 02. 17.

3 szobás téglalakások ára Budapesten

Ebből az összehasonlításból megtudhatod, hogyan viszonyul a lakás ára a környékbeli téglalakások átlagos árához. Ez nem azt jelenti, hogy ennyivel olcsóbb vagy drágább, mint amennyit a lakás ér, hanem hogy ennyivel tér el a környékbeli átlagtól.

Ennek a m² ára
Belváros m² ár
V. kerület m² ár
Budapest m² ár
1881 e Ft
2276 e Ft 17%
2382 e Ft 21%
1696 e Ft -11%
Ennek az ára
Belváros átlagár
V. kerület átlagár
Budapest átlagár
190 M Ft m Ft
211.2 m Ft 10%
214.5 m Ft 11%
131.2 m Ft -45%

Az ingatlan elhelyezkedése

Cím: Budapest, V. kerület, Belváros, 5. emelet

Eladó ingatlanok a környékről

V. kerület, Lipótváros
Eladó téglalakás

Budapest, V. kerület

420 M Ft
4 szoba
147 m²
V. kerület, Lipótváros, Báthory utca
Eladó téglalakás

Budapest, V. kerület

166.497 M Ft
2 + 1 szoba
78 m²
XIV. kerület, Alsórákos, Dorozsmai utca 203-209
Eladó téglalakás

Budapest, XIV. kerület

94.9 M Ft
2 szoba
50 m²
V. kerület, Belváros
Eladó téglalakás

Budapest, V. kerület

260 M Ft
3 szoba
98 m²
V. kerület, Belváros, Aranykéz utca
Eladó téglalakás

Budapest, V. kerület

339.9 M Ft
4 szoba
121 m²
VII. kerület, Belső Erzsébetváros, Kertész
Eladó téglalakás

Budapest, VII. kerület

52.9 M Ft
1 szoba
30 m²
XIII. kerület
Eladó téglalakás

Budapest, XIII. kerület

58.9 M Ft
1 szoba
36 m²
XIII. kerület
Eladó téglalakás

Budapest, XIII. kerület

82.4 M Ft
2 szoba
45 m²
V. kerület, Lipótváros, Bazilikára panorámás lakás
Eladó téglalakás

Budapest, V. kerület

329.565 M Ft
3 szoba
177 m²
V. kerület, Lipótváros, Luxus minőségű lakás
Eladó téglalakás

Budapest, V. kerület

116 M Ft
51 m²
V. kerület, Bajcsy-Zsilinszky út
Eladó téglalakás

Budapest, V. kerület

130 M Ft
3 szoba
76 m²
V. kerület, Lipótváros, Széchenyi utca
Eladó téglalakás

Budapest, V. kerület

283 M Ft
5 szoba
157 m²
V. kerület
Eladó téglalakás

Budapest, V. kerület

339.9 M Ft
4 szoba
121 m²
VIII. kerület, Józsefváros, Práter utca
Eladó téglalakás

Budapest, VIII. kerület

75.49 M Ft
1 szoba
42 m²
XIV. kerület
Eladó téglalakás

Budapest, XIV. kerület

85.7 M Ft
2 szoba
56 m²
VII. kerület, Belső Erzsébetváros, Kertész 35
Eladó téglalakás

Budapest, VII. kerület

99.5 M Ft
3 szoba
77 m²
XVI. kerület
Eladó családi ház

Budapest, XVI. kerület

128.9 M Ft
3 szoba
157 m²
V. kerület
Eladó téglalakás

Budapest, V. kerület

319 M Ft
3 szoba
107 m²
V. kerület
Eladó téglalakás

Budapest, V. kerület

169 M Ft
10 szoba
100 m²
V. kerület, Belváros
Eladó téglalakás

Budapest, V. kerület

225.948 M Ft
1 szoba
44 m²
VII. kerület, Külső Erzsébetváros, Dohány utca
Eladó téglalakás

Budapest, VII. kerület

56 M Ft
1 szoba
34 m²
IV. kerület
Eladó családi ház

Budapest, IV. kerület

105 M Ft
2 szoba
91 m²
V. kerület, Lipótváros, TETŐTERASZOS, PANORÁMÁS LAKÁS
Eladó téglalakás

Budapest, V. kerület

304.8 M Ft
3 szoba
81 m²
V. kerület, Belváros, Vörösmarty tér
Eladó téglalakás

Budapest, V. kerület

495.3 M Ft
3 + 1 szoba
135 m²

Falusi CSOK ingatlanok

Szigliget
Eladó családi ház

Szigliget

299 M Ft
3 szoba
95 m²
Becsehely
Eladó családi ház

Becsehely

22.9 M Ft
2 szoba
99 m²
Nagyharsány
Eladó téglalakás

Nagyharsány

22.5 M Ft
3 szoba
71 m²
Cece
Eladó családi ház

Cece

69.8 M Ft
4 szoba
215 m²
Vácegres
Eladó családi ház

Vácegres

68.5 M Ft
3 szoba
116 m²
Tatárszentgyörgy
Eladó családi ház

Tatárszentgyörgy

29.9 M Ft
3 szoba
75 m²
Balatonfenyves
Eladó családi ház

Balatonfenyves

149 M Ft
8 szoba
270 m²
Vajszló
Eladó családi ház

Vajszló

21.49 M Ft
2 szoba
91 m²