Eladó téglalakás
Budapest, V. kerület, 3. emelet

+ 1 kép 1/4
286 000 000 Ft286 M Ft 1 894 040 Ft/m2
3 szoba
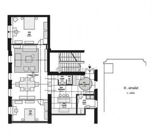
151 m2
3. emelet
építés éve:1890

Részletes adatok

Állapot: Felújítandó
Fűtés: Gázkazán
Extrák: Lift
Energetikai besorolás: Nem adta meg a hirdető

Az OTP Bank lakáshitel ajánlataFizetett hirdetés

+36 1 690
Drevnó Béla
Duna House Kispest

Érdekel az OTP Bank kedvezményes lakáshitel ajánlata? *

* A kérdésre „Igen” válasz bejelölése esetén, az „Üzenet küldése” gombra kattintva kijelentem, hogy az OTP Bank Nyrt. Adatkezelési tájékoztatójának tartalmát megismertem és tudomásul vettem.

Eladó téglalakás leírása

Ritka befektetési lehetőség a Belváros szívében!

Eladó a Hold utcában, a Batthyány-örökmécses közelében egy 151 nm-es, felújítandó nagypolgári lakás, egy liftes, 3 emeletes ház legfelső szintjén.
A lakás két helyrajzi számon szerepel, így akár két különálló lakás is kialakítható ideális rövid vagy hosszú távú kiadásra, prémium bérlői környezetben.
Igény esetén a közvetlenül mellette lévő, 169 nm-es lakás is megvásárolható, így több mint 320 nm-es ingatlanportfólió hozható létre egyedülálló lokációban.

Miért befektetés?

Ritkaságnak számít ekkora alapterület a belváros patinás részén
Két külön lakás kialakítható, magas hozamlehetőséggel
Kiemelten keresett lokáció: Parlament, Szabadság tér, üzleti negyed pár perc sétára
Jelentős értéknövekedési potenciál felújítást követően

Ez az ingatlan azoknak szól, akik biztos, prémium lokációban keresnek értéknövelő befektetést.
A Duna House teljes kínálatával kapcsolatban forduljanak hozzám bizalommal!

Bankfüggetlen pénzügyi szakembereink tanácsadással, ügyintézéssel tudják segíteni Önöket álmaik, céljaik megvalósításában!

Vegye igénybe díjmentes konzultációinkat!

https://www.facebook.com/otthonkonnyeden

Referencia szám: LK067591

Hirdetés feltöltve: 2025. 10. 18. Utoljára módosítva: 2025. 10. 18.

3 szobás téglalakások ára Budapesten

Ebből az összehasonlításból megtudhatod, hogyan viszonyul a lakás ára a környékbeli téglalakások átlagos árához. Ez nem azt jelenti, hogy ennyivel olcsóbb vagy drágább, mint amennyit a lakás ér, hanem hogy ennyivel tér el a környékbeli átlagtól.

Ennek a m² ára
V. kerület m² ár
Budapest m² ár
1894 e Ft
2348 e Ft 19%
1688 e Ft -12%
Ennek az ára
V. kerület átlagár
Budapest átlagár
286 M Ft m Ft
212.6 m Ft -35%
132.9 m Ft -115%

Az ingatlan elhelyezkedése

Cím: Budapest, V. kerület, 3. emelet

Eladó ingatlanok a környékről

Eladó garázs
Eladó garázs

XIII. kerület, Angyalföld

6.9 M Ft
12 m2
Eladó téglalakás
Eladó téglalakás

II. kerület, Törökvész, Gábor Áron utca

165 M Ft
3 szoba
88 m2
Eladó téglalakás
Eladó téglalakás

VII. kerület

85.9 M Ft
2 szoba
48 m2
Eladó téglalakás
Eladó téglalakás

V. kerület, Belváros, Aranykéz utca

359.99 M Ft
4 szoba
121 m2
Eladó téglalakás
Eladó téglalakás

VI. kerület

67.5 M Ft
2 szoba
45 m2
Eladó téglalakás
Eladó téglalakás

V. kerület, Belváros

371.45 M Ft
3 szoba
176 m2
Eladó téglalakás
Eladó téglalakás

VIII. kerület, Józsefváros, Nagy Templom utca

125 M Ft
4 + 2 szoba
152 m2
Eladó téglalakás
Eladó téglalakás

XIII. kerület, Angyalföld

94.9 M Ft
3 szoba
54 m2
Eladó téglalakás
Eladó téglalakás

VI. kerület, Külső Terézváros, Szív utca

119.5 M Ft
3 szoba
94 m2
Eladó ikerház
Eladó ikerház

XVIII. kerület, Ganzkertváros

148 M Ft
5 szoba
120 m2
Eladó téglalakás
Eladó téglalakás

V. kerület, Lipótváros, Széchenyi utca

283 M Ft
5 szoba
157 m2
Eladó téglalakás
Eladó téglalakás

V. kerület, Lipótváros, Október 6. utca

319 M Ft
3 szoba
107 m2
Eladó téglalakás
Eladó téglalakás

VII. kerület, Belső Erzsébetváros, Rózsa utca

172 M Ft
5 szoba
124 m2
Eladó téglalakás
Eladó téglalakás

VI. kerület, Külső Terézváros, Szófia utca

119.9 M Ft
4 szoba
103 m2
Eladó téglalakás
Eladó téglalakás

V. kerület, Lipótváros

420 M Ft
4 szoba
147 m2
Eladó téglalakás
Eladó téglalakás

V. kerület, Belváros

779.7 M Ft
6 szoba
310 m2
Eladó téglalakás
Eladó téglalakás

V. kerület, Lipótváros, Luxus minőségű lakás

116 M Ft
51 m2
Eladó téglalakás
Eladó téglalakás

V. kerület, Lipótváros, Báthory utca

170.867 M Ft
2 + 1 szoba
78 m2
Eladó panellakás
Eladó panellakás

IV. kerület, Káposztásmegyer

100 M Ft
3 szoba
69 m2
Eladó téglalakás
Eladó téglalakás

V. kerület, Belváros, Vörösmarty tér

508.3 M Ft
3 + 1 szoba
135 m2
Eladó téglalakás
Eladó téglalakás

V. kerület, Belváros, Gerlóczy utca

224.9 M Ft
3 + 1 szoba
90 m2
Eladó téglalakás
Eladó téglalakás

V. kerület, Lipótváros, Báthory utca

170.867 M Ft
2 + 1 szoba
78 m2
Eladó családi ház
Eladó családi ház

XXII. kerület, Budafok, Baross utca

239 M Ft
6 + 1 szoba
200 m2
Eladó téglalakás
Eladó téglalakás

XIII. kerület, Angyalföld, Fiastyúk utca

41.99 M Ft
1 + 1 szoba
34 m2

Falusi CSOK ingatlanok

Eladó családi ház
Eladó családi ház

Szentkirályszabadja

119.9 M Ft
6 szoba
185 m2
Eladó családi ház
Eladó családi ház

Bag

39.5 M Ft
3 szoba
80 m2
Eladó családi ház
Eladó családi ház

Kislőd

35.9 M Ft
4 szoba
148 m2
Eladó családi ház
Eladó családi ház

Kétpó

14.9 M Ft
1 + 2 szoba
86 m2
Eladó családi ház
Eladó családi ház

Zsámbok

33 M Ft
2 szoba
80 m2
Eladó ikerház
Eladó ikerház

Seregélyes

94.9 M Ft
4 szoba
107 m2
Eladó családi ház
Eladó családi ház

Cece

56.95 M Ft
5 szoba
170 m2
Eladó családi ház
Eladó családi ház

Újhartyán, Epres utca

59.9 M Ft
3 szoba
103 m2