River Life

Eladó téglalakás
Budapest, IX. kerület, Ferencváros, Soroksári út 58, 9. emelet

1/1
115 080 748 Ft115.081 M Ft 2 557 350 Ft/m2
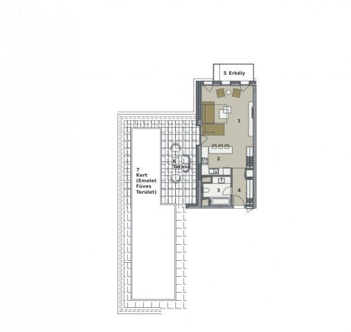
1 szoba
45 m2
9. emelet
építés éve:2024

Részletes adatok

Fűtés: Egyéb
Energetikai besorolás: Nem adta meg a hirdető

Az OTP Bank lakáshitel ajánlataFizetett hirdetés

+36 70 771
City Pearl Értékesítési Iroda

Érdekel az OTP Bank kedvezményes lakáshitel ajánlata? *

* A kérdésre „Igen” válasz bejelölése esetén, az „Üzenet küldése” gombra kattintva kijelentem, hogy az OTP Bank Nyrt. Adatkezelési tájékoztatójának tartalmát megismertem és tudomásul vettem.

Eladó téglalakás leírása

Az új otthon öröme a legkisebb kezdeti ráfordítással!
Prémium lakások 10-90%-os fizetési ütemezéssel.

Idei átadású lakások a Millennium-negyed új városközpontjában csak nálunk!
I. ütem átadása: 2024
II. ütem átadása: 2026

5% állandó rozsdaövezeti kedvezmény a 9. kerületben csak nálunk!
Új, prémium minőségű, közel zéró energiaigényű otthonok Budapest új városközpontjában, sétatávolságra a Dunától! Természetes fényben úszó lakások, hatalmas üvegfelületekkel, tágas életterek (275 cm vagy annál nagyobb belmagasság), zöld teraszok, kertek, tetőkertek. Mindezekhez tárolók, mélygarázs, 10 lakásos lépcsőházanként két lift, 0-24 órás recepció is társul.

A City Pearl Budapest folyamatosan fejlődő 9. kerületében épül, ahonnan a főváros számos kulturális és történelmi helyszíne könnyedén megközelíthető. A Művészetek Palotája (MÜPA) és a Nemzeti Színház 3 perc sétára található. A Bálna, a Váci utca és a Lánchíd pedig mindössze 15 perc alatt elérhető.

Elkészült a mintalakásunk is! Kérj időpontot, és nézd meg élőben milyen is lehet egy lakás Budapest egyik legkülönlegesebb fejlesztésében.

City Pearl – egy új város a városban!

Energetikai besorolás: AA

Találd meg új otthonod a City Pearlben!

Budapest IX. kerületének szívében most nemcsak egy modern, értékálló otthont vásárolhatsz, hanem különleges ajánlatainknak köszönhetően kényelmesebben és olcsóbban tudsz beköltözni – vagy nagyobb megtakarítást is elérhetsz a listaárhoz képest.

Két ütem, két exkluzív előny:

I. ütem – költözésre kész lakások ajándék konyhagép-csomaggal: az első ütem még elérhető lakásainak új vásárlói most beépíthető konyhagépeket kapnak ajándékba, ezzel is gyorsítva és segítve a beköltözésüket.

II. ütem – elővásárlóknak m² kedvezménnyel: a második ütem lakásaiban az új vásárlók négyzetméter alapú árkedvezményhez juthatnak – így akár több millió forintot is megtakaríthatnak új, energiatakarékos otthonuk megvásárlásakor.
Miért válaszd a City Pearlt?

Modern, világos otthonok átgondolt alaprajzokkal
Energiahatékony műszaki megoldások
Zöld belső kert és pihenőterek
Top helyszín a IX. kerületben – kiváló közlekedés, belvárosi közelség
Megbízható beruházó, átlátható feltételek
Rugalmas ajánlatok az élethelyzethez igazítva:
Ha gyorsan szeretnél költözni: az I. ütem a legjobb választás, hiszen most ajándék konyhagép-csomag jár a lakáshoz (illetve itt még érvényes a 15% kedvezmény a parkolóinkra és a tárolóinkra is).

Ha ráérsz kivárni a legjobb árat: a II. ütemben m² kedvezményt biztosítunk, így kedvezőbb feltételekkel juthatsz új otthonhoz.

Hirdetés feltöltve: 2025. 11. 25. Utoljára módosítva: 2025. 11. 25.

1 szobás téglalakások ára Budapesten

Ebből az összehasonlításból megtudhatod, hogyan viszonyul a lakás ára a környékbeli téglalakások átlagos árához. Ez nem azt jelenti, hogy ennyivel olcsóbb vagy drágább, mint amennyit a lakás ér, hanem hogy ennyivel tér el a környékbeli átlagtól.

Ennek a m² ára
Ferencváros m² ár
IX. kerület m² ár
Budapest m² ár
2557 e Ft
1870 e Ft -37%
1882 e Ft -36%
1708 e Ft -50%
Ennek az ára
Ferencváros átlagár
IX. kerület átlagár
Budapest átlagár
115.081 M Ft m Ft
65.5 m Ft -76%
65.2 m Ft -77%
59.2 m Ft -94%

Az ingatlan elhelyezkedése

Cím: Budapest, IX. kerület, Ferencváros, Soroksári út 58, 9. emelet

Eladó ingatlanok a környékről

Eladó téglalakás
Eladó téglalakás

IX. kerület, Vágóhíd utca

184.94 M Ft
4 szoba
102 m2
Eladó téglalakás
Eladó téglalakás

IX. kerület, Ferencváros, Lechner Ödön fasor

609.6 M Ft
7 szoba
445 m2
Eladó téglalakás
Eladó téglalakás

X. kerület, Gyárdűlő

43.6 M Ft
1 szoba
34 m2
Eladó téglalakás
Eladó téglalakás

IX. kerület, Ferencváros, Haller utca

51 M Ft
2 szoba
31 m2
Eladó panellakás
Eladó panellakás

XXI. kerület, Csillagtelep, Szentmiklósi út

50.9 M Ft
2 szoba
52 m2
Eladó ikerház
Eladó ikerház

XVIII. kerület

159 M Ft
4 szoba
150 m2
Eladó téglalakás
Eladó téglalakás

IX. kerület, Ferencváros, Soroksári út

119.5 M Ft
3 + 1 szoba
127 m2
Eladó téglalakás
Eladó téglalakás

VI. kerület

119.9 M Ft
3 szoba
75 m2
Eladó panellakás
Eladó panellakás

XVI. kerület, Sashalom

58.9 M Ft
2 szoba
51 m2
Eladó téglalakás
Eladó téglalakás

IX. kerület

81.9 M Ft
1 szoba
50 m2
Eladó téglalakás
Eladó téglalakás

IX. kerület, Vágóhíd utca

86.51 M Ft
1 szoba
39 m2
Eladó téglalakás
Eladó téglalakás

IX. kerület

99.5 M Ft
4 szoba
110 m2
Eladó téglalakás
Eladó téglalakás

IX. kerület, Ferencváros, Soroksári út

97.007 M Ft
1 + 1 szoba
54 m2
Eladó téglalakás
Eladó téglalakás

IX. kerület

95 M Ft
2 szoba
55 m2
Eladó téglalakás
Eladó téglalakás

XVI. kerület, Sashalom

47.9 M Ft
1 szoba
32 m2
Eladó téglalakás
Eladó téglalakás

VIII. kerület

59.9 M Ft
3 szoba
40 m2
Eladó téglalakás
Eladó téglalakás

IX. kerület, Ferencváros, Bárd utca 7

81.8 M Ft
1 + 1 szoba
35 m2
Eladó téglalakás
Eladó téglalakás

III. kerület, Békásmegyer

89.9 M Ft
3 + 1 szoba
105 m2
Eladó téglalakás
Eladó téglalakás

IX. kerület, Ferencváros, Soroksári út

225.943 M Ft
3 + 1 szoba
114 m2
Eladó téglalakás
Eladó téglalakás

IX. kerület, Ferencváros, Soroksári út

283.935 M Ft
4 + 1 szoba
149 m2
Eladó panellakás
Eladó panellakás

III. kerület, Békásmegyer, Szentendrei út

69.9 M Ft
2 szoba
52 m2
Eladó téglalakás
Eladó téglalakás

IX. kerület, Ferencváros, Lechner Ödön fasor

299 M Ft
4 szoba
273 m2
Eladó téglalakás
Eladó téglalakás

XIV. kerület, Törökőr, Thököly út

77.9 M Ft
2 szoba
78 m2
Eladó téglalakás
Eladó téglalakás

XIII. kerület, Angyalföld

85 M Ft
2 szoba
52 m2

Falusi CSOK ingatlanok

Eladó családi ház
Eladó családi ház

Dunavecse

25 M Ft
3 szoba
120 m2
Eladó családi ház
Eladó családi ház

Mezőfalva

39 M Ft
3 szoba
77 m2
Eladó családi ház
Eladó családi ház

Kamut

29 M Ft
3 szoba
100 m2
Eladó családi ház
Eladó családi ház

Dombrád

8 M Ft
2 szoba
85 m2
Eladó családi ház
Eladó családi ház

Enese

82.9 M Ft
4 szoba
90 m2
Eladó téglalakás
Eladó téglalakás

Rétság

44.9 M Ft
2 szoba
55 m2
Eladó családi ház
Eladó családi ház

Vásárosdombó

14.99 M Ft
2 szoba
69 m2
Eladó családi ház
Eladó családi ház

Devecser

33.9 M Ft
3 szoba
75 m2