Avico Greentop

Eladó téglalakás
Budapest, IV. kerület, földszint

+ 17 kép 1/20
110 000 000 Ft110 M Ft 1 279 070 Ft/m2
5 szoba
86 m²
földszint
építés éve:1950

Részletes adatok

Fűtés: Gázkazán
Emelet: földszint
Energetikai besorolás: Nem adta meg a hirdető

Az OTP Bank lakáshitel ajánlataFizetett hirdetés

+36 1 690
Kaminszka Noémi
Duna House - Szent István tér

Érdekel az OTP Bank kedvezményes lakáshitel ajánlata? *

* A kérdésre „Igen” válasz bejelölése esetén, az „Üzenet küldése” gombra kattintva kijelentem, hogy az OTP Bank Nyrt. Adatkezelési tájékoztatójának tartalmát megismertem és tudomásul vettem.

Eladó téglalakás leírása

Új Élet, Új Otthon Újpest Zöldövezetében!
Eladó egy minden igényt kielégítő, teljeskörűen felújított, 86 nm-es álomotthon a Görgey Artúr úton!
Újpest egyik legkedveltebb részén, egy rendezett, mindössze 10 lakásos tégla társasház magasföldszintjén kínáljuk megvételre ezt a napfényes, erkélyes lakást. Ha fontos Önnek a minőség és a tágas térérzet, ezt látnia kell!

AMIÉRT EZ A LAKÁS TÖKÉLETES VÁLASZTÁS:
    Teljes körű megújulás: 4 éve a teljes villanyvezeték- és csőhálózat, a hideg-meleg burkolatok, valamint az összes nyílászáró cseréje megtörtént.
    Modern technológia: A fűtésről és a meleg vízről egy magas minőségű Bosch kombi cirkó gondoskodik alacsony rezsi mellett.
    Kényelmi extrák: Új műanyag ablakok redőnyökkel és szúnyoghálóval felszerelve, biztonsági bejárati ajtó.
    Páratlan térérzet: A 3 méteres belmagasság és a tágas, napfényes terek elegáns és szellős otthont teremtenek.
ELOSZTÁS ÉS LEHETŐSÉGEK:
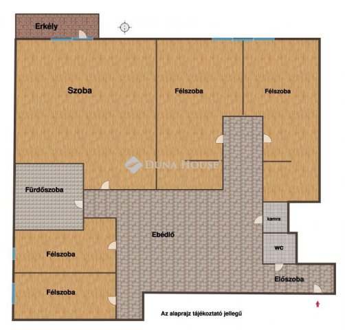
Az ingatlan jelenleg kiváló elrendezésű: 3 szoba + 2 félszoba, tágas étkezős konyha, kamra és egy kényelmes, sarokkádas fürdőszoba alkotja.
Tipp: Az egyik nagyszoba jelenleg ketté van osztva, így ideális mozaikcsaládoknak vagy külön gyerekszobát keresőknek, de ez a fal bármikor könnyedén visszabontható, ha egy hatalmas nappalit szeretne.
ELHELYEZKEDÉS ÉS KÖRNYÉK:
A Görgey Artúr út méltán népszerű: karnyújtásnyira a 12-es és 14-es villamos, az M3-as metró pedig gyorsan elérhető. A közelben minden megtalálható, ami a hétköznapokhoz kell: Lidl, Spar, OBI és az Újpesti Szakrendelő.
EXTRÁK, AMIK AZ ÁRBAN BENNE VANNAK:
    Saját 6 nm-es pince tároló.
    Saját 4 nm-es padlás tároló.A képek között látványtervek is szerepelnek, bemutatva a lakásban rejlő további lehetőségeket.
Kinek ajánlom? Többgyermekes családoknak, összeköltözőknek vagy befektetőknek, akik egy azonnal kiadható, értékálló ingatlant keresnek.

Jelenleg az egyik nagyobbik szoba ketté van osztva,de ez bármikor visszabontható.
A tágas konyhában lévő étkezőben, kellemes  hangulatú vasárnapi ebédek, vacsorák megrendezésére tökéletesen alkalmas.

Ne maradjon le róla! Rugalmasan megtekinthető, előre egyeztetett időpontban.

Hirdetés feltöltve: 2026. 04. 01. Utoljára módosítva: 2026. 04. 15.

5 szobás téglalakások ára Budapesten

Ebből az összehasonlításból megtudhatod, hogyan viszonyul a lakás ára a környékbeli téglalakások átlagos árához. Ez nem azt jelenti, hogy ennyivel olcsóbb vagy drágább, mint amennyit a lakás ér, hanem hogy ennyivel tér el a környékbeli átlagtól.

Ennek a m² ára
IV. kerület m² ár
Budapest m² ár
1279 e Ft
1333 e Ft 4%
1628 e Ft 21%
Ennek az ára
IV. kerület átlagár
Budapest átlagár
110 M Ft m Ft
166.2 m Ft 34%
242.9 m Ft 55%

Az ingatlan elhelyezkedése

Cím: Budapest, IV. kerület, földszint

Eladó ingatlanok a környékről

XX. kerület
Eladó téglalakás

Budapest, XX. kerület

32.9 M Ft
1 szoba
29 m²
IV. kerület
Eladó téglalakás

Budapest, IV. kerület

226.6 M Ft
5 szoba
145 m²
XVII. kerület
Eladó családi ház

Budapest, XVII. kerület

175.9 M Ft
3 szoba
114 m²
IV. kerület
Eladó téglalakás

Budapest, IV. kerület

199 M Ft
4 + 1 szoba
168 m²
IV. kerület
Eladó téglalakás

Budapest, IV. kerület

189.9 M Ft
4 szoba
84 m²
IV. kerület
Eladó téglalakás

Budapest, IV. kerület

139.9 M Ft
4 szoba
97 m²
IV. kerület
Eladó téglalakás

Budapest, IV. kerület

199 M Ft
5 szoba
167 m²
IV. kerület
Eladó téglalakás

Budapest, IV. kerület

32 M Ft
1 szoba
25 m²
XIV. kerület
Eladó ikerház

Budapest, XIV. kerület

92.9 M Ft
3 szoba
95 m²
III. kerület
Eladó téglalakás

Budapest, III. kerület

139 M Ft
3 szoba
81 m²
IV. kerület
Eladó téglalakás

Budapest, IV. kerület

86 M Ft
2 szoba
80 m²
IV. kerület
Eladó téglalakás

Budapest, IV. kerület

109.9 M Ft
3 szoba
77 m²
XVIII. kerület
Eladó panellakás

Budapest, XVIII. kerület

64.9 M Ft
2 + 1 szoba
53 m²
XIV. kerület
Eladó panellakás

Budapest, XIV. kerület

64.5 M Ft
2 szoba
46 m²
XIX. kerület
Eladó panellakás

Budapest, XIX. kerület

64.7 M Ft
3 szoba
58 m²
XXI. kerület
Eladó panellakás

Budapest, XXI. kerület

54.9 M Ft
2 szoba
45 m²
IV. kerület
Eladó téglalakás

Budapest, IV. kerület

73.9 M Ft
4 szoba
98 m²
I. kerület
Eladó téglalakás

Budapest, I. kerület

74.9 M Ft
1 + 1 szoba
40 m²
XVIII. kerület
Eladó téglalakás

Budapest, XVIII. kerület

67.9 M Ft
2 szoba
53 m²
XVIII. kerület
Eladó téglalakás

Budapest, XVIII. kerület

63.9 M Ft
2 szoba
56 m²
IV. kerület
Eladó téglalakás

Budapest, IV. kerület

32 M Ft
1 szoba
25 m²
IV. kerület
Eladó téglalakás

Budapest, IV. kerület

32 M Ft
1 szoba
25 m²
IV. kerület
Eladó téglalakás

Budapest, IV. kerület

144.9 M Ft
3 szoba
103 m²
XIV. kerület
Eladó panellakás

Budapest, XIV. kerület

64.9 M Ft
2 szoba
49 m²

Falusi CSOK ingatlanok

Tibolddaróc
Eladó családi ház

Tibolddaróc

12 M Ft
2 szoba
56 m²
Türje
Eladó családi ház

Türje

25 M Ft
2 szoba
80 m²
Mályi
Eladó családi ház

Mályi

35 M Ft
3 szoba
115 m²
Pécsvárad
Eladó családi ház

Pécsvárad

189 M Ft
7 szoba
618 m²
Nagyszénás, Bajcsy-Zsilinszky utca 60
Eladó családi ház

Nagyszénás

11.7 M Ft
1 + 1 szoba
128 m²
Enese
Eladó családi ház

Enese

94.99 M Ft
3 + 1 szoba
124 m²
Bogács
Eladó családi ház

Bogács

89.5 M Ft
4 + 2 szoba
180 m²
Balatonakali
Eladó ikerház

Balatonakali

560 M Ft
4 szoba
140 m²