Astora Art House

Eladó téglalakás
Budapest, III. kerület, 2. emelet

204 797 800 Ft204.798 M Ft 2 497 534 Ft/m2
3 szoba
82 m²
2. emelet
építés éve:2025

Részletes adatok

Fűtés: Elektromos
Emelet: 2. emelet
Extrák: Lift
Energetikai besorolás: Nem adta meg a hirdető

Az OTP Bank lakáshitel ajánlataFizetett hirdetés

+36 70 442
Heinrich Krisztina
referens

Érdekel az OTP Bank kedvezményes lakáshitel ajánlata? *

* A kérdésre „Igen” válasz bejelölése esetén, az „Üzenet küldése” gombra kattintva kijelentem, hogy az OTP Bank Nyrt. Adatkezelési tájékoztatójának tartalmát megismertem és tudomásul vettem.

Eladó téglalakás leírása

3. KERÜLET VILLAPARK PROJEKT AZ OTP INGATLANPONT KÍNÁLATÁBAN, 5 LAKÁSOS ÉPÜLET, NAPPALI+2 HÁLÓS LAKÁSOK FOGLALHATÓK!
A projekt Harsánylejtő egyik utolsó beépíthető telkén valósul meg, öt exkluzív villaépület formájában. A lakópark csendes, forgalomtól elzárt magánúton közelíthető meg, zöldövezeti környezetben, a budai hegyek ölelésében, mégis néhány percre a város pezsgő központjaitól.
A környék infrastruktúrája folyamatosan fejlődik, a közelben iskolák, bevásárlási lehetőségek, sport- és rekreációs központok találhatók
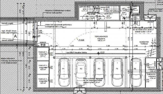
A magas műszaki tartalommal megvalósuló, háromszintes épületek mindössze öt lakásnak adnak otthont. A lakók kényelmét teremgarázs, parkosított kert és igény szerint további felszíni parkolóhelyek biztosítják.
Elérhető lakástípusok:
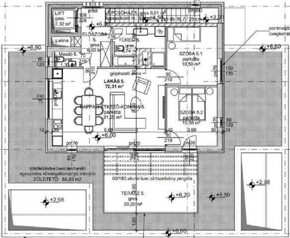
Földszinti, kertkapcsolatos lakások, közel 69 nm nettó alapterülettel, 20 nm-es terasszal és 200 nm-es privát kerttel, 3 szobával rendelkezik.
Emeleti lakások, 68,60 és 68,37 nm nettó alapterülettel, 7 nm-es terasszal, 3 szobával rendelkeznek.
Penthouse lakás, 72 nm feletti nettó alapterülettel, közel 20,32 nm-es terasszal és több mint 50 nm-es tetőkerttel, 3 szobával rendelkezik.
A jelenlegi készültségi szakaszban lehetőség van lakások összenyitására, teljes szint vagy akár egy teljes épület megvásárlására is.
Várható átadás: 2027. I. negyedév.
Teremgarázs beállók és tárolók opcionálisan vásárolhatók:
- Garázs vételára: 12.700.000 Ft/db
- Tároló: 2,88 nm 3.556.000 Ft.
Fizetési ütemezés: 1. és a 3 épületben akár 10%-os önerővel, a többi épületnél is rugalmas fizetési konstrukcióval is elérhető, amennyiben nagyobb önerővel rendelkezik (50-100%) egyéb kedvezményt tudunk biztosítani.
Műszaki tartalom: -Modern, energiatakarékos hőszivattyús rendszer, kedvezményes H-tarifa lehetőséggel
- Mennyezeti hűtés és padlófűtés
- Háromrétegű, alumínium nyílászárók hőszigetelt üvegezéssel, teraszoknál tolóajtós kivitel
- Választható, I. osztályú olasz burkolatok és szaniterek
- Okosotthon rendszer előkészítés
- KONE lift minden épületben
- A felső szinti lakások közvetlen, kulcsos lifthasználattal is megközelíthetők
- Zsaluzia árnyékolás
- Pergolával fedett teraszok az emeleti lakásoknál
- Riasztó- és klímaelőkészítés
- Hörmann garázskapu
- Saját locsolórendszer a kertkapcsolatos lakásoknál
- 15 cm vastag hőszigetelés
- Fedett parkolóhelyek és tárolók a teremgarázsban
- Amennyiben a projekt felkeltette érdeklődését, örömmel biztosítunk személyes konzultációt az értékesítési irodában vagy a helyszínen, ahol részletes tájékoztatást adunk, és segítünk megtalálni az Ön igényeihez leginkább illeszkedő otthont. M323059

Hirdetés feltöltve: 2026. 03. 10. Utoljára módosítva: 2026. 03. 10.

3 szobás téglalakások ára Budapesten

Ebből az összehasonlításból megtudhatod, hogyan viszonyul a lakás ára a környékbeli téglalakások átlagos árához. Ez nem azt jelenti, hogy ennyivel olcsóbb vagy drágább, mint amennyit a lakás ér, hanem hogy ennyivel tér el a környékbeli átlagtól.

Ennek a m² ára
III. kerület m² ár
Budapest m² ár
2498 e Ft
1780 e Ft -40%
1694 e Ft -47%
Ennek az ára
III. kerület átlagár
Budapest átlagár
204.798 M Ft m Ft
142.5 m Ft -44%
131.1 m Ft -56%

Az ingatlan elhelyezkedése

Cím: Budapest, III. kerület, 2. emelet

Eladó ingatlanok a környékről

XIV. kerület
Eladó téglalakás

Budapest, XIV. kerület

60.5 M Ft
1 + 1 szoba
46 m²
III. kerület, Filatorigát, Fehéregyházi út
Eladó téglalakás

Budapest, III. kerület

135.143 M Ft
3 szoba
74 m²
III. kerület, Testvérhegy
Eladó téglalakás

Budapest, III. kerület

329 M Ft
6 szoba
220 m²
XVII. kerület
Eladó panellakás

Budapest, XVII. kerület

62.9 M Ft
1 + 2 szoba
56 m²
III. kerület
Eladó téglalakás

Budapest, III. kerület

329 M Ft
5 szoba
245 m²
VI. kerület, Belső Terézváros, Teréz körút
Eladó téglalakás

Budapest, VI. kerület

65 M Ft
1 + 1 szoba
35 m²
VIII. kerület, Palotanegyed, Rákóczi út
Eladó téglalakás

Budapest, VIII. kerület

146 M Ft
4 szoba
120 m²
III. kerület
Eladó téglalakás

Budapest, III. kerület

166.9 M Ft
4 szoba
119 m²
III. kerület
Eladó téglalakás

Budapest, III. kerület

190.971 M Ft
4 szoba
102 m²
III. kerület
Eladó téglalakás

Budapest, III. kerület

117.015 M Ft
3 szoba
78 m²
VI. kerület
Eladó téglalakás

Budapest, VI. kerület

99.5 M Ft
2 szoba
53 m²
VII. kerület
Eladó téglalakás

Budapest, VII. kerület

42 M Ft
1 szoba
23 m²
VIII. kerület
Eladó téglalakás

Budapest, VIII. kerület

49.9 M Ft
2 szoba
39 m²
III. kerület, Ürömhegy
Eladó téglalakás

Budapest, III. kerület

260 M Ft
4 szoba
166 m²
XV. kerület, Rákospalota
Eladó téglalakás

Budapest, XV. kerület

96.66 M Ft
3 szoba
65 m²
XVII. kerület, Rákoscsaba, Enying utca 31
Eladó családi ház

Budapest, XVII. kerület

104.9 M Ft
7 szoba
280 m²
VIII. kerület
Eladó téglalakás

Budapest, VIII. kerület

106.9 M Ft
2 + 2 szoba
95 m²
XX. kerület, Gubacsipuszta
Eladó ikerház

Budapest, XX. kerület

59 M Ft
1 szoba
38 m²
III. kerület
Eladó téglalakás

Budapest, III. kerület

122.064 M Ft
3 szoba
69 m²
III. kerület, Testvérhegy, III. Erdőalja út külső része
Eladó téglalakás

Budapest, III. kerület

179 M Ft
4 szoba
157 m²
III. kerület
Eladó téglalakás

Budapest, III. kerület

267.75 M Ft
4 szoba
141 m²
VI. kerület
Eladó téglalakás

Budapest, VI. kerület

74.3 M Ft
2 szoba
42 m²
I. kerület, Krisztinaváros, Logodi utca
Eladó iroda

Budapest, I. kerület

80 M Ft
60 m²
XXI. kerület
Eladó téglalakás

Budapest, XXI. kerület

69.8 M Ft
3 szoba
67 m²

Falusi CSOK ingatlanok

Hosszúhetény
Eladó családi ház

Hosszúhetény

99 M Ft
4 szoba
160 m²
Letenye
Eladó családi ház

Letenye

31.99 M Ft
3 szoba
105 m²
Sumony
Eladó családi ház

Sumony

19 M Ft
4 szoba
120 m²
Törtel
Eladó családi ház

Törtel

36.4 M Ft
3 szoba
114 m²
Bag
Eladó családi ház

Bag

16.9 M Ft
6 szoba
160 m²
Balatonakali
Eladó ikerház

Balatonakali

129 M Ft
4 szoba
145 m²
Kunadacs
Eladó családi ház

Kunadacs

80 M Ft
4 szoba
148 m²
Nagyszentjános
Eladó téglalakás

Nagyszentjános

74.9 M Ft
4 szoba
117 m²