Stay Family Park

Eladó téglalakás
Budapest, III. kerület, Remetehegy utca, félemelet

+ 5 kép 1/8
49 900 000 Ft49.9 M Ft 1 386 111 Ft/m2
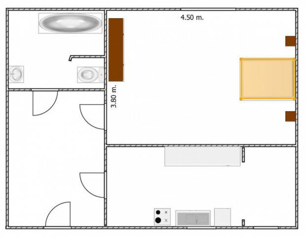
1 szoba
36 m2
félemelet
építés éve:1938

Részletes adatok

Állapot: Felújítandó
Fűtés: Gázkazán
Energetikai besorolás: Nem adta meg a hirdető

Az OTP Bank lakáshitel ajánlataFizetett hirdetés

+36 70 320
Lovas László
Balla Ingatlan - XV. kerület

Érdekel az OTP Bank kedvezményes lakáshitel ajánlata? *

* A kérdésre „Igen” válasz bejelölése esetén, az „Üzenet küldése” gombra kattintva kijelentem, hogy az OTP Bank Nyrt. Adatkezelési tájékoztatójának tartalmát megismertem és tudomásul vettem.

Eladó téglalakás leírása

BEFEKTETŐK, FIATALOK, PÁROK FIGYELEM!

Eladó Remetehegyen, egy csendes zsákutcában található, 36 nm-es félemeleti téglalakás, amely teljes felújítást igényel, ugyanakkor számos lehetőséget rejt magában. Az ingatlan jelenleg egy szobából, konyhából, kádas fürdőszobából és előszobából áll, de az alaprajz alapján könnyedén másfél szobássá alakítható. A lakáshoz tartozik egy körülbelül 12 nm-es saját terasz vagy kertrész, amely jelenleg az udvar felől közelíthető meg, de átalakítással közvetlenül a lakásból is elérhető lesz.

A lakás egy öt lakásos, szintén felújítandó társasházban helyezkedik el, mely egy 900 nm-es telken található. A fűtést gázcirkó biztosítja. Az elhelyezkedése kifejezetten kedvező: Óbuda központi, mégis zöldövezeti részén található, két perc sétára tömegközlekedési csomóponttól és számos bevásárlási lehetőségtől.

Az ingatlan felújítással és átalakítással igazi értékes otthonná tehető, amely befektetésként is kiváló lehet, hiszen könnyen kiadható és hosszú távon értéknövekedést biztosít.

Befektetők! A társasház 5 lakásból áll és egyben is eladó, további albetét létrehozható, a tetőtér beépíthető és a ház alapterülete is bővíthető!

További információkért keressen bizalommal!

Hirdetés feltöltve: 2025. 12. 21.

1 szobás téglalakások ára Budapesten

Ebből az összehasonlításból megtudhatod, hogyan viszonyul a lakás ára a környékbeli téglalakások átlagos árához. Ez nem azt jelenti, hogy ennyivel olcsóbb vagy drágább, mint amennyit a lakás ér, hanem hogy ennyivel tér el a környékbeli átlagtól.

Ennek a m² ára
III. kerület m² ár
Budapest m² ár
1386 e Ft
2118 e Ft 35%
1708 e Ft 19%
Ennek az ára
III. kerület átlagár
Budapest átlagár
49.9 M Ft m Ft
64.7 m Ft 23%
59 m Ft 15%

Az ingatlan elhelyezkedése

Cím: Budapest, III. kerület, Remetehegy utca, félemelet

Eladó ingatlanok a környékről

Eladó téglalakás
Eladó téglalakás

III. kerület

166.9 M Ft
4 szoba
119 m2
Eladó téglalakás
Eladó téglalakás

IX. kerület

133.411 M Ft
3 szoba
69 m2
Eladó téglalakás
Eladó téglalakás

IV. kerület, Újpest, Kassai utca

84.9 M Ft
2 + 1 szoba
71 m2
Eladó téglalakás
Eladó téglalakás

V. kerület, Belváros, Belgrád rakpart

78 M Ft
1 + 1 szoba
42 m2
Eladó téglalakás
Eladó téglalakás

XXI. kerület

53.5 M Ft
2 szoba
46 m2
Eladó téglalakás
Eladó téglalakás

III. kerület

130.457 M Ft
3 szoba
73 m2
Eladó téglalakás
Eladó téglalakás

VII. kerület

102.785 M Ft
2 szoba
49 m2
Eladó téglalakás
Eladó téglalakás

III. kerület, Táborhegy, Farkastorki út

78.9 M Ft
1 + 2 szoba
60 m2
Eladó téglalakás
Eladó téglalakás

III. kerület

120.216 M Ft
3 szoba
69 m2
Eladó téglalakás
Eladó téglalakás

III. kerület

117.015 M Ft
3 szoba
78 m2
Eladó téglalakás
Eladó téglalakás

III. kerület, Testvérhegy, III. Erdőalja út külső része

179 M Ft
4 szoba
157 m2
Eladó téglalakás
Eladó téglalakás

V. kerület, Belváros, Petőfi Sándor utca

134 M Ft
2 szoba
59 m2
Eladó téglalakás
Eladó téglalakás

III. kerület

124.816 M Ft
3 szoba
78 m2
Eladó téglalakás
Eladó téglalakás

III. kerület, Testvérhegy

379 M Ft
5 szoba
240 m2
Eladó téglalakás
Eladó téglalakás

III. kerület, Ürömhegy

157 M Ft
3 szoba
90 m2
Eladó téglalakás
Eladó téglalakás

III. kerület, Óbuda

83.25 M Ft
2 szoba
45 m2
Eladó téglalakás
Eladó téglalakás

VII. kerület, Belső Erzsébetváros, Erzsébet körút

89.9 M Ft
1 + 1 szoba
71 m2
Eladó téglalakás
Eladó téglalakás

III. kerület, Óbudaisziget, Folyamőr utca

76.9 M Ft
1 szoba
25 m2
Eladó téglalakás
Eladó téglalakás

III. kerület, Testvérhegy

359 M Ft
6 szoba
200 m2
Eladó téglalakás
Eladó téglalakás

III. kerület

329 M Ft
5 szoba
245 m2
Eladó családi ház
Eladó családi ház

XXII. kerület, Budafok, Baross utca

199 M Ft
6 + 1 szoba
200 m2
Eladó téglalakás
Eladó téglalakás

XIV. kerület, Kiszugló, Kövér Lajos utca

168 M Ft
3 + 1 szoba
84 m2
Eladó téglalakás
Eladó téglalakás

III. kerület, Rómaifürdő, Királyok útja

139 M Ft
3 szoba
65 m2
Eladó téglalakás
Eladó téglalakás

VI. kerület, Külső Terézváros, Szív utca

119.5 M Ft
3 szoba
94 m2

Falusi CSOK ingatlanok

Eladó ikerház
Eladó ikerház

Bodajk

64.9 M Ft
5 szoba
108 m2
Eladó családi ház
Eladó családi ház

Tömörkény

8.9 M Ft
2 szoba
80 m2
Eladó családi ház
Eladó családi ház

Aszaló

16.49 M Ft
3 szoba
112 m2
Eladó családi ház
Eladó családi ház

Petrivente, Kossuth Lajos utca

31.9 M Ft
3 szoba
127 m2
Eladó családi ház
Eladó családi ház

Újszilvás

39.5 M Ft
3 szoba
62 m2
Eladó családi ház
Eladó családi ház

Kaposgyarmat

5.9 M Ft
1 szoba
40 m2
Eladó családi ház
Eladó családi ház

Iváncsa

70 M Ft
5 szoba
340 m2
Eladó családi ház
Eladó családi ház

Vilonya

29 M Ft
2 szoba
70 m2