Eladó téglalakás
Budapest, III. kerület, Óbuda, 1. emelet

+ 17 kép 1/20
97 500 000 Ft97.5 M Ft 1 335 616 Ft/m2
2 + 1 szoba
73 m2
1. emelet
építés éve:1970

Részletes adatok

Fűtés: Távfűtés
Extrák: Lift
Energetikai besorolás: Nem adta meg a hirdető

Az OTP Bank lakáshitel ajánlataFizetett hirdetés

+36 20 399
Czafit Péter
OTPIP I. kerület Zsolt utcai iroda

Érdekel az OTP Bank kedvezményes lakáshitel ajánlata? *

* A kérdésre „Igen” válasz bejelölése esetén, az „Üzenet küldése” gombra kattintva kijelentem, hogy az OTP Bank Nyrt. Adatkezelési tájékoztatójának tartalmát megismertem és tudomásul vettem.

Eladó téglalakás leírása

****ELEGÁNS ÓBUDAI ****HITELEZHETŐ LAKÁS*****

Kitűnő ajánlat!!!

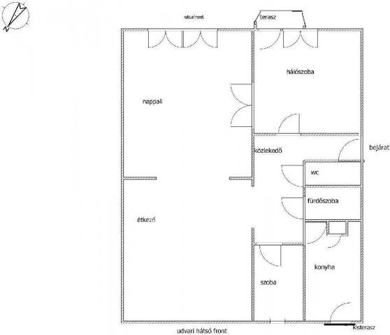
Eladásra kínálok egy elegáns, nagypolgári, 73 m2-es, 2,5 szobás, nagy étkezős, nagy hálószobás, beépített erkélyes, 3 m belmagasságú első emeleti lakást, liftes 4 szintes tégla épületben. A Kolosy tér közelsége, rendkívül jó lokációt eredményez, a jó szigetelésnek köszönhetően egy csendes, igazi elegáns otthon tárul elénk. Az épület, a lépcsőház, a lift rendezett, az épület hátsó része mögött pedig egy zárt kert várja nagy fákkal, kiülővel a csendes elvonulásra vágyókat.

Biztonsági ajtón keresztül jutunk az ingatlanba, ahol egy mára már letünni készülő kor eleganciájával, korhű bútorzattal, igényes korabeli és folyamatosan megújult családi otthon tárul elénk. Tágas nappali egy külön nagy étkező térrel elválasztva, de mégis egyben. Nem recsegő tölgyfa parketta nagyon jó minőségben, koloniál bútorok, kétoldalas bár, nyitható 6 személyes étkezőgarnitúra nagypolgári stílusban. Egy hatalmas hálószoba, beépített erkéllyel, egy kisebb szoba, külön WC, fürdőszoba káddal és zuhanyfülkével, mosógéppel, modern konyha pár éves nagyon szép konyhabútorral, mosogatógéppel, gáztűzhellyel, elszívóval,valamint egy hideg spejz. A hálóból egy beépített zárt terasz nyílik az utcafrontra, reggeli kávézáshoz kitűnő. A konyhánál is a jó szellőzést egy francia 1 m2-es terasz biztosítja, ami a hátsó kertre néz.
Komfortérzetet a szabályozható radiátorok nyújtanak, redőnyös ablakok, szigetelt falak, télen meleg, nyáron hűvös, és meglepően csendes családi otthon várja leendő tulajdonosát. Kitűnő közlekedés,busz, hév, villamos percekre,minden a bevásárláshoz, a napi élethez adott. Közös költség jelenleg 40.000,- Ft az elvégzett lift korszerűsítés, ill. a tető cseréje miatt. Ez később kevesebb lesz. A többi rezsi kb.30.000,- Ft.

Tisztasági festéssel azonnal költözhető az ingatlan, tehermentes, hitelezhető, 3 % Otthon Start hitelre is!
Teljeskörű hitelügyintézéssel, ügyvédi háttérrel állunk rendelkezésére!
Kérdésével a nap bármely szakában forduljon hozzám bizalommal.

Referencia szám: M316128

Hirdetés feltöltve: 2025. 10. 30. Utoljára módosítva: 2025. 10. 30.

3 szobás téglalakások ára Budapesten

Ebből az összehasonlításból megtudhatod, hogyan viszonyul a lakás ára a környékbeli téglalakások átlagos árához. Ez nem azt jelenti, hogy ennyivel olcsóbb vagy drágább, mint amennyit a lakás ér, hanem hogy ennyivel tér el a környékbeli átlagtól.

Ennek a m² ára
Óbuda m² ár
III. kerület m² ár
Budapest m² ár
1336 e Ft
1523 e Ft 12%
1758 e Ft 24%
1692 e Ft 21%
Ennek az ára
Óbuda átlagár
III. kerület átlagár
Budapest átlagár
97.5 M Ft m Ft
107.2 m Ft 9%
138.2 m Ft 29%
133 m Ft 27%

Az ingatlan elhelyezkedése

Cím: Budapest, III. kerület, Óbuda, 1. emelet

Eladó ingatlanok a környékről

Eladó téglalakás
Eladó téglalakás

III. kerület

120.216 M Ft
3 szoba
69 m2
Eladó téglalakás
Eladó téglalakás

III. kerület

84.348 M Ft
2 szoba
44 m2
Eladó téglalakás
Eladó téglalakás

III. kerület

122.064 M Ft
3 szoba
69 m2
Eladó téglalakás
Eladó téglalakás

II. kerület

149 M Ft
3 szoba
115 m2
Eladó téglalakás
Eladó téglalakás

XII. kerület

149.9 M Ft
2 szoba
74 m2
Eladó téglalakás
Eladó téglalakás

III. kerület

117.015 M Ft
3 szoba
78 m2
Eladó téglalakás
Eladó téglalakás

V. kerület

159 M Ft
2 szoba
64 m2
Eladó téglalakás
Eladó téglalakás

V. kerület, Belváros

199.9 M Ft
2 szoba
77 m2
Eladó téglalakás
Eladó téglalakás

III. kerület, Testvérhegy

359 M Ft
6 szoba
200 m2
Eladó téglalakás
Eladó téglalakás

III. kerület

134.147 M Ft
3 szoba
71 m2
Eladó téglalakás
Eladó téglalakás

III. kerület, Remetehegy, Perényi út

189 M Ft
3 szoba
75 m2
Eladó téglalakás
Eladó téglalakás

III. kerület

130.457 M Ft
3 szoba
74 m2
Eladó téglalakás
Eladó téglalakás

VII. kerület

71.9 M Ft
1 szoba
38 m2
Eladó téglalakás
Eladó téglalakás

III. kerület

146.846 M Ft
3 szoba
76 m2
Eladó téglalakás
Eladó téglalakás

VII. kerület

135.9 M Ft
3 szoba
101 m2
Eladó téglalakás
Eladó téglalakás

III. kerület

120.216 M Ft
3 szoba
69 m2
Eladó panellakás
Eladó panellakás

XIX. kerület, Kispest

73.4 M Ft
1 + 2 szoba
53 m2
Eladó téglalakás
Eladó téglalakás

XII. kerület

149.9 M Ft
2 szoba
74 m2
Eladó téglalakás
Eladó téglalakás

VII. kerület

108 M Ft
3 szoba
68 m2
Eladó téglalakás
Eladó téglalakás

VII. kerület

95.99 M Ft
2 szoba
51 m2
Eladó téglalakás
Eladó téglalakás

XIII. kerület

100 M Ft
2 szoba
45 m2
Eladó téglalakás
Eladó téglalakás

III. kerület

124.816 M Ft
3 szoba
78 m2
Eladó téglalakás
Eladó téglalakás

III. kerület

196.565 M Ft
4 szoba
107 m2
Eladó téglalakás
Eladó téglalakás

XIII. kerület

75.9 M Ft
1 szoba
44 m2

Falusi CSOK ingatlanok

Eladó családi ház
Eladó családi ház

Mályi

89.9 M Ft
4 szoba
100 m2
Eladó családi ház
Eladó családi ház

Badacsonytördemic

183.77 M Ft
4 szoba
160 m2
Eladó családi ház
Eladó családi ház

Vásárosdombó

14.99 M Ft
2 szoba
69 m2
Eladó családi ház
Eladó családi ház

Tiszaroff

12.9 M Ft
3 szoba
87 m2
Eladó családi ház
Eladó családi ház

Tápiószőlős

3.5 M Ft
1 szoba
75 m2
Eladó családi ház
Eladó családi ház

Dunaegyháza

34.6 M Ft
3 szoba
70 m2
Eladó ikerház
Eladó ikerház

Seregélyes

39.9 M Ft
4 szoba
150 m2
Eladó családi ház
Eladó családi ház

Újlengyel

110 M Ft
4 szoba
121 m2