Astora Olive Club House

Eladó téglalakás
Budapest, III. kerület, Csillaghegy, 3. emelet

+ 8 kép 1/11
224 000 000 Ft224 M Ft 3 111 111 Ft/m2
3 + 1 szoba
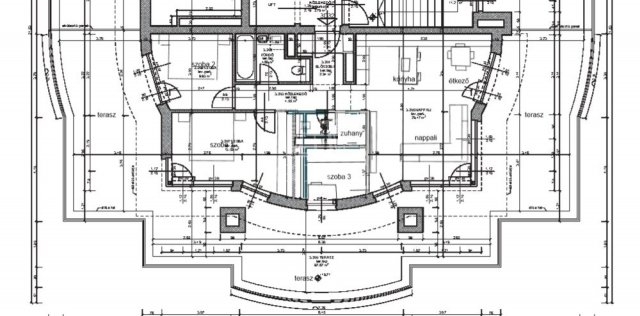
72 m2
3. emelet
építés éve:2023

Részletes adatok

Fűtés: Házközponti egyedi méréssel
Extrák: Lift
Energetikai besorolás: Nem adta meg a hirdető

Az OTP Bank lakáshitel ajánlataFizetett hirdetés

+36 20 555
Szabó-Szamosközi Beáta
referens

Érdekel az OTP Bank kedvezményes lakáshitel ajánlata? *

* A kérdésre „Igen” válasz bejelölése esetén, az „Üzenet küldése” gombra kattintva kijelentem, hogy az OTP Bank Nyrt. Adatkezelési tájékoztatójának tartalmát megismertem és tudomásul vettem.

Eladó téglalakás leírása

Páratlan panoráma, kivételes élettér – penthouse lakás eladó a Forest Hill villaparkban!

Lépj be egy olyan otthonba, ahol minden reggel a város legszebb arcára ébredsz! Eladó Budapest egyik legimpozánsabb penthouse lakása a Forest Hill villapark legmagasabban fekvő épületében – ahonnan Budapest a lábaid előtt hever.

A 72 m²-es, nappali + 3 szobás lakás kifinomult belső tereit egyedülálló, 87 m²-es körpanorámás terasz egészíti ki, amelyről lenyűgöző 180 fokos kilátás tárul eléd: a Budai Vár, Gellért-hegy, Megyeri-híd és a MOL torony mind egyetlen pillantással belátható. A teraszt zöld növényzet és árnyat adó fasor öleli körbe, garantálva az intimitást és nyugalmat – mindezt egy nyitható pergolával, stílusos kerti bútorokkal és természetközeli hangulattal.

A belső tér minden részlete a kényelmet és az eleganciát szolgálja:

Tágas amerikai konyhás nappali konyhaszigettel, bárszékekkel, étkezőasztallal

2 kényelmes hálószoba + 1 sokoldalúan használható helyiség (gyerekszoba, dolgozó vagy háztartási szoba)

Két fürdőszoba: az egyik káddal és dupla mosdóval, a másik praktikus zuhanyzóval

Prémium felszereltség: Grohe csaptelepek, AEG beépített gépek, modern magasfényű bútorok és természetes fa díszítőelemek

A lakás teljesen bútorozottan, klimatizáltan és azonnal költözhető állapotban eladó. Az épület új építésű, igényes lakberendezési megoldásokkal, lifttel, teremgarázsban kényelmes parkolási lehetőséggel (opcionálisan 10 millió Ft-ért megvásárolható).

Környezet és elhelyezkedés:
A villapark Csillaghegy legzöldebb, legexkluzívabb részén, közvetlenül a Csillaghegyi Strandfürdő mellett található. A Lupa Beach, a Római-part, valamint közeli kirándulóhelyek és erdős parkok gondoskodnak az aktív kikapcsolódásról. Modern játszótér, futásra és kutyasétáltatásra alkalmas zöldterület közvetlenül a lakópark szomszédságában.

Kiváló közlekedés: HÉV megálló 5 perc sétára, 160/219-es buszok 250 méterre, éjszakai járat is elérhető.

Miért éppen ez az otthon?

Lenyűgöző városi panoráma minden napszakban

Presztízs értékű lakás különleges fekvéssel

Nyugalom és természetközeliség, mégis könnyen elérhető városi lehetőségek

Kiváló befektetési lehetőség – azonnal költözhető, tehermentes

Ez az otthon több, mint egy lakás – ez életstílus!
Ne hagyd ki ezt a ritka lehetőséget – nézd meg, szeress bele, és költözz haza! ...TOVÁBBI, TÖBBEZRES INGATLAN KÍNÁLAT: www.gdn-ingatlan.hu - GDN azonosító: 381500

Hirdetés feltöltve: 2025. 04. 18. Utoljára módosítva: 2025. 11. 02.

4 szobás téglalakások ára Budapesten

Ebből az összehasonlításból megtudhatod, hogyan viszonyul a lakás ára a környékbeli téglalakások átlagos árához. Ez nem azt jelenti, hogy ennyivel olcsóbb vagy drágább, mint amennyit a lakás ér, hanem hogy ennyivel tér el a környékbeli átlagtól.

Ennek a m² ára
Csillaghegy m² ár
III. kerület m² ár
Budapest m² ár
3111 e Ft
2068 e Ft -50%
1763 e Ft -76%
1746 e Ft -78%
Ennek az ára
Csillaghegy átlagár
III. kerület átlagár
Budapest átlagár
224 M Ft m Ft
191.9 m Ft -17%
218 m Ft -3%
183.4 m Ft -22%

Az ingatlan elhelyezkedése

Cím: Budapest, III. kerület, Csillaghegy, 3. emelet

Eladó ingatlanok a környékről

Eladó téglalakás
Eladó téglalakás

VIII. kerület, Józsefváros, Corvin Sétány 5/A

72.9 M Ft
1 szoba
33 m2
Eladó téglalakás
Eladó téglalakás

VI. kerület, Külső Terézváros, Szófia utca

114.9 M Ft
4 szoba
103 m2
Eladó téglalakás
Eladó téglalakás

III. kerület

120.216 M Ft
3 szoba
69 m2
Eladó téglalakás
Eladó téglalakás

III. kerület

120.216 M Ft
3 szoba
69 m2
Eladó téglalakás
Eladó téglalakás

III. kerület, Óbudaisziget, Folyamőr utca

76.9 M Ft
1 szoba
25 m2
Eladó téglalakás
Eladó téglalakás

VI. kerület, Külső Terézváros, Szív utca

119.5 M Ft
3 szoba
94 m2
Eladó téglalakás
Eladó téglalakás

III. kerület, Remetehegy, Perényi utca

288 M Ft
5 szoba
112 m2
Eladó téglalakás
Eladó téglalakás

III. kerület, Óbuda

83.25 M Ft
2 szoba
45 m2
Eladó üzlethelyiség
Eladó üzlethelyiség

II. kerület, Országút, Margit körút

6.999 M Ft
5 m2
Eladó téglalakás
Eladó téglalakás

I. kerület, Krisztinaváros, Kosciuszkó Tádé utca

48 M Ft
1 szoba
30 m2
Eladó családi ház
Eladó családi ház

XXII. kerület, Budafok, Baross utca

199 M Ft
6 + 1 szoba
200 m2
Eladó téglalakás
Eladó téglalakás

III. kerület

122.064 M Ft
3 szoba
69 m2
Eladó téglalakás
Eladó téglalakás

VII. kerület, Belső Erzsébetváros, Erzsébet körút

160 M Ft
3 szoba
88 m2
Eladó téglalakás
Eladó téglalakás

V. kerület, Belváros, Belgrád rakpart

78 M Ft
1 + 1 szoba
42 m2
Eladó téglalakás
Eladó téglalakás

III. kerület

329 M Ft
5 szoba
245 m2
Eladó téglalakás
Eladó téglalakás

VII. kerület

84.9 M Ft
2 + 1 szoba
68 m2
Eladó téglalakás
Eladó téglalakás

III. kerület

134.147 M Ft
3 szoba
71 m2
Eladó téglalakás
Eladó téglalakás

III. kerület, Mátyáshegy, Nyereg út

225 M Ft
3 szoba
158 m2
Eladó téglalakás
Eladó téglalakás

V. kerület, Belváros, Petőfi Sándor utca

134 M Ft
2 szoba
59 m2
Eladó téglalakás
Eladó téglalakás

VIII. kerület, Palotanegyed, Rákóczi út

190 M Ft
5 szoba
121 m2
Eladó téglalakás
Eladó téglalakás

XI. kerület, Gellérthegy, Gombócz Zoltán utca

142 M Ft
2 + 1 szoba
71 m2
Eladó téglalakás
Eladó téglalakás

I. kerület, Krisztinaváros, Feszty Árpád utca

78.99 M Ft
1 szoba
28 m2
Eladó téglalakás
Eladó téglalakás

III. kerület

166.9 M Ft
4 szoba
119 m2
Eladó téglalakás
Eladó téglalakás

VIII. kerület, Józsefváros, Corvin Sétány 2

139.9 M Ft
3 szoba
59 m2

Falusi CSOK ingatlanok

Eladó családi ház
Eladó családi ház

Törtel

10 M Ft
2 szoba
43 m2
Eladó családi ház
Eladó családi ház

Kaposgyarmat

695 M Ft
6 szoba
610 m2
Eladó téglalakás
Eladó téglalakás

Táborfalva

26.8 M Ft
2 szoba
54 m2
Eladó családi ház
Eladó családi ház

Ceglédbercel, Iskola utca

99.99 M Ft
5 szoba
128 m2
Eladó ikerház
Eladó ikerház

Táborfalva

49.9 M Ft
4 szoba
54 m2
Eladó családi ház
Eladó családi ház

Balatonfenyves

430 M Ft
4 szoba
274 m2
Eladó családi ház
Eladó családi ház

Somogygeszti

38.6 M Ft
3 + 1 szoba
98 m2
Eladó családi ház
Eladó családi ház

Vitnyéd, Petőfi Sándor utca 3

16.71 M Ft
1 + 1 szoba
99 m2