Astora Olive Club House

Eladó téglalakás
Budapest, I. kerület, 3. emelet

+ 12 kép 1/15
164 000 000 Ft164 M Ft 1 656 566 Ft/m2
3 szoba
99 m²
3. emelet
építés éve:1935

Részletes adatok

Állapot: Újszerű
Fűtés: Gázkazán
Emelet: 3. emelet
Extrák: Lift
Energetikai besorolás: Nem adta meg a hirdető

Az OTP Bank lakáshitel ajánlataFizetett hirdetés

+36 30 617
Nádaski Szabina
referens

Érdekel az OTP Bank kedvezményes lakáshitel ajánlata? *

* A kérdésre „Igen” válasz bejelölése esetén, az „Üzenet küldése” gombra kattintva kijelentem, hogy az OTP Bank Nyrt. Adatkezelési tájékoztatójának tartalmát megismertem és tudomásul vettem.

Eladó téglalakás leírása

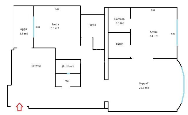
Eladó az I. kerületben, Márvány utcában egy 99 m²-es, 3. emeleti, erkélyes, rendkívül világos és kivételesen igényesen felújított lakás.

A teljes körű felújítás 3 éve történt, amely során a lakás minden eleme megújult, így a leendő tulajdonos egy modern, magas műszaki és esztétikai színvonalú otthonba költözhet.

A tágas elrendezésű ingatlan három szobából, két elegáns fürdőszobából, valamint egy kényelmes gardróbszobából áll. A fűtést kombicirkó biztosítja, padlófűtéssel kiegészítve, a nyílászárók újak, a lakás minden helyisége kiváló állapotú.

A rendezett, liftes társasház jó lakóközösséggel rendelkezik, a környék pedig minden szempontból ideális: kulturális intézmények, parkok, üzletek és tömegközlekedés néhány percen belül elérhetőek. ...TOVÁBBI, TÖBBEZRES INGATLAN KÍNÁLAT: www.gdn-ingatlan.hu - GDN azonosító: 389514

Hirdetés feltöltve: 2025. 11. 12. Utoljára módosítva: 2026. 02. 11.

3 szobás téglalakások ára Budapesten

Ebből az összehasonlításból megtudhatod, hogyan viszonyul a lakás ára a környékbeli téglalakások átlagos árához. Ez nem azt jelenti, hogy ennyivel olcsóbb vagy drágább, mint amennyit a lakás ér, hanem hogy ennyivel tér el a környékbeli átlagtól.

Ennek a m² ára
I. kerület m² ár
Budapest m² ár
1657 e Ft
2318 e Ft 29%
1698 e Ft 2%
Ennek az ára
I. kerület átlagár
Budapest átlagár
164 M Ft m Ft
197.3 m Ft 17%
131.4 m Ft -25%

Az ingatlan elhelyezkedése

Cím: Budapest, I. kerület, 3. emelet

Eladó ingatlanok a környékről

XV. kerület, Újpalota
Eladó panellakás

Budapest, XV. kerület

84 M Ft
3 szoba
61 m²
I. kerület, Víziváros, Bem rakpart
Eladó téglalakás

Budapest, I. kerület

152.4 M Ft
3 szoba
78 m²
III. kerület, Óbuda
Eladó téglalakás

Budapest, III. kerület

64.5 M Ft
2 szoba
37 m²
I. kerület, Krisztinaváros, Attila út
Eladó téglalakás

Budapest, I. kerület

85.9 M Ft
1 szoba
46 m²
IV. kerület, Újpest
Eladó panellakás

Budapest, IV. kerület

72.9 M Ft
3 szoba
53 m²
X. kerület, Felsőrákos
Eladó panellakás

Budapest, X. kerület

94 M Ft
3 szoba
71 m²
XV. kerület, Újpalota
Eladó panellakás

Budapest, XV. kerület

72.5 M Ft
3 szoba
61 m²
I. kerület
Eladó téglalakás

Budapest, I. kerület

305 M Ft
4 szoba
133 m²
III. kerület, Óbuda
Eladó panellakás

Budapest, III. kerület

94.9 M Ft
3 szoba
62 m²
XIV. kerület, Rákosfalva
Eladó panellakás

Budapest, XIV. kerület

69.9 M Ft
3 szoba
55 m²
I. kerület, Krisztinaváros, Alagút utca
Eladó téglalakás

Budapest, I. kerület

99 M Ft
2 + 2 szoba
89 m²
I. kerület
Eladó téglalakás

Budapest, I. kerület

240 M Ft
3 szoba
80 m²
III. kerület, Békásmegyer
Eladó panellakás

Budapest, III. kerület

75.9 M Ft
3 szoba
57 m²
XIV. kerület, Alsórákos
Eladó téglalakás

Budapest, XIV. kerület

249.99 M Ft
4 szoba
119 m²
I. kerület
Eladó téglalakás

Budapest, I. kerület

150 M Ft
2 szoba
55 m²
I. kerület
Eladó téglalakás

Budapest, I. kerület

114.9 M Ft
2 szoba
67 m²
III. kerület, Békásmegyer
Eladó panellakás

Budapest, III. kerület

94.9 M Ft
4 szoba
81 m²
I. kerület, Tabán
Eladó téglalakás

Budapest, I. kerület

319 M Ft
3 szoba
85 m²
I. kerület, Víziváros, Bem rakpart
Eladó téglalakás

Budapest, I. kerület

250 M Ft
2 szoba
81 m²
I. kerület, Víziváros, Hunyadi János út
Eladó téglalakás

Budapest, I. kerület

114.9 M Ft
2 szoba
67 m²
I. kerület, Krisztinaváros, 1.kerület, Márvány utca
Eladó téglalakás

Budapest, I. kerület

120 M Ft
3 szoba
41 m²
VII. kerület
Eladó téglalakás

Budapest, VII. kerület

74.9 M Ft
2 szoba
64 m²
I. kerület, Víziváros, Széna tér
Eladó téglalakás

Budapest, I. kerület

99.9 M Ft
2 szoba
56 m²
I. kerület
Eladó téglalakás

Budapest, I. kerület

99 M Ft
2 + 2 szoba
89 m²

Falusi CSOK ingatlanok

Szigliget
Eladó családi ház

Szigliget

299 M Ft
3 szoba
95 m²
Vid
Eladó családi ház

Vid

29 M Ft
4 szoba
100 m²
Kislippó
Eladó családi ház

Kislippó

16 M Ft
3 szoba
100 m²
Bag
Eladó családi ház

Bag

16.9 M Ft
6 szoba
160 m²
Seregélyes
Eladó családi ház

Seregélyes

75 M Ft
6 szoba
160 m²
Németkér
Eladó családi ház

Németkér

149.9 M Ft
2 szoba
540 m²
Tápszentmiklós
Eladó családi ház

Tápszentmiklós

59.8 M Ft
5 szoba
110 m²
Balatonfenyves
Eladó ikerház

Balatonfenyves

55 M Ft
3 szoba
52 m²