Astora Olive Club House

Eladó téglalakás
Budapest, I. kerület, 2. emelet

+ 13 kép 1/16
99 900 000 Ft99.9 M Ft 1 816 364 Ft/m2
3 szoba
55 m2
2. emelet
építés éve:1920

Részletes adatok

Állapot: Felújított
Fűtés: Gázkazán
Extrák: Lift
Energetikai besorolás: Nem adta meg a hirdető

Az OTP Bank lakáshitel ajánlataFizetett hirdetés

+36 30 597
Persik Lilla Beáta
OTPIP I. kerület Zsolt utcai iroda

Érdekel az OTP Bank kedvezményes lakáshitel ajánlata? *

* A kérdésre „Igen” válasz bejelölése esetén, az „Üzenet küldése” gombra kattintva kijelentem, hogy az OTP Bank Nyrt. Adatkezelési tájékoztatójának tartalmát megismertem és tudomásul vettem.

Eladó téglalakás leírása

Ha a Duna parton szeretne esténként sétálni vagy kocogni, ez a lakás ideális választás lehet. Csodás helyen, prémium lokációval, klasszikus lakás a Fő utcán.

A z ingatlant teljes mértékben felújította a tulajdonosa. Bejárati ajtó, összes nyílászáró, strangok, és a cirkó is ki lett cserélve. A meleget praktikusan padlófűtés szolgáltatja. Klíma és riasztó kiállások előkészítve. Konyhabútor és a minőségi gépek is teljesen újak.
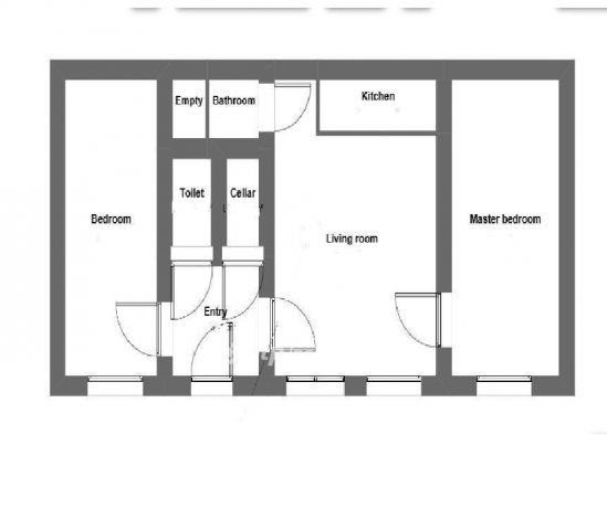
A külön bejáratú szobák mérete és elhelyezkedése is ideális, a mellékelt alaprajzon megtekinthető.
Közös költség 15.000.-Ft, ami tartalmazza a vízdíjat is. A társasháznak van megtakarítása, az épületben mindössze 24 lakás van.

Azonnal költözhető ez a gyönyörű lakás.

Az OTP Bank kedvezményes lakáshitelével segítjük a vásárlását, egyedi kamatfeltételekkel és díjmentes ügyintézéssel. Amennyiben a lakás felkeltette érdeklődését és szívesen megnézné, akkor hívjon bizalommal, akár hétvégén is! Kérem, tekintse meg az ingatlan bemutató videóját:

Hirdetés feltöltve: 2025. 11. 08. Utoljára módosítva: 2025. 11. 09.

3 szobás téglalakások ára Budapesten

Ebből az összehasonlításból megtudhatod, hogyan viszonyul a lakás ára a környékbeli téglalakások átlagos árához. Ez nem azt jelenti, hogy ennyivel olcsóbb vagy drágább, mint amennyit a lakás ér, hanem hogy ennyivel tér el a környékbeli átlagtól.

Ennek a m² ára
I. kerület m² ár
Budapest m² ár
1816 e Ft
2183 e Ft 17%
1701 e Ft -7%
Ennek az ára
I. kerület átlagár
Budapest átlagár
99.9 M Ft m Ft
176.4 m Ft 43%
132.4 m Ft 25%

Az ingatlan elhelyezkedése

Cím: Budapest, I. kerület, 2. emelet

Eladó ingatlanok a környékről

Eladó téglalakás
Eladó téglalakás

I. kerület, Víziváros, Bem rakpart

240.078 M Ft
3 szoba
96 m2
Eladó téglalakás
Eladó téglalakás

XI. kerület, Kelenföld

89.9 M Ft
2 szoba
52 m2
Eladó téglalakás
Eladó téglalakás

I. kerület

240 M Ft
3 szoba
80 m2
Eladó téglalakás
Eladó téglalakás

I. kerület, Víziváros, Hunfalvy utca

58 M Ft
1 szoba
29 m2
Eladó téglalakás
Eladó téglalakás

I. kerület, Tabán, Döbrentei utca

240 M Ft
3 szoba
100 m2
Eladó téglalakás
Eladó téglalakás

XIII. kerület

87 M Ft
2 szoba
60 m2
Eladó téglalakás
Eladó téglalakás

I. kerület, Krisztinaváros, 1.kerület, Márvány utca

120 M Ft
3 szoba
41 m2
Eladó téglalakás
Eladó téglalakás

I. kerület

199.5 M Ft
3 szoba
94 m2
Eladó téglalakás
Eladó téglalakás

VII. kerület, Thököly út

69.9 M Ft
1 + 1 szoba
47 m2
Eladó téglalakás
Eladó téglalakás

I. kerület, Víziváros, Bem rakpart

250 M Ft
2 szoba
81 m2
Eladó téglalakás
Eladó téglalakás

I. kerület

78 M Ft
1 szoba
32 m2
Eladó téglalakás
Eladó téglalakás

VIII. kerület

75 M Ft
2 + 1 szoba
70 m2
Eladó téglalakás
Eladó téglalakás

V. kerület, Belváros

99 M Ft
2 szoba
44 m2
Eladó téglalakás
Eladó téglalakás

I. kerület

114.9 M Ft
2 szoba
67 m2
Eladó garázs
Eladó garázs

XIV. kerület

8.999 M Ft
24 m2
Eladó panellakás
Eladó panellakás

III. kerület, Óbuda

83.9 M Ft
3 szoba
66 m2
Eladó panellakás
Eladó panellakás

XIV. kerület, Törökőr, Pillangó park

69.9 M Ft
2 szoba
50 m2
Eladó téglalakás
Eladó téglalakás

I. kerület, Víziváros, Bem rakpart

152.4 M Ft
3 szoba
78 m2
Eladó téglalakás
Eladó téglalakás

I. kerület

99 M Ft
2 + 2 szoba
89 m2
Eladó téglalakás
Eladó téglalakás

I. kerület, Víziváros, Attila

119.5 M Ft
2 szoba
76 m2
Eladó téglalakás
Eladó téglalakás

I. kerület, Tabán, Orom utca

419.1 M Ft
2 szoba
117 m2
Eladó téglalakás
Eladó téglalakás

I. kerület, Krisztinaváros, Alagút utca

99 M Ft
2 + 2 szoba
89 m2
Eladó téglalakás
Eladó téglalakás

I. kerület

114.9 M Ft
2 szoba
67 m2
Eladó téglalakás
Eladó téglalakás

XIV. kerület

230 M Ft
4 szoba
160 m2

Falusi CSOK ingatlanok

Eladó családi ház
Eladó családi ház

Tokod

89 M Ft
6 szoba
187 m2
Eladó családi ház
Eladó családi ház

Kenyeri

21.8 M Ft
2 szoba
75 m2
Eladó ikerház
Eladó ikerház

Balatonakali

165 M Ft
4 szoba
138 m2
Eladó családi ház
Eladó családi ház

Tömörkény

8.9 M Ft
2 szoba
80 m2
Eladó családi ház
Eladó családi ház

Örkény

36.5 M Ft
2 szoba
56 m2
Eladó sorház
Eladó sorház

Egervár

29.9 M Ft
3 szoba
90 m2
Eladó családi ház
Eladó családi ház

Bakonycsernye

39 M Ft
3 szoba
350 m2
Eladó családi ház
Eladó családi ház

Balatonfenyves

430 M Ft
4 szoba
274 m2