Seven Pearl

Eladó téglalakás
Balatonfűzfő

+ 7 kép 1/10
88 900 000 Ft88.9 M Ft 1 814 286 Ft/m2
2 szoba
49 m²
építés éve:2025

Részletes adatok

Fűtés: Egyéb
Energetikai besorolás: Nem adta meg a hirdető

Az OTP Bank lakáshitel ajánlataFizetett hirdetés

+36 30 466
Griecs Krisztián
referens

Érdekel az OTP Bank kedvezményes lakáshitel ajánlata? *

* A kérdésre „Igen” válasz bejelölése esetén, az „Üzenet küldése” gombra kattintva kijelentem, hogy az OTP Bank Nyrt. Adatkezelési tájékoztatójának tartalmát megismertem és tudomásul vettem.

Eladó téglalakás leírása

Kertkapcsolatos új építésű lakás Balatonfűzfőn, 100 méterre a Föveny strandtól
Balatonfűzfő egyik legkedveltebb részén, Fűzfőfürdőn kínálunk megvételre egy azonnal birtokba vehető, kertkapcsolatos, új építésű lakást, mindössze 100 méterre a Balaton partjától és a Föveny strandtól. A modern kialakítás, a saját kert és a kiváló lokáció ideális választássá teszi nyaralónak, állandó otthonnak vagy akár befektetésnek is.
A mindössze 6 lakásos társasház a főutca közelében, mégis kellemes balatoni környezetben épült. A kis lakásszámú épület nyugodt, átlátható lakóközösséget biztosít, miközben a strand, éttermek, üzletek és szolgáltatások pár perc sétával elérhetők.
A földszinti lakás praktikus elrendezésű, világos terekkel és közvetlen kertkapcsolattal rendelkezik, amely különösen értékessé teszi a balatoni életérzés szempontjából.
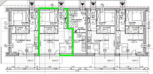
A lakás főbb paraméterei
-Elrendezés: nappali + 1 hálószoba
-Közlekedő: 6,3 m2
-Szoba: 10,65 m2
-Amerikai konyhás nappali: 27 m2
-Fürdőszoba + WC: 4,97 m2
Terasz: 10,07 m2
Kiegészítő területek
-Kizárólagos használatú kert: 40 m2
-Udvari gépkocsibeálló: 13,75 m2
A vételár tartalmazza a saját kertet és az udvari gépkocsibeállót is.
Műszaki megoldások és komfort
A lakás korszerű gépészeti rendszerrel készült, amely egész évben kényelmes használatot biztosít.
-Panasonic 4,5 kW hőszivattyús rendszer
-energiatakarékos padlófűtés
-fürdőszobában törölközőszárítós radiátor
-mennyezeti hűtőpaneles hűtési rendszer
-modern, alacsony fenntartási költség
Lokáció és környezet
Balatonfűzfő a Balaton északkeleti részének egyik legélhetőbb települése, amely kiváló infrastruktúrával és természetközeli környezettel várja az itt élőket.
-Föveny strand: kb. 100 m
-éttermek, büfék, üzletek a közelben
-posta és szolgáltatások pár perc távolságra
-Budapest autóval kb. 1 óra az M7-es autópályán
-vasúton is könnyen megközelíthető
Kinek lehet ideális ez az ingatlan
Ez a lakás ideális választás lehet
-balatoni nyaralót keresők számára
-egész évben használható otthont keresőknek
-befektetőknek rövid vagy hosszú távú kiadás céljából
-azoknak, akik értékelik a strand közelségét és a saját kert nyugalmát
Az ingatlan az OTP Ingatlanpont kínálatában érhető el, amely az OTP bankcsoport szakmai hátterével biztonságos és átlátható ügyintézést biztosít. Igény esetén finanszírozási megoldásokkal és megbízható ügyvédi háttérrel is támogatjuk a teljes adásvételi folyamatot.
Amennyiben szeretné személyesen is megtekinteni ezt a Balaton-part közeli, új építésű lakást, keressen bizalommal, és egyeztessünk időpontot a bemutatásra.

Hirdetés feltöltve: 2026. 03. 08. Utoljára módosítva: 2026. 05. 10.

2 szobás téglalakások ára Balatonfűzfőn

Ebből az összehasonlításból megtudhatod, hogyan viszonyul a lakás ára a környékbeli téglalakások átlagos árához. Ez nem azt jelenti, hogy ennyivel olcsóbb vagy drágább, mint amennyit a lakás ér, hanem hogy ennyivel tér el a környékbeli átlagtól.

Ennek a m² ára
Balatonfűzfő m² ár
1814 e Ft
1537 e Ft -18%
Ennek az ára
Balatonfűzfő átlagár
88.9 M Ft m Ft
79.4 m Ft -12%

Az ingatlan elhelyezkedése

Cím: Balatonfűzfő

Eladó téglalakások a környékről

Balatonakarattya
Eladó téglalakás

Balatonakarattya

163.576 M Ft
2 szoba
62 m²
Balatonakarattya
Eladó téglalakás

Balatonakarattya

239.192 M Ft
3 szoba
92 m²
Balatonfűzfő
Eladó téglalakás

Balatonfűzfő

67 M Ft
4 szoba
76 m²
Balatonakarattya
Eladó téglalakás

Balatonakarattya

186.639 M Ft
3 szoba
71 m²
Balatonakarattya
Eladó téglalakás

Balatonakarattya

160.147 M Ft
2 szoba
61 m²
Balatonakarattya
Eladó téglalakás

Balatonakarattya

170.637 M Ft
2 szoba
65 m²
Balatonfűzfő
Eladó téglalakás

Balatonfűzfő

55 M Ft
2 szoba
53 m²
Balatonfűzfő
Eladó téglalakás

Balatonfűzfő

67 M Ft
4 szoba
76 m²
Balatonakarattya
Eladó téglalakás

Balatonakarattya

142.469 M Ft
2 szoba
54 m²
Balatonfüred
Eladó téglalakás

Balatonfüred

165.06 M Ft
2 szoba
60 m²
Balatonfűzfő
Eladó téglalakás

Balatonfűzfő

110 M Ft
2 szoba
54 m²
Balatonfűzfő
Eladó téglalakás

Balatonfűzfő

54.9 M Ft
3 szoba
260 m²
Balatonfüred
Eladó téglalakás

Balatonfüred

399 M Ft
3 szoba
120 m²
Balatonakarattya
Eladó téglalakás

Balatonakarattya

205.384 M Ft
3 szoba
78 m²
Balatonfűzfő
Eladó téglalakás

Balatonfűzfő

55 M Ft
2 szoba
53 m²
Balatonfűzfő
Eladó téglalakás

Balatonfűzfő

110 M Ft
2 szoba
54 m²
Balatonfüred
Eladó téglalakás

Balatonfüred

217 M Ft
4 szoba
168 m²
Balatonfűzfő
Eladó téglalakás

Balatonfűzfő

52.5 M Ft
2 szoba
53 m²
Balatonfűzfő
Eladó téglalakás

Balatonfűzfő

399 M Ft
6 szoba
225 m²
Balatonfüred
Eladó téglalakás

Balatonfüred

143 M Ft
3 szoba
83 m²
Balatonakarattya
Eladó téglalakás

Balatonakarattya

184.95 M Ft
2 szoba
70 m²
Balatonakarattya
Eladó téglalakás

Balatonakarattya

225.4 M Ft
3 szoba
86 m²
Balatonakarattya
Eladó téglalakás

Balatonakarattya

211.785 M Ft
3 szoba
81 m²
Balatonfűzfő
Eladó téglalakás

Balatonfűzfő

21.5 M Ft
1 szoba
16 m²

Falusi CSOK ingatlanok

Vid
Eladó családi ház

Vid

27 M Ft
4 szoba
100 m²
Csány, Központi elhelyezkedés
Eladó családi ház

Csány

45.9 M Ft
3 szoba
97 m²
Kétegyháza
Eladó családi ház

Kétegyháza

21 M Ft
3 szoba
105 m²
Sárosd
Eladó családi ház

Sárosd

21.9 M Ft
3 szoba
86 m²
Kaposgyarmat
Eladó családi ház

Kaposgyarmat

695 M Ft
6 szoba
610 m²
Kiszombor, Óbébai utca
Eladó családi ház

Kiszombor

32.9 M Ft
4 szoba
140 m²
Marcalgergelyi
Eladó családi ház

Marcalgergelyi

31 M Ft
2 + 1 szoba
120 m²
Hegyeshalom, Margaréta utca 12
Eladó téglalakás

Hegyeshalom

50.09 M Ft
2 szoba
43 m²