Metrodom

Eladó téglalakás
Ajka

+ 6 kép 1/9
81 900 000 Ft81.9 M Ft 795 146 Ft/m2
1 + 4 szoba
103 m²
építés éve:2025

Részletes adatok

Fűtés: Egyéb
Energetikai besorolás: Nem adta meg a hirdető

Az OTP Bank lakáshitel ajánlataFizetett hirdetés

+36 20 475
Nagy Zoltán
referens

Érdekel az OTP Bank kedvezményes lakáshitel ajánlata? *

* A kérdésre „Igen” válasz bejelölése esetén, az „Üzenet küldése” gombra kattintva kijelentem, hogy az OTP Bank Nyrt. Adatkezelési tájékoztatójának tartalmát megismertem és tudomásul vettem.

Eladó téglalakás leírása

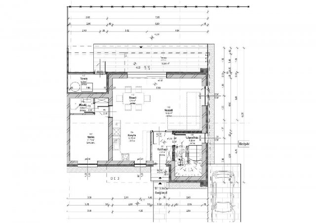
ÚJ ÉPÍTÉSŰ, AZONNAL KÖLTÖZHETŐ KÖZELI ÁLLAPOT - 2 SZINTES, 4 SZOBÁS SORHÁZI LAKÁS AJKA-BAKONYGYEPESEN (B1 jelölésű)

Ajka-Bakonygyepes csendes, zöldövezeti részén kínálunk megvételre egy modern kialakítású, kétszintes sorházi lakást (B1 jelölés), rendezett, zárt udvaros lakókörnyezetben.
Az ingatlan előrehaladott készültségi állapotban van, jelenleg a belső munkálatok zajlanak, így rövid időn belül költözhető.

*A lakás főbb jellemzői (B1):
-Lakótér: 103,68 m2
-Nappali + 3 külön nyíló szoba
-2 szint
-Dupla WC + fürdőszoba
-Terasz + saját kertkapcsolat
-Udvari parkolás

A földszinten egy tágas, világos nappali-étkező-konyha kapott helyet, közvetlen teraszkapcsolattal, amely ideális családi élethez és mindennapi kényelemhez.
Az emeleten 3 különálló hálószoba, valamint egy fürdő és külön WC biztosítja a jól elkülönített élettereket.

*Műszaki tartalom - korszerű megoldások:
-Hőszivattyús fűtés + padlófűtés
-25-30 cm Porotherm falazat
-15 cm homlokzati hőszigetelés
-Modern, hőszigetelt nyílászárók
-Monolit vasbeton födém és lépcső
-A kivitelezés részletes műszaki tartalma dokumentált (kérésre el tudjuk küldeni)

*Környezet:
Bakonygyepes a nyugodt, természetközeli életet kedvelők egyik kedvelt választása:
csendes, családbarát környezet
zöldövezet
Ajka központja pár perc alatt elérhető

*Parkolás
-saját beálló az udvarban
-térkövezett, rendezett környezet

*Állapot / birtokbaadás
-előrehaladott készültség
-rövid határidőn belüli költözés

*Miért érdemes megnézni?
-nem terv, már kézzelfogható
-modern, energiatakarékos otthon
-ideális családoknak
-tágasabb belső tér
-jól élhető, praktikus elrendezés

*Ugyanitt további lakások is elérhetők:
-B3 jelölésű lakás: 89,75 m? ? 79.000.000 forint
-A3 jelölésű lakás: 98,13 m? ? 75.000.000 forint

Az egyes lakások eltérő mérettel és elrendezéssel rendelkeznek, így érdemes több típust is megtekinteni.
A lakások folyamatos értékesítés alatt állnak.

*Kapcsolat
Amennyiben a hirdetés felkeltette érdeklődését, keressen bizalommal akár hétvégén is!
Az ingatlan előre egyeztetett időpontban rugalmasan megtekinthető.

Jöjjön el, nézze meg személyesen, és tegyen ajánlatot!

*Teljes körű ügyintézés
Az OTP Ingatlanpont teljes körű támogatást nyújt:
kedvezményes hitellehetőségek
megbízható ügyvédi háttér
teljes körű ügyintézés az adásvétel során
Célunk, hogy az Ön vásárlása biztonságos és zökkenőmentes legyen.

*További információk
Energetikai tanúsítvány: folyamatban
Az ingatlan megfelel a fix 3%-os Otthon Start Hitelprogram feltételeinek

Hirdetés feltöltve: 2026. 03. 23.

Az ingatlan elhelyezkedése

Cím: Ajka

Eladó téglalakások a környékről

Balatonakarattya
Eladó téglalakás

Balatonakarattya

208.331 M Ft
3 szoba
80 m²
Balatonakarattya
Eladó téglalakás

Balatonakarattya

163.576 M Ft
2 szoba
62 m²
Ajka
Eladó téglalakás

Ajka

52 M Ft
2 + 2 szoba
98 m²
Ajka, Május 1 tér
Eladó téglalakás

Ajka

33.5 M Ft
2 szoba
52 m²
Ajka
Eladó téglalakás

Ajka

88.179 M Ft
3 + 1 szoba
90 m²
Ajka
Eladó téglalakás

Ajka

41.9 M Ft
2 szoba
63 m²
Balatonakarattya
Eladó téglalakás

Balatonakarattya

239.192 M Ft
3 szoba
92 m²
Ajka
Eladó téglalakás

Ajka

35.5 M Ft
2 szoba
53 m²
Balatonfüred
Eladó téglalakás

Balatonfüred

184 M Ft
4 szoba
119 m²
Balatonfüred
Eladó téglalakás

Balatonfüred

436.916 M Ft
3 szoba
142 m²
Balatonakarattya
Eladó téglalakás

Balatonakarattya

159.487 M Ft
2 szoba
60 m²
Balatonakarattya
Eladó téglalakás

Balatonakarattya

186.639 M Ft
3 szoba
71 m²
Balatonakarattya
Eladó téglalakás

Balatonakarattya

184.95 M Ft
2 szoba
70 m²
Ajka
Eladó téglalakás

Ajka

41.9 M Ft
2 szoba
63 m²
Balatonfüred
Eladó téglalakás

Balatonfüred

435.728 M Ft
3 szoba
148 m²
Ajka
Eladó téglalakás

Ajka

79 M Ft
3 szoba
89 m²
Balatonfüred
Eladó téglalakás

Balatonfüred

399 M Ft
3 szoba
120 m²
Balatonakarattya
Eladó téglalakás

Balatonakarattya

176.581 M Ft
2 szoba
67 m²
Balatonalmádi
Eladó téglalakás

Balatonalmádi

103 M Ft
2 szoba
47 m²
Ajka
Eladó téglalakás

Ajka

35.9 M Ft
2 szoba
53 m²
Balatonakarattya
Eladó téglalakás

Balatonakarattya

170.637 M Ft
2 szoba
65 m²
Pápa
Eladó téglalakás

Pápa

37.445 M Ft
1 + 1 szoba
41 m²
Balatonakarattya
Eladó téglalakás

Balatonakarattya

225.4 M Ft
3 szoba
86 m²
Balatonakarattya
Eladó téglalakás

Balatonakarattya

211.785 M Ft
3 szoba
81 m²

Falusi CSOK ingatlanok

Szilvásvárad
Eladó családi ház

Szilvásvárad

104.9 M Ft
5 szoba
340 m²
Nagyréde
Eladó családi ház

Nagyréde

69.5 M Ft
4 szoba
110 m²
Magyarbánhegyes
Eladó családi ház

Magyarbánhegyes

224 M Ft
5 szoba
600 m²
Újszilvás
Eladó családi ház

Újszilvás

49.9 M Ft
8 szoba
310 m²
Rakamaz
Eladó családi ház

Rakamaz

86.9 M Ft
5 szoba
280 m²
Nyáregyháza
Eladó családi ház

Nyáregyháza

114.99 M Ft
7 szoba
267 m²
Hosszúhetény, Petőfi Sándor utca 10
Eladó családi ház

Hosszúhetény

20.65 M Ft
4 + 2 szoba
133 m²
Balatonszemes
Eladó téglalakás

Balatonszemes

125.2 M Ft
2 szoba
50 m²