River Life

Eladó téglalakás
Ács, földszint

59 949 400 Ft59.949 M Ft 856 420 Ft/m2
3 szoba
70 m²
földszint
építés éve:2025

Részletes adatok

Fűtés: Egyéb
Emelet: földszint
Energetikai besorolás: Nem adta meg a hirdető

Az OTP Bank lakáshitel ajánlataFizetett hirdetés

+36 70 321
Berkiné Pölöskei Erzsébet
referens

Érdekel az OTP Bank kedvezményes lakáshitel ajánlata? *

* A kérdésre „Igen” válasz bejelölése esetén, az „Üzenet küldése” gombra kattintva kijelentem, hogy az OTP Bank Nyrt. Adatkezelési tájékoztatójának tartalmát megismertem és tudomásul vettem.

Eladó téglalakás leírása

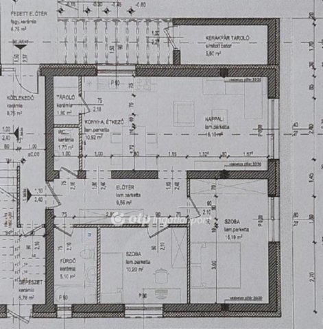
Komárom-Esztergom vármegyében, Ácson modern, 4 lakásos társasházakban új építésű lakások vásárolhatók kiváló műszaki tartalommal és minőségi beépített anyagokkal. 2026. II. negyedévi átadással emeltszintű fűtés- szerkezetkész állapotban leköthetők, igény szerint kulcsrakész átadást is vállal a kivitelező. Az épületek monolit vasbeton vázszerkezettel készülnek, falazatuk 30 cm vastag Leier Plan tégla, míg a válaszfalak 10 cm-es hanggátló téglából épülnek. A homlokzati hőszigetelés 15 cm vastagságú. Beépített nyílászárók kiváló minőséget képviselnek, 5 légkamrás, 3 rétegű üveggel, motoros redőnnyel, szúnyoghálóval ellátott ablakok, kívül dió, belül fehér színben.
A földszinti lakások kizárólagos használatú kerttel rendelkeznek, míg az emeleti lakásokhoz tágas erkély tartozik. A fűtésről és melegvízellátásról lakásonként saját hőszivattyú gondoskodik, padlófűtéssel fürdőben törölközőszárítóval. A meghirdetett ár szerkezetkész állapotra vonatkozik, MAGÁBAN FOGLALJA A TELEKHÁNYADOT, VALAMINT AJÁNDÉK KOCSIBEÁLLÓT. Ez egy földszinti lakás, 70,67nm +163nm saját használatú kertkapcsolat.
A projekt nyugodt, zöld környezetben valósul meg, napfényes és tágas lakásokkal, praktikus alaprajzokkal és modern megoldásokkal. Több éves tapasztalattal rendelkező kivitelező garantálja a minőséget, nyugodt,élhető, környezetben.
Amennyiben további kérdése van, forduljon hozzánk bizalommal elérhetőségeinken.

Referencia szám: M311378-ZE

Hirdetés feltöltve: 2026. 04. 27. Utoljára módosítva: 2026. 04. 27.

3 szobás téglalakások ára Ácson

Ebből az összehasonlításból megtudhatod, hogyan viszonyul a lakás ára a környékbeli téglalakások átlagos árához. Ez nem azt jelenti, hogy ennyivel olcsóbb vagy drágább, mint amennyit a lakás ér, hanem hogy ennyivel tér el a környékbeli átlagtól.

Ennek a m² ára
Ács m² ár
856 e Ft
526 e Ft -63%
Ennek az ára
Ács átlagár
59.949 M Ft m Ft
31.5 m Ft -90%

Az ingatlan elhelyezkedése

Cím: Ács, földszint

Eladó ingatlanok a környékről

Sárisáp
Eladó telek

Sárisáp

10.9 M Ft
410 m²
0 m²
Komárom, Mártírok útja
Eladó téglalakás

Komárom

39.053 M Ft
1 szoba
36 m²
Esztergom
Eladó családi ház

Esztergom

119 M Ft
7 szoba
180 m²
Komárom, Mártírok útja
Eladó téglalakás

Komárom

37.658 M Ft
2 szoba
44 m²
Oroszlány
Eladó mezogazdasagi ingatlan

Oroszlány

15.5 M Ft
1 szoba
26 m²
Tatabánya
Eladó panellakás

Tatabánya

43.26 M Ft
2 szoba
53 m²
Komárom, Mártírok útja
Eladó téglalakás

Komárom

44.668 M Ft
2 szoba
55 m²
Esztergom
Eladó családi ház

Esztergom

149.9 M Ft
9 szoba
360 m²
Komárom, Mártírok útja
Eladó téglalakás

Komárom

42.443 M Ft
2 szoba
52 m²
Ács
Eladó téglalakás

Ács

71.095 M Ft
4 szoba
95 m²
Ács
Eladó téglalakás

Ács

59.949 M Ft
3 szoba
70 m²
Tokod
Eladó családi ház

Tokod

169 M Ft
6 szoba
220 m²
Komárom, Mártírok útja
Eladó téglalakás

Komárom

38.813 M Ft
47 m²
Sárisáp
Eladó családi ház

Sárisáp

69.9 M Ft
5 szoba
160 m²
Komárom, Mártírok útja
Eladó téglalakás

Komárom

37.633 M Ft
2 szoba
45 m²
Dömös
Eladó családi ház

Dömös

59.99 M Ft
2 szoba
89 m²
Tatabánya, Sárberek, Dr. Vitális István utca
Eladó téglalakás

Tatabánya

39.99 M Ft
2 szoba
63 m²
Ács
Eladó téglalakás

Ács

71.167 M Ft
4 szoba
84 m²
Tatabánya
Eladó téglalakás

Tatabánya

44.9 M Ft
2 szoba
52 m²
Lábatlan
Eladó téglalakás

Lábatlan

38.9 M Ft
2 szoba
46 m²
Komárom, Mártírok útja
Eladó téglalakás

Komárom

45.484 M Ft
2 szoba
43 m²
Komárom, Mártírok útja
Eladó téglalakás

Komárom

49.58 M Ft
2 szoba
51 m²
Oroszlány
Eladó téglalakás

Oroszlány

28.499 M Ft
3 szoba
51 m²
Komárom, Mártírok útja
Eladó téglalakás

Komárom

40.755 M Ft
1 szoba
33 m²

Falusi CSOK ingatlanok

Balatonakali
Eladó ikerház

Balatonakali

560 M Ft
4 szoba
140 m²
Kéthely
Eladó családi ház

Kéthely

141.425 M Ft
4 szoba
163 m²
Badacsonytördemic
Eladó családi ház

Badacsonytördemic

90 M Ft
3 szoba
130 m²
Enese
Eladó családi ház

Enese

94.99 M Ft
3 + 1 szoba
124 m²
Balatonszárszó
Eladó családi ház

Balatonszárszó

30 M Ft
3 szoba
45 m²
Marcalgergelyi
Eladó családi ház

Marcalgergelyi

31 M Ft
2 + 1 szoba
120 m²
Herend
Eladó családi ház

Herend

144.9 M Ft
7 szoba
285 m²
Törtel
Eladó családi ház

Törtel

32.5 M Ft
3 szoba
66 m²