City Pearl

Eladó téglalakás
Ács, földszint

59 949 400 Ft59.949 M Ft 856 420 Ft/m2
3 szoba
70 m2
földszint
építés éve:2025

Részletes adatok

Fűtés: Egyéb
Energetikai besorolás: Nem adta meg a hirdető

Az OTP Bank lakáshitel ajánlataFizetett hirdetés

+36 70 372
Dobos András
referens

Érdekel az OTP Bank kedvezményes lakáshitel ajánlata? *

* A kérdésre „Igen” válasz bejelölése esetén, az „Üzenet küldése” gombra kattintva kijelentem, hogy az OTP Bank Nyrt. Adatkezelési tájékoztatójának tartalmát megismertem és tudomásul vettem.

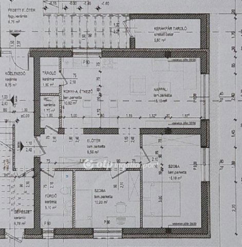
Eladó téglalakás leírása

Komárom-Esztergom vármegyében, Ácson modern, 4 lakásos társasházakban új építésű lakások vásárolhatók kiváló műszaki tartalommal és minőségi beépített anyagokkal. 2026. II. negyedévi átadással emeltszintű fűtés- szerkezetkész állapotban leköthetők, igény szerint kulcsrakész átadást is vállal a kivitelező. Az épületek monolit vasbeton vázszerkezettel készülnek, falazatuk 30 cm vastag Leier Plan tégla, míg a válaszfalak 10 cm-es hanggátló téglából épülnek. A homlokzati hőszigetelés 15 cm vastagságú. Beépített nyílászárók kiváló minőséget képviselnek, 5 légkamrás, 3 rétegű üveggel, motoros redőnnyel, szúnyoghálóval ellátott ablakok, kívül dió, belül fehér színben.
A földszinti lakások kizárólagos használatú kerttel rendelkeznek, míg az emeleti lakásokhoz tágas erkély tartozik. A fűtésről és melegvízellátásról lakásonként saját hőszivattyú gondoskodik, padlófűtéssel fürdőben törölközőszárítóval. A meghirdetett ár szerkezetkész állapotra vonatkozik, MAGÁBAN FOGLALJA A TELEKHÁNYADOT, VALAMINT AJÁNDÉK KOCSIBEÁLLÓT. Ez egy földszinti lakás, 70,67nm +163nm saját használatú kertkapcsolat.
A projekt nyugodt, zöld környezetben valósul meg, napfényes és tágas lakásokkal, praktikus alaprajzokkal és modern megoldásokkal. Több éves tapasztalattal rendelkező kivitelező garantálja a minőséget, nyugodt,élhető, környezetben.
Amennyiben további kérdése van, forduljon hozzánk bizalommal elérhetőségeinken.

59949400 Ft
Tekintse meg személyesen, várom hívását!
Dobos András +36703724717

Referencia szám: M311378

Hirdetés feltöltve: 2025. 10. 06. Utoljára módosítva: 2025. 12. 03.

3 szobás téglalakások ára Ácson

Ebből az összehasonlításból megtudhatod, hogyan viszonyul a lakás ára a környékbeli téglalakások átlagos árához. Ez nem azt jelenti, hogy ennyivel olcsóbb vagy drágább, mint amennyit a lakás ér, hanem hogy ennyivel tér el a környékbeli átlagtól.

Ennek a m² ára
Ács m² ár
856 e Ft
526 e Ft -63%
Ennek az ára
Ács átlagár
59.949 M Ft m Ft
31.5 m Ft -90%

Az ingatlan elhelyezkedése

Cím: Ács, földszint

Eladó ingatlanok a környékről

Eladó családi ház
Eladó családi ház

Esztergom

43 M Ft
2 szoba
72 m2
Eladó panellakás
Eladó panellakás

Dorog

53 M Ft
3 szoba
68 m2
Eladó téglalakás
Eladó téglalakás

Oroszlány

25.9 M Ft
1 szoba
37 m2
Eladó téglalakás
Eladó téglalakás

Nyergesújfalu, Kossuth Lajos utca

82.9 M Ft
3 szoba
80 m2
Eladó ipari ingatlan
Eladó ipari ingatlan

Mocsa

460 M Ft
24 szoba
949 m2
Eladó családi ház
Eladó családi ház

Esztergom

85 M Ft
5 szoba
134 m2
Eladó téglalakás
Eladó téglalakás

Ács

62.984 M Ft
4 szoba
76 m2
Eladó téglalakás
Eladó téglalakás

Komárom

22.4 M Ft
1 szoba
32 m2
Eladó téglalakás
Eladó téglalakás

Komárom, Mártírok útja

33.946 M Ft
2 szoba
43 m2
Eladó téglalakás
Eladó téglalakás

Komárom, Mártírok útja

34.02 M Ft
2 szoba
48 m2
Eladó családi ház
Eladó családi ház

Kesztölc

24.9 M Ft
1 szoba
26 m2
Eladó téglalakás
Eladó téglalakás

Komárom, Városi

86.06 M Ft
2 szoba
73 m2
Eladó téglalakás
Eladó téglalakás

Komárom, Mártírok útja

43.477 M Ft
2 szoba
50 m2
Eladó panellakás
Eladó panellakás

Dorog, Schmidt Sándor lakótelep

47 M Ft
3 szoba
59 m2
Eladó téglalakás
Eladó téglalakás

Komárom, Mártírok útja

35.361 M Ft
2 szoba
45 m2
Eladó téglalakás
Eladó téglalakás

Tatabánya

48.6 M Ft
3 szoba
56 m2
Eladó téglalakás
Eladó téglalakás

Esztergom

125 M Ft
5 szoba
114 m2
Eladó téglalakás
Eladó téglalakás

Komárom

83 M Ft
3 szoba
104 m2
Eladó téglalakás
Eladó téglalakás

Ács

60.77 M Ft
2 szoba
74 m2
Eladó téglalakás
Eladó téglalakás

Esztergom, Vaskapui út

99.9 M Ft
4 szoba
140 m2
Eladó téglalakás
Eladó téglalakás

Esztergom

125 M Ft
5 szoba
114 m2
Eladó téglalakás
Eladó téglalakás

Komárom

30.8 M Ft
1 szoba
44 m2
Eladó családi ház
Eladó családi ház

Esztergom

50 M Ft
4 szoba
120 m2
Eladó téglalakás
Eladó téglalakás

Nyergesújfalu, Hullám utca

25.9 M Ft
2 szoba
42 m2

Falusi CSOK ingatlanok

Eladó ikerház
Eladó ikerház

Balatonakali

165 M Ft
4 szoba
138 m2
Eladó családi ház
Eladó családi ház

Kaposgyarmat

5.9 M Ft
1 szoba
40 m2
Eladó családi ház
Eladó családi ház

Mikepércs

59.99 M Ft
4 szoba
81 m2
Eladó családi ház
Eladó családi ház

Balatonszárszó

185 M Ft
6 szoba
260 m2
Eladó családi ház
Eladó családi ház

Fertőd

189.9 M Ft
4 szoba
175 m2
Eladó családi ház
Eladó családi ház

Tápiógyörgye

33 M Ft
3 + 2 szoba
140 m2
Eladó családi ház
Eladó családi ház

Csengőd

34 M Ft
2 szoba
81 m2
Eladó családi ház
Eladó családi ház

Kaposgyarmat

695 M Ft
6 szoba
610 m2