Avico Greentop

Eladó sorház
Helvécia

+ 4 kép 1/7
57 500 000 Ft57.5 M Ft 958 333 Ft/m2
3 szoba
60 m2
építés éve:2024

Részletes adatok

Telekméret: 224 m2
Fűtés: Gázkazán
Energetikai besorolás: Nem adta meg a hirdető

Az OTP Bank lakáshitel ajánlataFizetett hirdetés

+36 70 389
Várnagy Krisztina
HOUSE36 Ingatlanbázis Kft.

Érdekel az OTP Bank kedvezményes lakáshitel ajánlata? *

* A kérdésre „Igen” válasz bejelölése esetén, az „Üzenet küldése” gombra kattintva kijelentem, hogy az OTP Bank Nyrt. Adatkezelési tájékoztatójának tartalmát megismertem és tudomásul vettem.

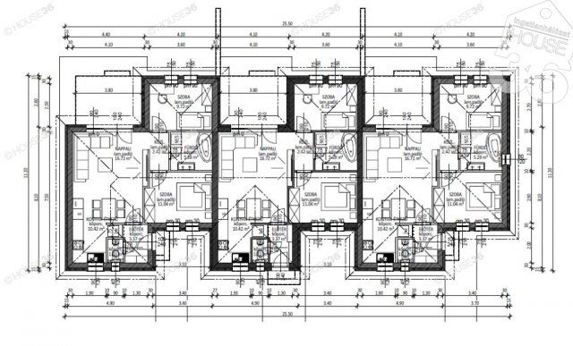
Eladó sorház leírása

​Kecskemét közvetlen közelében, központtól kb 8 perc autóútra lakóparkban, önálló kertes lakások eladók saját beállókkal!

Kecskemét gyorsan fejlődő városrészében eladó új építésű lakások.
A házak összközműves, betonos utcában találhatóak.
A lakások 60,18 m2-es, nappali + 2 szobás, külön wc-s, külön gépkocsi beállási lehetőséggel ellátottak.
225 m2 telekhányaddal. (10. 6.7.)
A parkba összesen 4 X 3 lakásos tömbök lesznek elhelyezve.

Egyéb paraméterek:

Wienerberger Porotherm X-Therm tégla (+ 40 % hőtartás)
15 cm szigetelés
gáz cirkós fűtésrendszer
Klíma
padlófűtés
prémium minőségű műanyag nyílászárók
szaniterek 1 millió forintig az árban
hideg - meleg burkolatok 9000.-/ m2
ár garancia
idő garancia
várható átadás 2026. április

RÉGI MEGY, ÚJ JÖN? KERESSEN BIZALOMMAL!! SEGÍTEK MEGOLDANI!!

Figyelem, az adatlap megbízóinktól kapott adatok alapján készültek, pontosságáért felelősséget nem tudunk vállalni!
A HOUSE36 kínálatában található összes ingatlannal kapcsolatban tudok felvilágosítást nyújtani.
Szolgáltatásaink ügyfeleink részére díjmentesek!
Az iroda legfrissebb, aktuális kínálatát a HOUSE36 saját weboldalán találja!

Hirdetés feltöltve: 2025. 12. 06. Utoljára módosítva: 2026. 01. 16.

Az ingatlan elhelyezkedése

Cím: Helvécia

Eladó ingatlanok a környékről

Eladó sorház
Eladó sorház

Kecskemét

109.9 M Ft
4 szoba
109 m2
Eladó sorház
Eladó sorház

Helvécia

57.5 M Ft
3 szoba
60 m2
Eladó családi ház
Eladó családi ház

Kecskemét

100 M Ft
4 szoba
128 m2
Eladó sorház
Eladó sorház

Kecskemét

109.9 M Ft
4 szoba
109 m2
Eladó hotel
Eladó hotel

Baja

88 M Ft
5 szoba
110 m2
Eladó sorház
Eladó sorház

Kecskemét

64.9 M Ft
3 szoba
57 m2
Eladó panellakás
Eladó panellakás

Kecskemét

62 M Ft
4 szoba
78 m2
Eladó sorház
Eladó sorház

Baja

72 M Ft
4 + 1 szoba
120 m2
Eladó családi ház
Eladó családi ház

Baja

49.999 M Ft
4 szoba
152 m2
Eladó téglalakás
Eladó téglalakás

Kecskemét

53 M Ft
3 szoba
65 m2
Eladó téglalakás
Eladó téglalakás

Kecskemét

39 M Ft
2 szoba
57 m2
Eladó családi ház
Eladó családi ház

Hercegszántó

29.9 M Ft
4 szoba
130 m2
Eladó családi ház
Eladó családi ház

Kecskemét

67 M Ft
4 szoba
75 m2
Eladó családi ház
Eladó családi ház

Kecskemét

69.99 M Ft
4 szoba
132 m2
Eladó családi ház
Eladó családi ház

Soltszentimre

18.5 M Ft
2 szoba
75 m2
Eladó téglalakás
Eladó téglalakás

Kecskemét

74.9 M Ft
3 szoba
89 m2
Eladó sorház
Eladó sorház

Kecskemét

109.9 M Ft
4 szoba
109 m2
Eladó téglalakás
Eladó téglalakás

Lajosmizse

47.5 M Ft
2 szoba
59 m2
Eladó mezogazdasagi ingatlan
Eladó mezogazdasagi ingatlan

Szentkirály

190 M Ft
50370 m²
255 m2
Eladó téglalakás
Eladó téglalakás

Kecskemét

43.9 M Ft
2 szoba
53 m2
Eladó sorház
Eladó sorház

Baja

98.6 M Ft
4 + 1 szoba
145 m2
Eladó üzlethelyiség
Eladó üzlethelyiség

Kecskemét

56 M Ft
2 szoba
54 m2
Eladó téglalakás
Eladó téglalakás

Tiszakécske

29.3 M Ft
3 szoba
92 m2
Eladó családi ház
Eladó családi ház

Baja

78.99 M Ft
5 szoba
120 m2

Falusi CSOK ingatlanok

Eladó családi ház
Eladó családi ház

Szederkény

107.9 M Ft
6 szoba
224 m2
Eladó családi ház
Eladó családi ház

Somogyhárságy

188.65 M Ft
5 szoba
250 m2
Eladó családi ház
Eladó családi ház

Kenyeri

21.8 M Ft
2 szoba
75 m2
Eladó sorház
Eladó sorház

Szob

16 M Ft
2 szoba
45 m2
Eladó családi ház
Eladó családi ház

Vaskút

76 M Ft
3 szoba
120 m2
Eladó családi ház
Eladó családi ház

Balatonfenyves

179.9 M Ft
5 szoba
210 m2
Eladó családi ház
Eladó családi ház

Szabadbattyán

163.99 M Ft
5 szoba
255 m2
Eladó családi ház
Eladó családi ház

Parád

15 M Ft
3 szoba
90 m2