Metrodom

Eladó sorház
Hajdúböszörmény

+ 17 kép 1/20
69 000 000 Ft69 M Ft 657 143 Ft/m2
5 szoba
105 m2
építés éve:2007

Részletes adatok

Állapot: Átlagos
Telekméret: 282 m2
Fűtés: Gázkazán
Energetikai besorolás: Nem adta meg a hirdető

Az OTP Bank lakáshitel ajánlataFizetett hirdetés

+36 70 787
Sas-Krizsán Dániel
Debrecen Kürtös utca

Érdekel az OTP Bank kedvezményes lakáshitel ajánlata? *

* A kérdésre „Igen” válasz bejelölése esetén, az „Üzenet küldése” gombra kattintva kijelentem, hogy az OTP Bank Nyrt. Adatkezelési tájékoztatójának tartalmát megismertem és tudomásul vettem.

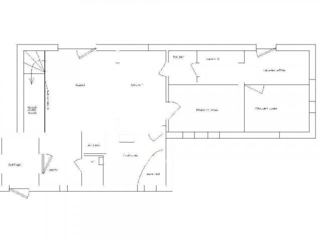
Eladó sorház leírása

Eladó tágas, kétszintes sorházi ingatlan Hajdúböszörményben!

Hajdúböszörmény csendes, jól megközelíthető részén eladó egy 2007-ben épült, 105 m2 hasznos alapterületű, összkomfortos sorházi lakás, amely a négy lakásból álló épület utcafronti részét foglalja el.

A téglából épült, hőszigetelt ingatlan fűtéséről és meleg vízellátásáról gázkazán gondoskodik. A telek mérete 282 m2, amely saját, külön bejáratú kertet is biztosít. Az épületbe két irányból lehet belépni: az egyik bejárat a kert felől, a másik a közös használatú szervizút felől közelíthető meg.

Ideális nagycsaládosoknak!
A ház öt hálószobával és egy tágas nappali-konyha térrel rendelkezik, így biztosítva a kényelmes, családias légkört, miközben mindenkinek megmarad a saját élettere. A praktikumot növeli a szintenként elhelyezkedő WC, valamint a nagy fürdőszoba, amely sarokkáddal és különálló zuhanyzóval is felszerelt. Az emeletre vezető lépcső egy tolóajtóval teljesen elzárható.

Az emeleti 9 m2-es terasz kiváló lehetőséget nyújt a pihenésre, ahonnan szép kilátás nyílik a környékre. Az egyik emeleti szobából nyíló 30 m2-es tetőtéri tároló további praktikus tárolási lehetőséget biztosít.

A belső kialakítás rugalmasan alakítható, így az ingatlan akár két generációs otthonná is átalakítható minimális ráfordítással.

Kiváló elhelyezkedés:
A ház nyugodt környezetben, mégis a városközponttól csupán 4 perc autóútra található. Iskola, óvoda és bolt pár perc sétára elérhető. Parkolásra zárt udvarban és az utcán is van lehetőség.

Ár: 66,5 millió Ft

További információért és megtekintésért keressen bizalommal!

Referenciaszám: M300570

Hirdetés feltöltve: 2025. 12. 16. Utoljára módosítva: 2025. 12. 25.

Az ingatlan elhelyezkedése

Cím: Hajdúböszörmény

Eladó ingatlanok a környékről

Eladó sorház
Eladó sorház

Hajdúnánás

52.6 M Ft
4 szoba
87 m2
Eladó ipari ingatlan
Eladó ipari ingatlan

Hajdúnánás

119.9 M Ft
3842 m²
1258 m2
Eladó családi ház
Eladó családi ház

Mikepércs

29.9 M Ft
2 szoba
50 m2
Eladó sorház
Eladó sorház

Debrecen

149.9 M Ft
5 szoba
170 m2
Eladó sorház
Eladó sorház

Debrecen

127.9 M Ft
2 + 1 szoba
95 m2
Eladó téglalakás
Eladó téglalakás

Hajdúszoboszló

51.9 M Ft
1 + 1 szoba
40 m2
Eladó sorház
Eladó sorház

Debrecen

127.9 M Ft
2 + 1 szoba
95 m2
Eladó sorház
Eladó sorház

Debrecen, Vénkert, Botond

134.9 M Ft
5 szoba
162 m2
Eladó sorház
Eladó sorház

Hajdúsámson

65 M Ft
4 szoba
69 m2
Eladó sorház
Eladó sorház

Debrecen

165 M Ft
5 szoba
148 m2
Eladó panellakás
Eladó panellakás

Debrecen

64.99 M Ft
2 szoba
57 m2
Eladó családi ház
Eladó családi ház

Berekböszörmény

39.9 M Ft
2 szoba
69 m2
Eladó sorház
Eladó sorház

Debrecen

127.9 M Ft
4 szoba
95 m2
Eladó sorház
Eladó sorház

Hajdúböszörmény

79.9 M Ft
4 szoba
78 m2
Eladó családi ház
Eladó családi ház

Nyíradony

45 M Ft
3 szoba
96 m2
Eladó téglalakás
Eladó téglalakás

Debrecen

75 M Ft
3 szoba
59 m2
Eladó sorház
Eladó sorház

Hajdúnánás

46.2 M Ft
3 szoba
77 m2
Eladó családi ház
Eladó családi ház

Nagyhegyes

47.9 M Ft
2 szoba
72 m2
Eladó sorház
Eladó sorház

Debrecen

85 M Ft
4 + 1 szoba
98 m2
Eladó sorház
Eladó sorház

Debrecen

133 M Ft
3 + 1 szoba
110 m2
Eladó sorház
Eladó sorház

Hajdúböszörmény

144.7 M Ft
5 szoba
207 m2
Eladó sorház
Eladó sorház

Hajdúböszörmény

89.9 M Ft
3 szoba
88 m2
Eladó panellakás
Eladó panellakás

Debrecen

58.9 M Ft
3 szoba
68 m2
Eladó sorház
Eladó sorház

Hajdúböszörmény

89.9 M Ft
3 szoba
89 m2

Falusi CSOK ingatlanok

Eladó családi ház
Eladó családi ház

Somlóvásárhely

39.8 M Ft
1 szoba
78 m2
Eladó családi ház
Eladó családi ház

Mezőzombor

19.99 M Ft
3 szoba
91 m2
Eladó családi ház
Eladó családi ház

Bakonyszentkirály

99.99 M Ft
5 szoba
126 m2
Eladó családi ház
Eladó családi ház

Magyarszombatfa

80 M Ft
3 szoba
90 m2
Eladó családi ház
Eladó családi ház

Fajsz

25 M Ft
3 szoba
95 m2
Eladó ikerház
Eladó ikerház

Enese

83.9 M Ft
4 szoba
90 m2
Eladó ikerház
Eladó ikerház

Seregélyes

39.9 M Ft
4 szoba
150 m2
Eladó családi ház
Eladó családi ház

Nyáregyháza

63.9 M Ft
1 + 1 szoba
79 m2