City Pearl

Eladó sorház
Gyula

+ 17 kép 1/20
92 000 000 Ft92 M Ft 730 159 Ft/m2
2 + 3 szoba
126 m2
építés éve:1980

Részletes adatok

Állapot: Felújított
Telekméret: 171 m2
Fűtés: Gázkazán
Energetikai besorolás: Nem adta meg a hirdető

Az OTP Bank lakáshitel ajánlataFizetett hirdetés

+36 30 999
Orova Zsuzsanna
Otp Ingatlanpont Gyula

Érdekel az OTP Bank kedvezményes lakáshitel ajánlata? *

* A kérdésre „Igen” válasz bejelölése esetén, az „Üzenet küldése” gombra kattintva kijelentem, hogy az OTP Bank Nyrt. Adatkezelési tájékoztatójának tartalmát megismertem és tudomásul vettem.

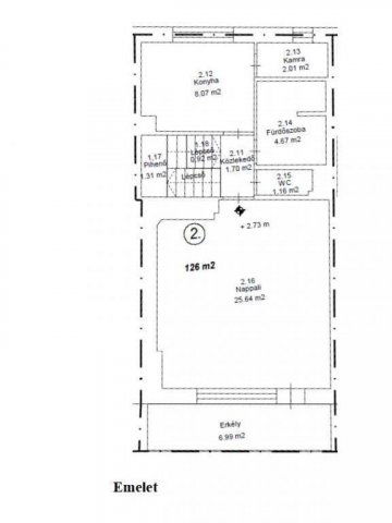
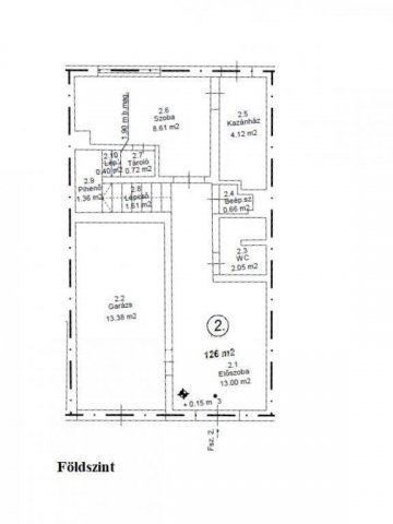
Eladó sorház leírása

Gyulán, a Vár és a Várfürdő közvetlen közelében kínálok eladásra egy 126 nm-es téglából épült, háromszintes kiváló állapotú sorházat. Az ingatlan földszintjén elektromosan nyitható, zárt garázs, egy szoba, előszoba és egy WC található. Az első emeleten tágas, 25 nm-es nappali kapott helyet, amelyhez kényelmes terasz kapcsolódik. Itt található még a konyha, valamint külön fürdőszoba és WC is. A tetőtérben három hálószoba (két félszoba és egy nagyobb szoba), valamint fürdőszoba WC-vel szolgálja a kényelmet. A ház kívülről és a tető is hőszigetelt, emellett 2,5 kW-os napelemrendszer gondoskodik az energiatakarékosságról. A fűtésről többféle megoldás gondoskodik: gázkazán, vegyes tüzelésű kazán, valamint két hűtő-fűtő klíma. A modern kényelmet növeli a minden szinten kiépített központi porszívórendszer, az ablakok szúnyoghálóval ellátott és elektromos redőnnyel felszereltek. Ingatlanhoz tartozik igény szerint leválasztható közös udvar, amit egy fedett teraszról élvezhetünk. Az ház teljes bútorzattal és gépesített konyhával együtt eladó, így az új tulajdonos azonnal birtokba veheti. Igény esetén hitelügyintéző kollégánk tájékoztatja Önt a jelenleg elérhető legkedvezőbb feltételekről.
Érd: Orova Zsuzsanna 30-9991611

Referencia szám: M311586

Hirdetés feltöltve: 2025. 10. 02. Utoljára módosítva: 2025. 12. 30.

Az ingatlan elhelyezkedése

Cím: Gyula

Eladó ingatlanok a környékről

Eladó sorház
Eladó sorház

Gyula

77.9 M Ft
4 szoba
124 m2
Eladó sorház
Eladó sorház

Gyula

79.99 M Ft
4 szoba
110 m2
Eladó sorház
Eladó sorház

Békéscsaba

85.9 M Ft
4 szoba
137 m2
Eladó sorház
Eladó sorház

Orosháza

42 M Ft
4 szoba
115 m2
Eladó téglalakás
Eladó téglalakás

Békéscsaba

44.9 M Ft
3 szoba
95 m2
Eladó sorház
Eladó sorház

Gyula

77.9 M Ft
4 szoba
124 m2
Eladó sorház
Eladó sorház

Gyula

89 M Ft
4 + 1 szoba
135 m2
Eladó sorház
Eladó sorház

Sarkad

9 M Ft
2 szoba
60 m2
Eladó sorház
Eladó sorház

Gyula, Kossuth Lajos tér

149.9 M Ft
0 + 1 szoba
190 m2
Eladó sorház
Eladó sorház

Gyula

77.9 M Ft
4 szoba
124 m2
Eladó sorház
Eladó sorház

Gyula

79.99 M Ft
3 szoba
110 m2
Eladó sorház
Eladó sorház

Gyula

59 M Ft
3 szoba
82 m2
Eladó sorház
Eladó sorház

Békéscsaba

71.9 M Ft
3 szoba
85 m2
Eladó sorház
Eladó sorház

Gyula

54 M Ft
3 + 1 szoba
113 m2
Eladó sorház
Eladó sorház

Gyula

77.9 M Ft
4 szoba
124 m2
Eladó családi ház
Eladó családi ház

Gyula, Belváros

46.8 M Ft
2 szoba
78 m2
Eladó sorház
Eladó sorház

Gyula

77.9 M Ft
4 szoba
124 m2
Eladó sorház
Eladó sorház

Békéscsaba

59.9 M Ft
5 szoba
140 m2
Eladó sorház
Eladó sorház

Gyula

75 M Ft
4 szoba
95 m2
Eladó sorház
Eladó sorház

Gyula

54 M Ft
3 + 1 szoba
113 m2
Eladó sorház
Eladó sorház

Gyula

79.99 M Ft
3 szoba
110 m2
Eladó sorház
Eladó sorház

Gyula

77.9 M Ft
4 szoba
124 m2
Eladó sorház
Eladó sorház

Gyula

54 M Ft
5 szoba
115 m2
Eladó sorház
Eladó sorház

Gyula, Kossuth Lajos tér

149.9 M Ft
0 + 1 szoba
190 m2

Falusi CSOK ingatlanok

Eladó családi ház
Eladó családi ház

Palkonya

137 M Ft
6 szoba
160 m2
Eladó családi ház
Eladó családi ház

Zengővárkony

30.999 M Ft
3 szoba
87 m2
Eladó családi ház
Eladó családi ház

Sellye

54.99 M Ft
4 szoba
99 m2
Eladó családi ház
Eladó családi ház

Tarján

31.5 M Ft
3 szoba
120 m2
Eladó családi ház
Eladó családi ház

Kislőd

53.2 M Ft
3 szoba
86 m2
Eladó családi ház
Eladó családi ház

Úrkút

94.9 M Ft
4 szoba
186 m2
Eladó családi ház
Eladó családi ház

Somogygeszti

10.9 M Ft
2 szoba
115 m2
Eladó családi ház
Eladó családi ház

Kisdér

143.8 M Ft
4 szoba
205 m2