Avico Greentop

Eladó sorház
Debrecen

+ 17 kép 1/20
156 308 500 Ft156.309 M Ft 919 462 Ft/m2
3 szoba
170 m²
építés éve:2022

Részletes adatok

Telekméret: 187 m2
Fűtés: Geotermikus
Energetikai besorolás: Nem adta meg a hirdető

Az OTP Bank lakáshitel ajánlataFizetett hirdetés

+36 70 637
Nagy Enikő Judit
referens

Érdekel az OTP Bank kedvezményes lakáshitel ajánlata? *

* A kérdésre „Igen” válasz bejelölése esetén, az „Üzenet küldése” gombra kattintva kijelentem, hogy az OTP Bank Nyrt. Adatkezelési tájékoztatójának tartalmát megismertem és tudomásul vettem.

Eladó sorház leírása

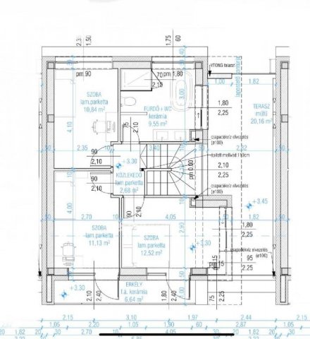
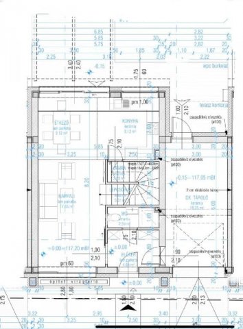
Debrecen, Nyulas városrészen új építésű 170 m2- es, magas műszaki tartalmú Luxus sorház eladó!

A 6 egységből álló sorház elhelyezkedését tekintve a város egyik legjobb, és legg értékállóbb környékén helyezkedik el.
Modern építési stílus és magas műszaki tartalom révén rendkívül értékálló otthont biztosít új tulajdonosa számára. Kiváló választás családosok és fiatalok számára egyaránt. A ház tervezésekor fontos szempont volt a világos terek , és fenntartható kényelmes családi légkör megteremtése.
Várható átadás 2023 év vége

Az ingat főbb paraméterei a következőek:
- 98 m2 lakótér + 18,4 m2 garázs + 55 m2 terasz / erkély
- 2 szintes , nappali + 3 szoba
- POROTHERM 30 N+F falazat , EPS hőszigeteléssel
- 3 rétegű, műanyag antracit színű külső nyílászárók
- geotermikus levegő- víz hőszivattyús fűtés/ hűtés rendszer
- 5 KW napelem rendszer ( opcionálisan bővíthető )

További műszaki leírást, személyes találkozó keretében biztosítani tudunk érdeklődőink számára!!

Bővebb információért hívjon bizalommal, akár hétvégén is. Megtekintésre telefonos egyeztetés alapján van lehetőség. Kedvezményes kamatozású lakásvásárlási és felújítási hitelek az OTP hátterével irodánkban.
Érd.: OTP Ingatlanpont Debrecen +36-70-708-2396

Referencia szám: M214739

Hirdetés feltöltve: 2026. 04. 01. Utoljára módosítva: 2026. 04. 03.

3 szobás sorházak ára Debrecenben

Ebből az összehasonlításból megtudhatod, hogyan viszonyul a lakás ára a környékbeli sorházak átlagos árához. Ez nem azt jelenti, hogy ennyivel olcsóbb vagy drágább, mint amennyit a lakás ér, hanem hogy ennyivel tér el a környékbeli átlagtól.

Ennek a m² ára
Debrecen m² ár
919 e Ft
1178 e Ft 22%
Ennek az ára
Debrecen átlagár
156.309 M Ft m Ft
118.7 m Ft -32%

Az ingatlan elhelyezkedése

Cím: Debrecen

Eladó sorházak a környékről

Debrecen, Kerekestelep, Mikepercsi utca 7/a
Eladó sorház

Debrecen

260 M Ft
9 szoba
455 m²
Hajdúszoboszló
Eladó sorház

Hajdúszoboszló

105 M Ft
1 szoba
123 m²
Debrecen
Eladó sorház

Debrecen

199 M Ft
5 szoba
207 m²
Debrecen
Eladó sorház

Debrecen

124.99 M Ft
4 szoba
119 m²
Debrecen
Eladó sorház

Debrecen

85 M Ft
4 + 1 szoba
98 m²
Debrecen
Eladó sorház

Debrecen

127.9 M Ft
2 + 1 szoba
95 m²
Hajdúsámson
Eladó sorház

Hajdúsámson

65 M Ft
4 szoba
69 m²
Mikepércs, Debreceni utca
Eladó sorház

Mikepércs

700 M Ft
1 szoba
1150 m²
Debrecen
Eladó sorház

Debrecen

85 M Ft
5 szoba
98 m²
Debrecen
Eladó sorház

Debrecen

150 M Ft
4 szoba
122 m²
Debrecen
Eladó sorház

Debrecen

169 M Ft
4 szoba
168 m²
Hajdúszoboszló
Eladó sorház

Hajdúszoboszló

134.99 M Ft
1 szoba
147 m²
Debrecen
Eladó sorház

Debrecen

133 M Ft
3 + 1 szoba
110 m²
Debrecen, Hatvan utcai kert, Sándor köz
Eladó sorház

Debrecen

129.9 M Ft
4 szoba
117 m²
Debrecen
Eladó sorház

Debrecen

127.9 M Ft
2 + 1 szoba
95 m²
Hajdúszoboszló
Eladó sorház

Hajdúszoboszló

105 M Ft
1 szoba
123 m²
Hajdúszoboszló
Eladó sorház

Hajdúszoboszló

134.99 M Ft
1 szoba
147 m²
Debrecen
Eladó sorház

Debrecen

85 M Ft
4 + 1 szoba
98 m²
Debrecen, Kerekestelep, Mikepercsi utca 7/a
Eladó sorház

Debrecen

260 M Ft
9 szoba
455 m²
Debrecen
Eladó sorház

Debrecen

124.99 M Ft
4 szoba
119 m²
Debrecen
Eladó sorház

Debrecen

149.9 M Ft
4 szoba
125 m²
Debrecen
Eladó sorház

Debrecen

205 M Ft
4 szoba
130 m²
Debrecen
Eladó sorház

Debrecen

166.95 M Ft
5 szoba
180 m²
Debrecen
Eladó sorház

Debrecen

127.9 M Ft
2 + 1 szoba
95 m²

Falusi CSOK ingatlanok

Cserépfalu
Eladó családi ház

Cserépfalu

58 M Ft
6 szoba
184 m²
Tápióbicske
Eladó ikerház

Tápióbicske

93.5 M Ft
7 szoba
136 m²
Tápióság
Eladó családi ház

Tápióság

59.9 M Ft
4 szoba
99 m²
Gyöngyössolymos
Eladó családi ház

Gyöngyössolymos

57.99 M Ft
4 szoba
160 m²
Balatonszepezd
Eladó családi ház

Balatonszepezd

299 M Ft
5 szoba
220 m²
Verseg
Eladó családi ház

Verseg

38 M Ft
3 szoba
83 m²
Letenye
Eladó családi ház

Letenye

23.8 M Ft
4 szoba
94 m²
Zalavár
Eladó családi ház

Zalavár

65 M Ft
2 + 1 szoba
100 m²