Seven Pearl

Eladó sorház
Budapest, XX. kerület

+ 16 kép 1/19
59 900 000 Ft59.9 M Ft 820 548 Ft/m2
3 szoba
73 m2
építés éve:1970

Részletes adatok

Telekméret: 1164 m2
Fűtés: Gázkonvektor
Energetikai besorolás: Nem adta meg a hirdető

Az OTP Bank lakáshitel ajánlataFizetett hirdetés

+36 70 941
Terjék Nikolett Erzsébet
OTP Ingatlanpont Dunaharaszti

Érdekel az OTP Bank kedvezményes lakáshitel ajánlata? *

* A kérdésre „Igen” válasz bejelölése esetén, az „Üzenet küldése” gombra kattintva kijelentem, hogy az OTP Bank Nyrt. Adatkezelési tájékoztatójának tartalmát megismertem és tudomásul vettem.

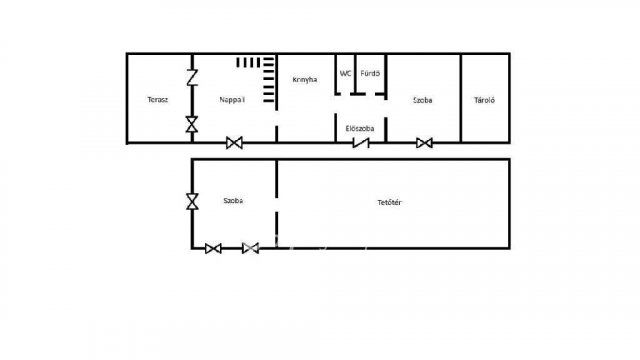
Eladó sorház leírása

Pesterzsébet Centrum. Erzsébetfalván eladó egy családi ház nappali plusz 2 háló, Terasz 20nm. Belső kertre néz. Saját kert használat 150 nm, gépkocsi beálló .
Részben felújított. Lehetőség van a további bővítésre a tetőtérből még egy szoba kialakítható. Az ingatlan osztatlan közös, ügyvédi megosztással.
Fűtés elektromos, melegvizet elektromos bojler biztosítja. A közelben iskola, óvoda, bevásárlási lehetőség, piac, orvos. Jó közlekedés.
Kihagyhatatlan lehetőség. Ajánlom családoknak, befektetőknek. Várom megtisztelő hívását !

Az OTP Ingatlanpont teljes körű ügyintézéssel áll az eladók és a vevők rendelkezésére! A kínálatunkból választott ingatlan finanszírozásához kedvezményes hitelkonstrukciókat kínálunk. Az adásvételi szerződés megkötéséhez igény szerint megbízható ügyvédi közreműködést biztosítunk, és segítséget nyújtunk az adásvételhez kapcsolódó ügyek intézéséhez.

Hirdetés feltöltve: 2025. 11. 02. Utoljára módosítva: 2025. 11. 24.

3 szobás sorházak ára Budapesten

Ebből az összehasonlításból megtudhatod, hogyan viszonyul a lakás ára a környékbeli sorházak átlagos árához. Ez nem azt jelenti, hogy ennyivel olcsóbb vagy drágább, mint amennyit a lakás ér, hanem hogy ennyivel tér el a környékbeli átlagtól.

Ennek a m² ára
XX. kerület m² ár
Budapest m² ár
821 e Ft
1060 e Ft 23%
1024 e Ft 20%
Ennek az ára
XX. kerület átlagár
Budapest átlagár
59.9 M Ft m Ft
71.7 m Ft 16%
77 m Ft 22%

Az ingatlan elhelyezkedése

Cím: Budapest, XX. kerület

Eladó ingatlanok a környékről

Eladó téglalakás
Eladó téglalakás

XIV. kerület, Herminamező, Nagybecskerek utca

35.6 M Ft
1 szoba
26 m2
Eladó téglalakás
Eladó téglalakás

XX. kerület

52.9 M Ft
1 + 1 szoba
43 m2
Eladó sorház
Eladó sorház

XX. kerület, Gubacsipuszta

71.5 M Ft
5 szoba
92 m2
Eladó sorház
Eladó sorház

XX. kerület, Gubacsipuszta

72 M Ft
3 szoba
58 m2
Eladó sorház
Eladó sorház

XX. kerület

59.9 M Ft
3 szoba
73 m2
Eladó téglalakás
Eladó téglalakás

XX. kerület

69.5 M Ft
2 szoba
56 m2
Eladó családi ház
Eladó családi ház

XVIII. kerület

148 M Ft
6 szoba
196 m2
Eladó sorház
Eladó sorház

XX. kerület

59.9 M Ft
3 szoba
73 m2
Eladó téglalakás
Eladó téglalakás

XXI. kerület

47.6 M Ft
3 szoba
36 m2
Eladó ikerház
Eladó ikerház

XVIII. kerület, Kossuth Ferenc telep, Dózsa György utca

144.9 M Ft
4 szoba
132 m2
Eladó sorház
Eladó sorház

XX. kerület

59.9 M Ft
3 szoba
73 m2
Eladó sorház
Eladó sorház

XX. kerület

56.3 M Ft
3 szoba
66 m2
Eladó sorház
Eladó sorház

XX. kerület

71.5 M Ft
5 szoba
92 m2
Eladó sorház
Eladó sorház

XX. kerület, Pirok Gyula utca utca

54.6 M Ft
1 + 2 szoba
44 m2
Eladó sorház
Eladó sorház

XX. kerület

71.5 M Ft
5 szoba
92 m2
Eladó sorház
Eladó sorház

XX. kerület

56.3 M Ft
3 szoba
66 m2
Eladó ikerház
Eladó ikerház

XVIII. kerület, Kossuth Ferenc telep, Dózsa György utca

159.9 M Ft
4 szoba
145 m2
Eladó téglalakás
Eladó téglalakás

XI. kerület, Albertfalva, Fehérvári út

84.9 M Ft
2 szoba
52 m2
Eladó ikerház
Eladó ikerház

XVIII. kerület

155 M Ft
4 szoba
109 m2
Eladó téglalakás
Eladó téglalakás

VII. kerület

104.9 M Ft
3 szoba
56 m2
Eladó sorház
Eladó sorház

XX. kerület, Erzsébetfalva, Thököly utca

56.3 M Ft
3 szoba
66 m2
Eladó téglalakás
Eladó téglalakás

XX. kerület

65.9 M Ft
2 szoba
56 m2
Eladó panellakás
Eladó panellakás

IV. kerület

72 M Ft
2 szoba
54 m2
Eladó téglalakás
Eladó téglalakás

VI. kerület

129.9 M Ft
4 szoba
87 m2

Falusi CSOK ingatlanok

Eladó családi ház
Eladó családi ház

Pécsely, Szőlő Dülő

499 M Ft
4 + 2 szoba
183 m2
Eladó családi ház
Eladó családi ház

Sárisáp, Orgona utca

60 M Ft
4 szoba
145 m2
Eladó családi ház
Eladó családi ház

Darnózseli

79.9 M Ft
4 szoba
104 m2
Eladó családi ház
Eladó családi ház

Ceglédbercel

64.9 M Ft
3 szoba
87 m2
Eladó családi ház
Eladó családi ház

Nyírtura

74.9 M Ft
3 szoba
120 m2
Eladó családi ház
Eladó családi ház

Vácegres

279.9 M Ft
6 szoba
194 m2
Eladó családi ház
Eladó családi ház

Elek, Tavasz utca 7

12.355 M Ft
1 + 1 szoba
207 m2
Eladó családi ház
Eladó családi ház

Újszilvás

20.9 M Ft
3 szoba
66 m2