River Life

Eladó panellakás
Szeged, 4. emelet

+ 17 kép 1/20
58 900 000 Ft58.9 M Ft 818 056 Ft/m2
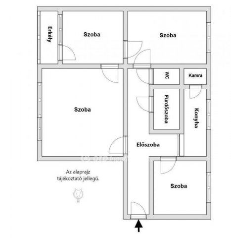
2 + 2 szoba
72 m2
4. emelet
építés éve:1970

Részletes adatok

Fűtés: Távfűtés
Energetikai besorolás: Nem adta meg a hirdető

Az OTP Bank lakáshitel ajánlataFizetett hirdetés

+36 70 942
Kalmár Edit Virág
Szeged Széchenyi tér 6 - OTP Ingatlanpont Iroda

Érdekel az OTP Bank kedvezményes lakáshitel ajánlata? *

* A kérdésre „Igen” válasz bejelölése esetén, az „Üzenet küldése” gombra kattintva kijelentem, hogy az OTP Bank Nyrt. Adatkezelési tájékoztatójának tartalmát megismertem és tudomásul vettem.

Eladó panellakás leírása

****Tágas, erkélyes családi otthon Szeged-Tarjánban ! Panelprogramos házban, kiváló elhelyezkedéssel!****

Csongrád-Csanád vármegye, Szeged egyik legkedveltebb városrészében, Tarjánban kínálom megvételre ezt a 68+4 m2-es, kihelyezett előteres, negyedik emeleti panellakást, amely a panelprogram keretében korszerűsített, hőszigetelt épületben található.
A lakás elosztása ideális: 2 teljes értékű szoba és 2 félszoba gondoskodik a kényelmes élettérről, míg a napfényes helyiségek és az erkély otthonos hangulatot teremtenek. Az otthon melegét és a költséghatékonyságot egyedi mérőórás távfűtés biztosítja, amely a korszerűsítésnek köszönhetően gazdaságos és komfortos megoldás.
A környék infrastruktúrája kiváló: a közelben iskola, óvoda, játszótér, fitnesz park, élelmiszer üzletláncok és gyógyszertár is megtalálható, így minden fontos szolgáltatás könnyen elérhető.
A közlekedés szempontjából is elsőrangú a lokáció, hiszen troli, busz és villamos is néhány perc sétára elérhető, így a belváros gyorsan és kényelmesen megközelíthető.
Ha egy modern, energiatakarékos, remek elosztású otthont keres, ne hagyja ki ezt a lehetőséget!
Az ingatlan kiváló lehetőség befektetésnek, valamint több fős családok számára egyaránt. Az ingatlan megvásárlásához babaváró, CSOK és kedvezményes hitel igényelhető, melynek teljeskörű ügyintézésében szakszerű segítséget nyújtunk a leendő vevők számára.

Hirdetés feltöltve: 2025. 12. 19. Utoljára módosítva: 2026. 01. 15.

4 szobás panellakások ára Szegeden

Ebből az összehasonlításból megtudhatod, hogyan viszonyul a lakás ára a környékbeli panellakások átlagos árához. Ez nem azt jelenti, hogy ennyivel olcsóbb vagy drágább, mint amennyit a lakás ér, hanem hogy ennyivel tér el a környékbeli átlagtól.

Ennek a m² ára
Szeged m² ár
818 e Ft
926 e Ft 12%
Ennek az ára
Szeged átlagár
58.9 M Ft m Ft
64.1 m Ft 8%

Az ingatlan elhelyezkedése

Cím: Szeged, 4. emelet

Eladó panellakások a környékről

Eladó panellakás
Eladó panellakás

Szeged

58.9 M Ft
4 szoba
68 m2
Eladó panellakás
Eladó panellakás

Szeged

58.9 M Ft
4 szoba
68 m2
Eladó panellakás
Eladó panellakás

Szeged

69 M Ft
3 szoba
77 m2
Eladó panellakás
Eladó panellakás

Szeged

58.8 M Ft
2 + 2 szoba
72 m2
Eladó panellakás
Eladó panellakás

Szeged

42.9 M Ft
2 szoba
47 m2
Eladó panellakás
Eladó panellakás

Szeged

69 M Ft
3 szoba
77 m2
Eladó panellakás
Eladó panellakás

Szeged

47.9 M Ft
3 szoba
60 m2
Eladó panellakás
Eladó panellakás

Szeged

58.9 M Ft
4 szoba
68 m2
Eladó panellakás
Eladó panellakás

Szeged

69 M Ft
3 szoba
77 m2
Eladó panellakás
Eladó panellakás

Szeged

42.9 M Ft
2 szoba
47 m2
Eladó panellakás
Eladó panellakás

Szeged

52.8 M Ft
2 szoba
56 m2
Eladó panellakás
Eladó panellakás

Szeged

48 M Ft
3 szoba
63 m2
Eladó panellakás
Eladó panellakás

Szeged

44.9 M Ft
2 szoba
48 m2
Eladó panellakás
Eladó panellakás

Szeged

54.9 M Ft
2 szoba
55 m2
Eladó panellakás
Eladó panellakás

Hódmezővásárhely

32.7 M Ft
2 szoba
48 m2
Eladó panellakás
Eladó panellakás

Szeged

58.9 M Ft
4 szoba
68 m2
Eladó panellakás
Eladó panellakás

Szeged

69 M Ft
3 szoba
77 m2
Eladó panellakás
Eladó panellakás

Szeged

59.9 M Ft
2 + 1 szoba
67 m2
Eladó panellakás
Eladó panellakás

Szeged

64 M Ft
4 szoba
68 m2
Eladó panellakás
Eladó panellakás

Szeged

47 M Ft
3 szoba
63 m2
Eladó panellakás
Eladó panellakás

Hódmezővásárhely, Susán, Bajcsy-Zsilinszky utca

29.9 M Ft
2 szoba
48 m2
Eladó panellakás
Eladó panellakás

Szeged

42.9 M Ft
1 + 1 szoba
48 m2
Eladó panellakás
Eladó panellakás

Szeged

52.9 M Ft
3 szoba
53 m2
Eladó panellakás
Eladó panellakás

Szeged

59.9 M Ft
2 + 1 szoba
67 m2

Falusi CSOK ingatlanok

Eladó családi ház
Eladó családi ház

Ádánd

57.9 M Ft
5 szoba
190 m2
Eladó ikerház
Eladó ikerház

Balatonkeresztúr, Bolygó utca

59.9 M Ft
4 szoba
83 m2
Eladó családi ház
Eladó családi ház

Szulok, Béke utca

31.9 M Ft
3 szoba
125 m2
Eladó családi ház
Eladó családi ház

Kölked

42 M Ft
3 szoba
100 m2
Eladó családi ház
Eladó családi ház

Vaskút

76 M Ft
3 szoba
120 m2
Eladó családi ház
Eladó családi ház

Tab

14.9 M Ft
3 szoba
110 m2
Eladó ikerház
Eladó ikerház

Seregélyes

39.9 M Ft
4 szoba
150 m2
Eladó családi ház
Eladó családi ház

Jánoshida

5.9 M Ft
2 szoba
66 m2