Eladó panellakás
Pécs, 10. emelet

+ 17 kép 1/20
54 900 000 Ft54.9 M Ft 871 429 Ft/m2
3 szoba
63 m2
10. emelet
építés éve:1977

Részletes adatok

Fűtés: Távfűtés
Extrák: Lift
Energetikai besorolás: Nem adta meg a hirdető

Az OTP Bank lakáshitel ajánlataFizetett hirdetés

+36 20 938
Vincze László György
OTPIP - Pécs, Rákóczi út 19.

Érdekel az OTP Bank kedvezményes lakáshitel ajánlata? *

* A kérdésre „Igen” válasz bejelölése esetén, az „Üzenet küldése” gombra kattintva kijelentem, hogy az OTP Bank Nyrt. Adatkezelési tájékoztatójának tartalmát megismertem és tudomásul vettem.

Eladó panellakás leírása

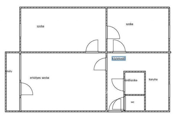
Eladó Pécs-EGYETEMVÁROS egyik legkedveltebb részén, Zója utcában egy 10 emeletes szigetelt panelépület, 10. emeletén, 63nm-es, 3 szobás erkélyes panellakás!

A lakás, korábban felújították, jelenleg is jó állapotban van. A kellemes hőérzetet az egyedi mérős távfűtés és klima berendezés biztosítja. Nyílászárók hőszigetelt műanyagra cseréltek melyek redőnnyel szereltek.
Fürdőszoba átépítve modern tusolósra. Kilátás a lakásból lenyűgöző a városra és a tévétoronyra. Társasház liftes, kívül-belül karbantartott, a tető korszerű hő- és csapadék elleni szigetelést kapott. Tökéletes választás befektetőknek, egyetemistáknak, és családoknak!

A LAKÁS KÖZEL VAN A PÉCSI TUDOMÁNYEGYETEM KARAIHOZ! Közelben buszmegálló, élelmiszer üzletek, gyógyszertár, étterem.. Gyalogosan kényelmes sétával könnyen elérhető a belváros.
Jelenleg megbízható bérlők laknak benne, szívesen maradnak, ha albérlet kiadására vásárólja meg az ingatlant! Befektetésnek egy remek lehetőség, nem kell bajlódnia a megbízható bérlő keresésével sem!
Otthon Start fix 3 %. hitel! OTP Bankhitelhez kapcsolódóan az OTP Ingatlanpont irodánk teljes körű tájékoztatást és ügyintézést vállal. M312509

54900000 Ft

Referencia szám: M312509

Hirdetés feltöltve: 2025. 10. 02. Utoljára módosítva: 2025. 10. 02.

3 szobás panellakások ára Pécsett

Ebből az összehasonlításból megtudhatod, hogyan viszonyul a lakás ára a környékbeli panellakások átlagos árához. Ez nem azt jelenti, hogy ennyivel olcsóbb vagy drágább, mint amennyit a lakás ér, hanem hogy ennyivel tér el a környékbeli átlagtól.

Ennek a m² ára
Pécs m² ár
871 e Ft
812 e Ft -7%
Ennek az ára
Pécs átlagár
54.9 M Ft m Ft
50.1 m Ft -10%

Az ingatlan elhelyezkedése

Cím: Pécs, 10. emelet

Eladó panellakások a környékről

Eladó panellakás
Eladó panellakás

Pécs, Málom, Polgárszőlő utca

41.99 M Ft
4 szoba
59 m2
Eladó panellakás
Eladó panellakás

Pécs

49.9 M Ft
3 szoba
54 m2
Eladó panellakás
Eladó panellakás

Pécs

44.9 M Ft
2 szoba
50 m2
Eladó panellakás
Eladó panellakás

Pécs

49.9 M Ft
3 szoba
54 m2
Eladó panellakás
Eladó panellakás

Pécs

57.9 M Ft
4 szoba
68 m2
Eladó panellakás
Eladó panellakás

Pécs, Megyer, Éva utca 3

49.9 M Ft
3 szoba
63 m2
Eladó panellakás
Eladó panellakás

Pécs

47.9 M Ft
3 szoba
54 m2
Eladó panellakás
Eladó panellakás

Pécs

49.9 M Ft
3 szoba
54 m2
Eladó panellakás
Eladó panellakás

Komló, Hegyhát utca

14.2 M Ft
2 szoba
40 m2
Eladó panellakás
Eladó panellakás

Pécs, Megyer, Fülep Lajos utca

57.9 M Ft
4 szoba
68 m2
Eladó panellakás
Eladó panellakás

Pécs

44.9 M Ft
2 szoba
50 m2
Eladó panellakás
Eladó panellakás

Pécs, Megyer, Nagy Imre út

41.9 M Ft
2 szoba
40 m2
Eladó panellakás
Eladó panellakás

Pécs, Uránváros, Építők útja

55.9 M Ft
2 szoba
52 m2
Eladó panellakás
Eladó panellakás

Pécs

56.9 M Ft
3 szoba
67 m2
Eladó panellakás
Eladó panellakás

Pécs

41.9 M Ft
2 szoba
40 m2
Eladó panellakás
Eladó panellakás

Pécs

56.9 M Ft
3 szoba
67 m2
Eladó panellakás
Eladó panellakás

Pécs, Megyer, Lahti utca

56.9 M Ft
3 szoba
67 m2
Eladó panellakás
Eladó panellakás

Pécs, Málom, Polgárszőlő utca

41.99 M Ft
4 szoba
59 m2
Eladó panellakás
Eladó panellakás

Pécs, Uránváros, Építők útja

55.9 M Ft
2 szoba
52 m2
Eladó panellakás
Eladó panellakás

Pécs

49.9 M Ft
3 szoba
54 m2
Eladó panellakás
Eladó panellakás

Pécs

56.9 M Ft
3 szoba
67 m2
Eladó panellakás
Eladó panellakás

Pécs

41.9 M Ft
2 szoba
40 m2
Eladó panellakás
Eladó panellakás

Pécs

41.9 M Ft
2 szoba
40 m2
Eladó panellakás
Eladó panellakás

Pécs

57.9 M Ft
4 szoba
68 m2

Falusi CSOK ingatlanok

Eladó családi ház
Eladó családi ház

Csanytelek

8.8 M Ft
2 szoba
81 m2
Eladó téglalakás
Eladó téglalakás

Tokaj

189.9 M Ft
3 szoba
90 m2
Eladó családi ház
Eladó családi ház

Csővár

24.99 M Ft
4 szoba
90 m2
Eladó családi ház
Eladó családi ház

Nagyér

4.6 M Ft
3 szoba
96 m2
Eladó családi ház
Eladó családi ház

Devecser

18.9 M Ft
2 + 1 szoba
57 m2
Eladó családi ház
Eladó családi ház

Törtel

20 M Ft
3 szoba
76 m2
Eladó téglalakás
Eladó téglalakás

Anarcs

29 M Ft
3 szoba
75 m2
Eladó családi ház
Eladó családi ház

Szajol

22.9 M Ft
2 szoba
70 m2