Seven Pearl

Eladó panellakás
Nyíregyháza, 4. emelet

+ 17 kép 1/20
42 990 000 Ft42.99 M Ft 842 941 Ft/m2
2 szoba
51 m²
4. emelet
építés éve:1985

Részletes adatok

Állapot: Felújított
Fűtés: Távfűtés
Emelet: 4. emelet
Extrák: Lift
Energetikai besorolás: Nem adta meg a hirdető

Az OTP Bank lakáshitel ajánlataFizetett hirdetés

+36 20 468
Kissné Orosz Ildikó Krisztina
OTPIP Nyíregyháza Hunyadi u.

Érdekel az OTP Bank kedvezményes lakáshitel ajánlata? *

* A kérdésre „Igen” válasz bejelölése esetén, az „Üzenet küldése” gombra kattintva kijelentem, hogy az OTP Bank Nyrt. Adatkezelési tájékoztatójának tartalmát megismertem és tudomásul vettem.

Eladó panellakás leírása

Nyíregyháza, Toldi utcában teljes körűen felújított, teljes berendezéssel azonnal költözhető lakás eladó!
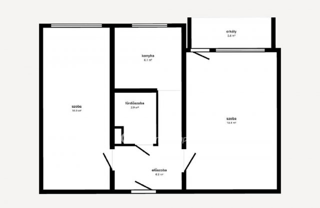
Nyíregyházán, a Toldi utcában, az állomás és a belváros közelében kínálok megvételre egy 51 nm-es, 4. emeleti, 2 szobás, erkélyes lakást, 10 emeletes liftes társasházban.
Az ingatlan kiváló állapotú, teljes körűen felújított. A felújítás során betonig visszabontották, minden vezeték cserélve lett. Hőszigetelt műanyag nyílászárók kerültek beépítésre redőnnyel és szúnyoghálóval, biztonsági bejárati ajtóval ellátott. A lakás hűtő-fűtő klímával felszerelt, fűtése mért távhő.
Helyiségek:
előszoba,
konyha,
2 külön nyíló szoba,
zuhanyzós fürdőszoba WC-vel,
zárt folyosós,
erkély parkra néző kilátással.
A lakás teljes berendezéssel együtt eladó, a képeken látható bútorok és gépek a vételár részét képezik!
A társasház rendezett, panelprogramban részt vett, jó lakóközösséggel rendelkezik. Parkolás a ház előtt ingyenesen megoldott.
A közelben minden megtalálható: orvosi rendelő, pékség, gyógyszertár, boltok, valamint a belváros és az állomás is könnyen elérhető.
Az ingatlan azonnal költözhető, hitel- tehermentes, ide valóban csak a bőröndöt kell hozni!
További információért és megtekintésért keressen bizalommal akár hétvégén is!
OTP Banki hátterünknek köszönhetően finanszírozási igényekben (pl. Otthon Start Hitelprogram, Babaváró, Falusi CSOK, CSOK Plusz, Lakáshitel, Személyi kölcsön stb.), illetve biztosítások tekintetében is díjmentesen, soron kívüli ügyintézéssel segítem ügyfeleim! Referenciaszám: M327466

Virtuális séta:

Hirdetés feltöltve: 2026. 04. 28. Utoljára módosítva: 2026. 04. 28.

2 szobás panellakások ára Nyíregyházán

Ebből az összehasonlításból megtudhatod, hogyan viszonyul a lakás ára a környékbeli panellakások átlagos árához. Ez nem azt jelenti, hogy ennyivel olcsóbb vagy drágább, mint amennyit a lakás ér, hanem hogy ennyivel tér el a környékbeli átlagtól.

Ennek a m² ára
Nyíregyháza m² ár
843 e Ft
831 e Ft -1%
Ennek az ára
Nyíregyháza átlagár
42.99 M Ft m Ft
40.1 m Ft -7%

Az ingatlan elhelyezkedése

Cím: Nyíregyháza, 4. emelet

Eladó panellakások a környékről

Nyíregyháza
Eladó panellakás

Nyíregyháza

34.8 M Ft
1 + 1 szoba
42 m²
Nyíregyháza
Eladó panellakás

Nyíregyháza

49 M Ft
2 + 1 szoba
63 m²
Záhony
Eladó panellakás

Záhony

14.9 M Ft
3 szoba
65 m²
Nyíregyháza
Eladó panellakás

Nyíregyháza

49 M Ft
2 + 1 szoba
63 m²
Nyíregyháza
Eladó panellakás

Nyíregyháza

54.9 M Ft
4 szoba
69 m²
Nyíregyháza
Eladó panellakás

Nyíregyháza

37.4 M Ft
1 + 1 szoba
43 m²
Nyíregyháza
Eladó panellakás

Nyíregyháza

49 M Ft
2 + 1 szoba
63 m²
Nyíregyháza, Korányi kertváros, Kalevala sétány
Eladó panellakás

Nyíregyháza

42.9 M Ft
2 + 1 szoba
58 m²
Nyíregyháza
Eladó panellakás

Nyíregyháza

51 M Ft
2 + 2 szoba
80 m²
Mátészalka
Eladó panellakás

Mátészalka

31 M Ft
1 + 1 szoba
52 m²
Nyíregyháza
Eladó panellakás

Nyíregyháza

37.4 M Ft
1 + 1 szoba
43 m²
Nyíregyháza
Eladó panellakás

Nyíregyháza

37.4 M Ft
1 + 1 szoba
43 m²
Nyíregyháza
Eladó panellakás

Nyíregyháza

37.4 M Ft
1 + 1 szoba
43 m²
Nyíregyháza
Eladó panellakás

Nyíregyháza

39.9 M Ft
2 szoba
54 m²
Nyíregyháza
Eladó panellakás

Nyíregyháza

49 M Ft
2 + 1 szoba
63 m²
Nyíregyháza
Eladó panellakás

Nyíregyháza

39.9 M Ft
2 szoba
54 m²
Nyíregyháza
Eladó panellakás

Nyíregyháza

39.9 M Ft
2 szoba
53 m²
Mátészalka
Eladó panellakás

Mátészalka

31 M Ft
1 + 1 szoba
52 m²
Nyíregyháza
Eladó panellakás

Nyíregyháza

43.5 M Ft
1 + 2 szoba
54 m²
Nyíregyháza
Eladó panellakás

Nyíregyháza

49 M Ft
2 + 1 szoba
63 m²
Nyíregyháza
Eladó panellakás

Nyíregyháza

49 M Ft
2 + 1 szoba
63 m²
Nyíregyháza
Eladó panellakás

Nyíregyháza

34.8 M Ft
1 + 1 szoba
42 m²
Nyíregyháza, Korányi kertváros, Kalevala sétány
Eladó panellakás

Nyíregyháza

42.9 M Ft
2 + 1 szoba
58 m²
Nyíregyháza
Eladó panellakás

Nyíregyháza

37.9 M Ft
3 szoba
66 m²

Falusi CSOK ingatlanok

Izsófalva
Eladó családi ház

Izsófalva

22.9 M Ft
3 szoba
105 m²
Nagyharsány
Eladó téglalakás

Nagyharsány

22.5 M Ft
3 szoba
71 m²
Hahót, Csányi László utca
Eladó családi ház

Hahót

48 M Ft
4 + 1 szoba
110 m²
Kálmánháza
Eladó családi ház

Kálmánháza

65 M Ft
3 + 1 szoba
151 m²
Kenyeri
Eladó családi ház

Kenyeri

39.9 M Ft
3 szoba
94 m²
Törtel
Eladó családi ház

Törtel

55 M Ft
3 + 1 szoba
120 m²
Csány, Központi elhelyezkedés
Eladó családi ház

Csány

48.5 M Ft
3 szoba
97 m²
Tápiószőlős
Eladó családi ház

Tápiószőlős

9.5 M Ft
2 szoba
46 m²