Astora Olive Club House

Eladó panellakás
Nyíregyháza, 9. emelet

+ 10 kép 1/13
38 000 000 Ft38 M Ft 745 098 Ft/m2
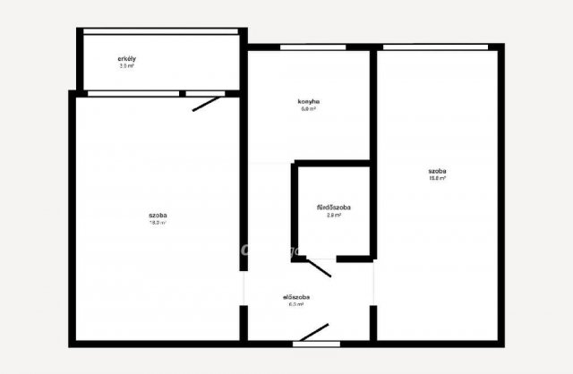
2 szoba
51 m²
9. emelet
építés éve:1980

Részletes adatok

Fűtés: Távfűtés
Emelet: 9. emelet
Extrák: Lift
Energetikai besorolás: Nem adta meg a hirdető

Az OTP Bank lakáshitel ajánlataFizetett hirdetés

+36 30 181
Kiss Zoltán Bence
OTPIP Nyíregyháza Hunyadi u.

Érdekel az OTP Bank kedvezményes lakáshitel ajánlata? *

* A kérdésre „Igen” válasz bejelölése esetén, az „Üzenet küldése” gombra kattintva kijelentem, hogy az OTP Bank Nyrt. Adatkezelési tájékoztatójának tartalmát megismertem és tudomásul vettem.

Eladó panellakás leírása

Nyíregyházán, az Érkert városrészben (Toldi utcán) eladó egy igényes, korszerű állapotú, 51 nm-es, 2 szobás lakás. Az ingatlan erkélyes, amely az utcafront felől teljesen zárható.
A környék infrastruktúrája kiváló: a közelben megtalálható buszmegálló, boltok, iskola, óvoda és orvosi rendelő is.
A lakás csendes, nyugodt környezetben helyezkedik el, ideális választás lehet pároknak, kisebb családoknak vagy akár befektetésnek is.

Az ingatlan egyeztetett időpontban megtekinthető! Bővebb információért vagy megtekintésért hívjon bizalommal! (Referenciaszám: M313598) OTP Banki hátterünknek köszönhetően finanszírozási igényekben (pl. Babaváró, Falusi CSOK, CSOK Plusz, Lakáshitel, Személyi kölcsön stb.), illetve biztosítások tekintetében is díjmentesen, soron kívüli ügyintézéssel segítem ügyfeleimet!

Hirdetés feltöltve: 2026. 03. 14. Utoljára módosítva: 2026. 03. 14.

2 szobás panellakások ára Nyíregyházán

Ebből az összehasonlításból megtudhatod, hogyan viszonyul a lakás ára a környékbeli panellakások átlagos árához. Ez nem azt jelenti, hogy ennyivel olcsóbb vagy drágább, mint amennyit a lakás ér, hanem hogy ennyivel tér el a környékbeli átlagtól.

Ennek a m² ára
Nyíregyháza m² ár
745 e Ft
795 e Ft 6%
Ennek az ára
Nyíregyháza átlagár
38 M Ft m Ft
42.8 m Ft 11%

Az ingatlan elhelyezkedése

Cím: Nyíregyháza, 9. emelet

Eladó panellakások a környékről

Nyíregyháza
Eladó panellakás

Nyíregyháza

49 M Ft
2 + 1 szoba
63 m²
Nyíregyháza
Eladó panellakás

Nyíregyháza

42.99 M Ft
2 szoba
51 m²
Nyíregyháza
Eladó panellakás

Nyíregyháza

35 M Ft
2 szoba
54 m²
Nyíregyháza
Eladó panellakás

Nyíregyháza

37.4 M Ft
1 + 1 szoba
43 m²
Nyíregyháza
Eladó panellakás

Nyíregyháza

54.9 M Ft
4 szoba
69 m²
Nyíregyháza
Eladó panellakás

Nyíregyháza

49 M Ft
2 + 1 szoba
63 m²
Nyíregyháza
Eladó panellakás

Nyíregyháza

42.99 M Ft
2 szoba
51 m²
Nyíregyháza
Eladó panellakás

Nyíregyháza

54.9 M Ft
4 szoba
69 m²
Nyíregyháza
Eladó panellakás

Nyíregyháza

37.9 M Ft
3 szoba
66 m²
Nyíregyháza
Eladó panellakás

Nyíregyháza

42.99 M Ft
2 szoba
51 m²
Nyíregyháza
Eladó panellakás

Nyíregyháza

42.99 M Ft
2 szoba
51 m²
Nyíregyháza
Eladó panellakás

Nyíregyháza

35 M Ft
2 szoba
54 m²
Nyíregyháza
Eladó panellakás

Nyíregyháza

49 M Ft
2 + 1 szoba
63 m²
Nyíregyháza
Eladó panellakás

Nyíregyháza

30 M Ft
2 szoba
51 m²
Nyíregyháza
Eladó panellakás

Nyíregyháza

42.99 M Ft
2 szoba
51 m²
Nyíregyháza
Eladó panellakás

Nyíregyháza

42.99 M Ft
2 szoba
51 m²
Nyíregyháza
Eladó panellakás

Nyíregyháza

42.99 M Ft
2 szoba
51 m²
Nyíregyháza
Eladó panellakás

Nyíregyháza

49 M Ft
2 + 1 szoba
63 m²
Nyíregyháza
Eladó panellakás

Nyíregyháza

49 M Ft
2 + 1 szoba
63 m²
Nyíregyháza
Eladó panellakás

Nyíregyháza

49 M Ft
2 + 1 szoba
63 m²
Nyíregyháza
Eladó panellakás

Nyíregyháza

49 M Ft
2 + 1 szoba
63 m²
Nyíregyháza
Eladó panellakás

Nyíregyháza

49 M Ft
2 + 1 szoba
63 m²
Nyíregyháza
Eladó panellakás

Nyíregyháza

49 M Ft
2 + 1 szoba
63 m²
Nyíregyháza
Eladó panellakás

Nyíregyháza

42.99 M Ft
2 szoba
51 m²

Falusi CSOK ingatlanok

Nyáregyháza
Eladó családi ház

Nyáregyháza

68.9 M Ft
3 szoba
143 m²
Bag
Eladó családi ház

Bag

16.9 M Ft
6 szoba
160 m²
Zagyvarékas
Eladó családi ház

Zagyvarékas

42.5 M Ft
3 szoba
140 m²
Szigetcsép
Eladó családi ház

Szigetcsép

110 M Ft
3 szoba
137 m²
Szentlőrinckáta
Eladó családi ház

Szentlőrinckáta

28.49 M Ft
6 szoba
204 m²
Csömend
Eladó családi ház

Csömend

29.8 M Ft
2 szoba
96 m²
Zagyvarékas
Eladó családi ház

Zagyvarékas

14.5 M Ft
3 szoba
85 m²
Újhartyán
Eladó családi ház

Újhartyán

79.9 M Ft
3 szoba
72 m²