Avico Greentop

Eladó panellakás
Miskolc, 4. emelet

+ 11 kép 1/14
25 900 000 Ft25.9 M Ft 488 679 Ft/m2
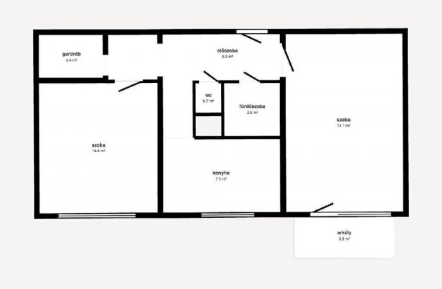
2 szoba
53 m²
4. emelet
építés éve:1977

Részletes adatok

Állapot: Átlagos
Fűtés: Távfűtés
Emelet: 4. emelet
Energetikai besorolás: Nem adta meg a hirdető

Az OTP Bank lakáshitel ajánlataFizetett hirdetés

+36 70 626
Fehér Gerő Tamás
OTP Ingatlanpont Miskolc Szemere

Érdekel az OTP Bank kedvezményes lakáshitel ajánlata? *

* A kérdésre „Igen” válasz bejelölése esetén, az „Üzenet küldése” gombra kattintva kijelentem, hogy az OTP Bank Nyrt. Adatkezelési tájékoztatójának tartalmát megismertem és tudomásul vettem.

Eladó panellakás leírása

Miskolcon, a Győri kapuban kínálunk megvételre egy 53 nm-es, 2 szobás, erkélyes lakást egy 4 emeletes panel építésű társasház 4. emeletén. Az ingatlan jó elosztású, jelenlegi állapotában azonnal birtokba vehető, ugyanakkor igény szerint felújítást igényel, így az új tulajdonos saját ízlése és elképzelései szerint formálhatja. A nyílászárók már korszerű, műanyag ablakokra lettek cserélve, az ingatlan fűtéséről,(+ meleg vízről) pedig a távhő gondoskodik radiátoros hőleadókon keresztül. Elhelyezkedését tekintve kiváló , valamint rezsiköltsége is rendkívül kedvező. Buszmegálló, villamosmegálló, boltok, posta, óvoda, iskola mind néhány perc sétára találhatók. Az ingatlan rövid időn belül költözhető, így saját célra, valamint befektetőknek is egyaránt kiváló választás. Kérem tekintse meg virtuális sétámat is. Jöjjön el, tegyen egy ajánlatot és biztosan meg fogunk tudni egyezni! Várom hívását akár hétvégén is! OTP Banki hátterünknek köszönhetően finanszírozási igényekben (pl. Otthon Start Hitelprogram, Babaváró, Falusi CSOK, CSOK Plusz, Lakáshitel, Személyi kölcsön stb.), illetve biztosítások tekintetében is állunk ügyfeleink rendelkezésére! Az adásvételhez pedig megbízható ügyvédi közreműködést biztosítunk. Hívása során hivatkozzon az M326220-as referenciaszámra.

Hirdetés feltöltve: 2026. 04. 30. Utoljára módosítva: 2026. 05. 10.

2 szobás panellakások ára Miskolcon

Ebből az összehasonlításból megtudhatod, hogyan viszonyul a lakás ára a környékbeli panellakások átlagos árához. Ez nem azt jelenti, hogy ennyivel olcsóbb vagy drágább, mint amennyit a lakás ér, hanem hogy ennyivel tér el a környékbeli átlagtól.

Ennek a m² ára
Miskolc m² ár
489 e Ft
671 e Ft 27%
Ennek az ára
Miskolc átlagár
25.9 M Ft m Ft
35.8 m Ft 28%

Az ingatlan elhelyezkedése

Cím: Miskolc, 4. emelet

Eladó panellakások a környékről

Kazincbarcika
Eladó panellakás

Kazincbarcika

21.9 M Ft
2 szoba
52 m²
Kazincbarcika
Eladó panellakás

Kazincbarcika

46.8 M Ft
4 szoba
114 m²
Miskolc
Eladó panellakás

Miskolc

29.8 M Ft
2 szoba
55 m²
Miskolc
Eladó panellakás

Miskolc

55.49 M Ft
2 + 1 szoba
63 m²
Sátoraljaújhely
Eladó panellakás

Sátoraljaújhely

26 M Ft
2 szoba
54 m²
Miskolc, Belváros, Király utca
Eladó panellakás

Miskolc

34.5 M Ft
2 szoba
55 m²
Miskolc
Eladó panellakás

Miskolc

79.9 M Ft
3 szoba
77 m²
Kazincbarcika
Eladó panellakás

Kazincbarcika

46.8 M Ft
4 szoba
114 m²
Miskolc
Eladó panellakás

Miskolc

55.49 M Ft
2 + 1 szoba
63 m²
Miskolc
Eladó panellakás

Miskolc

55.49 M Ft
2 + 1 szoba
63 m²
Miskolc
Eladó panellakás

Miskolc

44.9 M Ft
3 szoba
55 m²
Kazincbarcika
Eladó panellakás

Kazincbarcika

46.8 M Ft
4 szoba
114 m²
Kazincbarcika
Eladó panellakás

Kazincbarcika

46.8 M Ft
4 szoba
114 m²
Kazincbarcika
Eladó panellakás

Kazincbarcika

46.8 M Ft
4 szoba
114 m²
Miskolc, Soltész Nagy Kálmán
Eladó panellakás

Miskolc

68.49 M Ft
4 + 1 szoba
119 m²
Miskolc
Eladó panellakás

Miskolc

33.5 M Ft
1 + 2 szoba
54 m²
Miskolc
Eladó panellakás

Miskolc

44.9 M Ft
3 szoba
55 m²
Miskolc, Soltész Nagy Kálmán
Eladó panellakás

Miskolc

68.49 M Ft
4 + 1 szoba
119 m²
Miskolc
Eladó panellakás

Miskolc

79.9 M Ft
3 szoba
77 m²
Miskolc, Hejőcsaba, Szalag utca
Eladó panellakás

Miskolc

31.45 M Ft
2 szoba
47 m²
Miskolc
Eladó panellakás

Miskolc

55.49 M Ft
2 + 1 szoba
63 m²
Miskolc
Eladó panellakás

Miskolc

29.8 M Ft
2 szoba
51 m²
Miskolc
Eladó panellakás

Miskolc

21.5 M Ft
1 + 1 szoba
35 m²
Miskolc, Avas Dél városrész, Középszer utca
Eladó panellakás

Miskolc

33 M Ft
2 + 1 szoba
61 m²

Falusi CSOK ingatlanok

Balatonakali
Eladó ikerház

Balatonakali

550 M Ft
4 szoba
94 m²
Szabadbattyán
Eladó családi ház

Szabadbattyán

139.9 M Ft
4 szoba
201 m²
Nagykónyi
Eladó családi ház

Nagykónyi

82.5 M Ft
2 szoba
114 m²
Érsekcsanád
Eladó családi ház

Érsekcsanád

69.9 M Ft
4 + 2 szoba
206 m²
Fertőd
Eladó családi ház

Fertőd

140.91 M Ft
4 + 2 szoba
190 m²
Gyékényes
Eladó családi ház

Gyékényes

16.9 M Ft
3 szoba
83 m²
Hajós
Eladó családi ház

Hajós

49.5 M Ft
6 szoba
394 m²
Hegyeshalom, Margaréta utca 12
Eladó téglalakás

Hegyeshalom

35.92 M Ft
1 szoba
31 m²