Astora Art House

Eladó panellakás
Miskolc, 3. emelet

+ 9 kép 1/12
31 900 000 Ft31.9 M Ft 590 741 Ft/m2
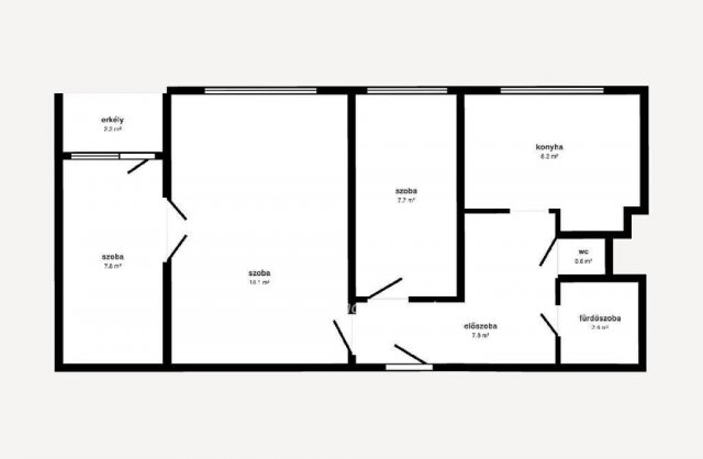
1 + 2 szoba
54 m²
3. emelet
építés éve:1973

Részletes adatok

Fűtés: Távfűtés
Emelet: 3. emelet
Extrák: Lift
Energetikai besorolás: Nem adta meg a hirdető

Az OTP Bank lakáshitel ajánlataFizetett hirdetés

+36 20 315
Vécsei Katalin
OTP IP Miskolc Corvin 1-3

Érdekel az OTP Bank kedvezményes lakáshitel ajánlata? *

* A kérdésre „Igen” válasz bejelölése esetén, az „Üzenet küldése” gombra kattintva kijelentem, hogy az OTP Bank Nyrt. Adatkezelési tájékoztatójának tartalmát megismertem és tudomásul vettem.

Eladó panellakás leírása

ELADÓ EGY+KÉT FÉLSZOBÁS ERKÉLYES KLÍMÁS LAKÁS A KÖZÉPSZEREN! Eladó a Középszer utcában egy 54 nm-es, egy + két félszobás, erkélyes, klímás, részben felújított, harmadik emeleti, tehermentes panellakás! Ablakai hőszigeteltek, bejárati ajtó kicserélve, fürdő és wc a kád kivételével felújítva, villamoshálózat a konyha és fürdő felé átvezetékelve. Lépcsőháza tiszta rendes, a szomszédok kulturáltak. Kilátás a parkos domboldalra, parkolás a ház előtt ingyenes. Tömegközlekedés, üzletek, iskola pár percre. Várom hívását hétvégén is!
OTP Banki hátterünknek köszönhetően finanszírozási igényekben (pl. Otthon Start Hitelprogram, Babaváró, Falusi CSOK, CSOK Plusz, Lakáshitel, Személyi kölcsön stb.), illetve biztosítások tekintetében is díjmentesen, soron kívüli ügyintézéssel segítem ügyfeleim! Referenciaszám: M324672

Virtuális séta:

Hirdetés feltöltve: 2026. 04. 09. Utoljára módosítva: 2026. 05. 10.

3 szobás panellakások ára Miskolcon

Ebből az összehasonlításból megtudhatod, hogyan viszonyul a lakás ára a környékbeli panellakások átlagos árához. Ez nem azt jelenti, hogy ennyivel olcsóbb vagy drágább, mint amennyit a lakás ér, hanem hogy ennyivel tér el a környékbeli átlagtól.

Ennek a m² ára
Miskolc m² ár
591 e Ft
652 e Ft 9%
Ennek az ára
Miskolc átlagár
31.9 M Ft m Ft
41.8 m Ft 24%

Az ingatlan elhelyezkedése

Cím: Miskolc, 3. emelet

Eladó panellakások a környékről

Kazincbarcika
Eladó panellakás

Kazincbarcika

46.8 M Ft
4 szoba
114 m²
Miskolc
Eladó panellakás

Miskolc

79.9 M Ft
3 szoba
77 m²
Miskolc
Eladó panellakás

Miskolc

79.9 M Ft
3 szoba
77 m²
Miskolc
Eladó panellakás

Miskolc

21.5 M Ft
1 + 1 szoba
35 m²
Miskolc
Eladó panellakás

Miskolc

44.9 M Ft
3 szoba
55 m²
Miskolc, Avas Dél városrész, Középszer utca
Eladó panellakás

Miskolc

33 M Ft
2 + 1 szoba
61 m²
Kazincbarcika
Eladó panellakás

Kazincbarcika

46.8 M Ft
4 szoba
114 m²
Miskolc, Szentpéteri kapu Nyugat, Szentpéteri kapu
Eladó panellakás

Miskolc

36 M Ft
3 szoba
73 m²
Miskolc
Eladó panellakás

Miskolc

28.75 M Ft
2 szoba
51 m²
Miskolc
Eladó panellakás

Miskolc

46.5 M Ft
3 szoba
73 m²
Kazincbarcika
Eladó panellakás

Kazincbarcika

46.8 M Ft
4 szoba
114 m²
Miskolc
Eladó panellakás

Miskolc

44.9 M Ft
3 szoba
55 m²
Sárospatak
Eladó panellakás

Sárospatak

25 M Ft
2 szoba
61 m²
Miskolc, Hejőcsaba, Szalag utca
Eladó panellakás

Miskolc

31.45 M Ft
2 szoba
47 m²
Miskolc, Soltész Nagy Kálmán
Eladó panellakás

Miskolc

68.49 M Ft
4 + 1 szoba
119 m²
Miskolc, Szentpéteri kapu Nyugat, Szentpéteri kapu
Eladó panellakás

Miskolc

36 M Ft
3 szoba
73 m²
Sátoraljaújhely
Eladó panellakás

Sátoraljaújhely

26 M Ft
2 szoba
54 m²
Miskolc
Eladó panellakás

Miskolc

35 M Ft
1 + 2 szoba
54 m²
Sárospatak, Katona József utca
Eladó panellakás

Sárospatak

19.8 M Ft
2 szoba
54 m²
Miskolc
Eladó panellakás

Miskolc

55.49 M Ft
2 + 1 szoba
63 m²
Kazincbarcika
Eladó panellakás

Kazincbarcika

46.8 M Ft
4 szoba
114 m²
Miskolc
Eladó panellakás

Miskolc

29.8 M Ft
2 szoba
51 m²
Miskolc
Eladó panellakás

Miskolc

44.9 M Ft
3 szoba
55 m²
Miskolc
Eladó panellakás

Miskolc

44.9 M Ft
3 szoba
55 m²

Falusi CSOK ingatlanok

Sumony
Eladó családi ház

Sumony

19 M Ft
4 szoba
120 m²
Ceglédbercel
Eladó családi ház

Ceglédbercel

89 M Ft
4 szoba
135 m²
Pécsely
Eladó családi ház

Pécsely

85 M Ft
2 szoba
90 m²
Balatonakali
Eladó ikerház

Balatonakali

550 M Ft
4 szoba
94 m²
Tihany
Eladó családi ház

Tihany

590 M Ft
8 szoba
340 m²
Hegyeshalom, Margaréta utca 12
Eladó téglalakás

Hegyeshalom

35.92 M Ft
1 szoba
31 m²
Tihany
Eladó családi ház

Tihany

180 M Ft
3 szoba
120 m²
Kunadacs
Eladó családi ház

Kunadacs

80 M Ft
4 szoba
148 m²