Astora Olive Club House

Eladó panellakás
Miskolc, 10. emelet

+ 9 kép 1/12
29 990 000 Ft29.99 M Ft 555 370 Ft/m2
1 + 2 szoba
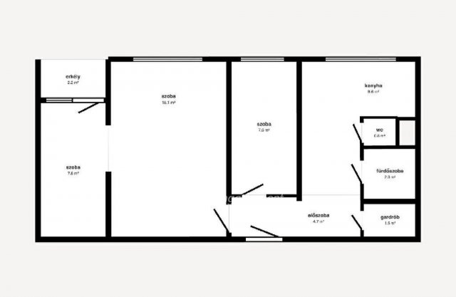
54 m²
10. emelet
építés éve:1980

Részletes adatok

Állapot: Átlagos
Fűtés: Távfűtés
Emelet: 10. emelet
Extrák: Lift
Energetikai besorolás: Nem adta meg a hirdető

Az OTP Bank lakáshitel ajánlataFizetett hirdetés

+36 30 439
Baranyai Marianna
OTP IP Miskolc Corvin 1-3

Érdekel az OTP Bank kedvezményes lakáshitel ajánlata? *

* A kérdésre „Igen” válasz bejelölése esetén, az „Üzenet küldése” gombra kattintva kijelentem, hogy az OTP Bank Nyrt. Adatkezelési tájékoztatójának tartalmát megismertem és tudomásul vettem.

Eladó panellakás leírása

Miskolc Diósgyőr városrészében kínálok megvételre egy 54 nm alapterületű, 1+2 félszobás erkélyes lakást, panelprogramos épület tizedik emeletén. Az ingatlan praktikus elrendezésű, amely ideális lehet családok, párok vagy akár befektetők számára is. A lakás átlagos állapotú, tehermentes, azonnal költözhető. A lakás fenntartási költsége kedvező, a panelprogramnak és az egyedi mérésű távfűtésnek köszönhetően jól tervezhető rezsivel. Kiváló infrastruktúra jellemzi a környéket: a közelben megtalálhatóak élelmiszerboltok, bevásárlási lehetőségek, gyógyszertár, iskola, óvoda, valamint busz- és villamosmegállók is. A környéken parkok, zöldterületek és sportolási lehetőségek is rendelkezésre állnak, így a mindennapi élet minden szükséges szolgáltatása könnyen elérhető. Amennyiben az ingatlan felkeltette az érdeklődését, hívjon bizalommal és tekintsük meg együtt akár hétvégén is! OTP Banki hátterünknek köszönhetően finanszírozási igényekben (pl. Otthon Start Hitel Program, Babaváró, CSOK, Felújítási hitel, stb.) is állunk ügyfeleink rendelkezésére. Az ingatlan előre egyeztetett időpontban megtekinthető, megbízható ügyvédi közreműködést, szerződéskötéshez irodai hátteret biztosítunk. Referenciaszám: M324473

Hirdetés feltöltve: 2026. 04. 02. Utoljára módosítva: 2026. 05. 10.

3 szobás panellakások ára Miskolcon

Ebből az összehasonlításból megtudhatod, hogyan viszonyul a lakás ára a környékbeli panellakások átlagos árához. Ez nem azt jelenti, hogy ennyivel olcsóbb vagy drágább, mint amennyit a lakás ér, hanem hogy ennyivel tér el a környékbeli átlagtól.

Ennek a m² ára
Miskolc m² ár
555 e Ft
652 e Ft 15%
Ennek az ára
Miskolc átlagár
29.99 M Ft m Ft
41.8 m Ft 28%

Az ingatlan elhelyezkedése

Cím: Miskolc, 10. emelet

Eladó panellakások a környékről

Miskolc
Eladó panellakás

Miskolc

44.9 M Ft
3 szoba
55 m²
Miskolc, Szentpéteri kapu Nyugat, Szentpéteri kapu
Eladó panellakás

Miskolc

36 M Ft
3 szoba
73 m²
Miskolc
Eladó panellakás

Miskolc

36 M Ft
3 szoba
73 m²
Miskolc, Vologda, Jókai Mór utca
Eladó panellakás

Miskolc

44.9 M Ft
3 szoba
55 m²
Miskolc
Eladó panellakás

Miskolc

46.5 M Ft
3 szoba
73 m²
Kazincbarcika
Eladó panellakás

Kazincbarcika

46.8 M Ft
4 szoba
114 m²
Miskolc, Vologda, Jókai Mór utca
Eladó panellakás

Miskolc

44.9 M Ft
3 szoba
55 m²
Kazincbarcika
Eladó panellakás

Kazincbarcika

46.8 M Ft
4 szoba
114 m²
Kazincbarcika
Eladó panellakás

Kazincbarcika

46.8 M Ft
4 szoba
114 m²
Miskolc, Belváros, Király utca
Eladó panellakás

Miskolc

34.5 M Ft
2 szoba
55 m²
Sátoraljaújhely, Dózsa György utca
Eladó panellakás

Sátoraljaújhely

26 M Ft
2 szoba
54 m²
Miskolc
Eladó panellakás

Miskolc

21.5 M Ft
1 + 1 szoba
35 m²
Miskolc
Eladó panellakás

Miskolc

28.75 M Ft
2 szoba
51 m²
Miskolc
Eladó panellakás

Miskolc

21.5 M Ft
1 + 1 szoba
35 m²
Miskolc
Eladó panellakás

Miskolc

55.49 M Ft
2 + 1 szoba
63 m²
Kazincbarcika
Eladó panellakás

Kazincbarcika

46.8 M Ft
4 szoba
114 m²
Miskolc
Eladó panellakás

Miskolc

33.5 M Ft
1 + 2 szoba
54 m²
Miskolc, Hejőcsaba, Szalag utca
Eladó panellakás

Miskolc

31.45 M Ft
2 szoba
47 m²
Miskolc
Eladó panellakás

Miskolc

29.8 M Ft
2 szoba
55 m²
Kazincbarcika
Eladó panellakás

Kazincbarcika

46.8 M Ft
4 szoba
114 m²
Miskolc
Eladó panellakás

Miskolc

55.49 M Ft
2 + 1 szoba
63 m²
Miskolc, Belváros, Király utca
Eladó panellakás

Miskolc

34.5 M Ft
2 szoba
55 m²
Kazincbarcika
Eladó panellakás

Kazincbarcika

21.9 M Ft
2 szoba
52 m²
Miskolc, Soltész Nagy Kálmán
Eladó panellakás

Miskolc

68.49 M Ft
4 + 1 szoba
119 m²

Falusi CSOK ingatlanok

Bakonycsernye
Eladó családi ház

Bakonycsernye

39 M Ft
3 szoba
350 m²
Kál
Eladó családi ház

Kál

31 M Ft
4 szoba
307 m²
Hegyeshalom, Margaréta utca 12
Eladó téglalakás

Hegyeshalom

50.09 M Ft
2 szoba
43 m²
Himesháza
Eladó családi ház

Himesháza

30 M Ft
3 szoba
92 m²
Jobbágyi
Eladó családi ház

Jobbágyi

399 M Ft
7 szoba
200 m²
Győrság
Eladó családi ház

Győrság

79.9 M Ft
4 szoba
92 m²
Seregélyes
Eladó családi ház

Seregélyes

87 M Ft
4 szoba
96 m²
Verseg
Eladó családi ház

Verseg

69.9 M Ft
4 szoba
0 m²