Metrodom

Eladó panellakás
Miskolc, Győri kapu, Thököly, 3. emelet

+ 3 kép 1/6
33 900 000 Ft33.9 M Ft 691 837 Ft/m2
2 szoba
49 m²
3. emelet

Részletes adatok

Állapot: Felújított
Fűtés: Távfűtés
Emelet: 3. emelet
Közmű: Víz, Gáz, Villany, Csatorna
Energetikai besorolás: Nem adta meg a hirdető

Az OTP Bank lakáshitel ajánlataFizetett hirdetés

+36 30 498
Icahome
Icahome

Érdekel az OTP Bank kedvezményes lakáshitel ajánlata? *

* A kérdésre „Igen” válasz bejelölése esetén, az „Üzenet küldése” gombra kattintva kijelentem, hogy az OTP Bank Nyrt. Adatkezelési tájékoztatójának tartalmát megismertem és tudomásul vettem.

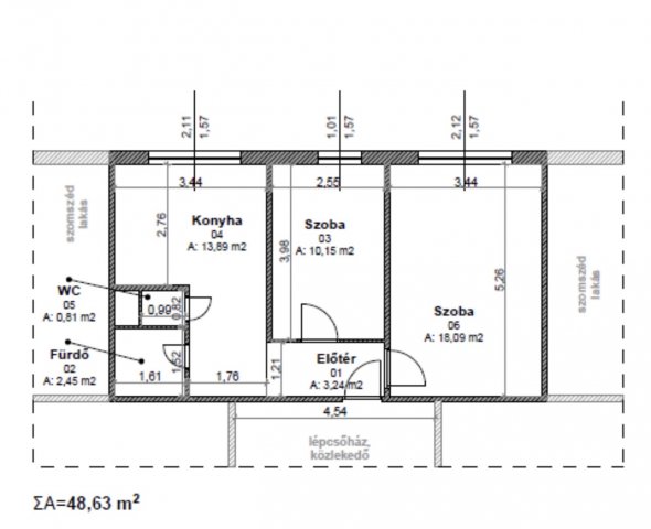
Eladó panellakás leírása

Kedves Érdeklődő!
2 szobás, azonnal költözhető lakás- Győri kapu
Megvételre kínálunk Miskolcon, a Thököly
utcában egy 49 m²-es, nagykonyhás lakást rendezett társasházban. Az ingatlan praktikus elrendezésű, a helyiségek jól kihasználhatók, így kényelmes otthont biztosíthat egyedülállóknak, pároknak vagy akár kisebb család számára is. A lakás egyik kiemelt előnye a tágas, jól használható konyha, amely elegendő helyet biztosít a mindennapi főzéshez és étkezésekhez is. A lakás világos, élhető terekkel rendelkezik, állapota rendezett, így akár azonnal költözhető.
A lakás néhány éve lett felújítva, többek közott a víz-, illetve villanyhálózat, a burkolatok és a nyílászárók.
Befektetésnek is kiváló, könnyen kiadható akár butorozatlanul is.

Az ingatlan elhelyezkedése kedvező: a környéken kiváló a közlekedés, közel a belvároshoz valamint a város több pontja is gyorsan elérhető.

Parkolás az társasház közvetlen környezetében, illetve a közeli garázssorokon is kivitelezhető.

A közelben boltok, iskola, óvoda, gyógyszertár és egyéb szolgáltatások is megtalálhatók, ami a mindennapi életet jelentősen megkönnyíti.

Amennyiben egy jó elosztású, élhető lakást keres Miskolcon, érdemes személyesen is megtekinteni.

Díjmentes hitelügyintézés, hiteltanácsadás! Segítségünkkel olyan egyedi banki kedvezményekhez juthat, melyekre bankfióki igénylés során nem tehet szert. A kezdetektől a hitelfolyósításig kísérjük, támogatjuk hiteligényét. Mindez természetesen, díjmentesen jár Önnek!
Hívjon a 06/30/498/5052 számon, vagy e-mailben az \"icahomemisk@gmail.com \" címen és nézzük meg együtt ezt az ingatlant.
További kínálatunkat megtekintheti a honlapunkon. Amennyiben Ön is rendelkezik eladó ingatlannal, és szeretné, ha valóban kiemelt szakértelemmel foglalkoznának vele, kérem, hívjon bizalommal!

Ne hagyja ki – hívjon bizalommal, és nézze meg személyesen!

Hirdetés feltöltve: 2026. 04. 01. Utoljára módosítva: 2026. 04. 01.

2 szobás panellakások ára Miskolcon

Ebből az összehasonlításból megtudhatod, hogyan viszonyul a lakás ára a környékbeli panellakások átlagos árához. Ez nem azt jelenti, hogy ennyivel olcsóbb vagy drágább, mint amennyit a lakás ér, hanem hogy ennyivel tér el a környékbeli átlagtól.

Ennek a m² ára
Győri kapu m² ár
Miskolc m² ár
692 e Ft
420 e Ft -65%
668 e Ft -4%
Ennek az ára
Győri kapu átlagár
Miskolc átlagár
33.9 M Ft m Ft
19.4 m Ft -75%
35.4 m Ft 4%

Az ingatlan elhelyezkedése

Cím: Miskolc, Győri kapu, Thököly, 3. emelet

Eladó panellakások a környékről

Miskolc
Eladó panellakás

Miskolc

35 M Ft
1 + 2 szoba
54 m²
Miskolc
Eladó panellakás

Miskolc

44.9 M Ft
3 szoba
55 m²
Miskolc
Eladó panellakás

Miskolc

35 M Ft
1 + 2 szoba
54 m²
Kazincbarcika
Eladó panellakás

Kazincbarcika

21.9 M Ft
2 szoba
52 m²
Miskolc
Eladó panellakás

Miskolc

21.5 M Ft
1 + 1 szoba
35 m²
Miskolc
Eladó panellakás

Miskolc

55.49 M Ft
2 + 1 szoba
63 m²
Kazincbarcika
Eladó panellakás

Kazincbarcika

46.8 M Ft
4 szoba
114 m²
Miskolc
Eladó panellakás

Miskolc

33.5 M Ft
1 + 2 szoba
54 m²
Miskolc
Eladó panellakás

Miskolc

35 M Ft
1 + 2 szoba
54 m²
Miskolc
Eladó panellakás

Miskolc

55.49 M Ft
2 + 1 szoba
63 m²
Miskolc
Eladó panellakás

Miskolc

79.9 M Ft
3 szoba
77 m²
Miskolc, Vologda, Jókai Mór utca
Eladó panellakás

Miskolc

44.9 M Ft
3 szoba
55 m²
Kazincbarcika
Eladó panellakás

Kazincbarcika

42 M Ft
4 szoba
114 m²
Miskolc
Eladó panellakás

Miskolc

35 M Ft
1 + 2 szoba
54 m²
Miskolc
Eladó panellakás

Miskolc

29.8 M Ft
2 szoba
55 m²
Miskolc
Eladó panellakás

Miskolc

44.9 M Ft
3 szoba
55 m²
Miskolc
Eladó panellakás

Miskolc

28.9 M Ft
2 szoba
51 m²
Kazincbarcika
Eladó panellakás

Kazincbarcika

46.8 M Ft
4 szoba
114 m²
Kazincbarcika
Eladó panellakás

Kazincbarcika

46.8 M Ft
4 szoba
114 m²
Miskolc
Eladó panellakás

Miskolc

44.9 M Ft
3 szoba
55 m²
Miskolc
Eladó panellakás

Miskolc

36 M Ft
3 szoba
73 m²
Miskolc, Soltész Nagy Kálmán
Eladó panellakás

Miskolc

68.49 M Ft
4 + 1 szoba
119 m²
Miskolc
Eladó panellakás

Miskolc

33.5 M Ft
1 + 2 szoba
54 m²
Miskolc
Eladó panellakás

Miskolc

29.8 M Ft
2 szoba
55 m²

Falusi CSOK ingatlanok

Vatta
Eladó családi ház

Vatta

28.3 M Ft
2 szoba
56 m²
Újlengyel, Hernádi dűlő
Eladó sorház

Újlengyel

64 M Ft
3 szoba
75 m²
Lengyeltóti
Eladó családi ház

Lengyeltóti

59.9 M Ft
5 szoba
205 m²
Mád
Eladó családi ház

Mád

48 M Ft
3 szoba
181 m²
Kemecse
Eladó családi ház

Kemecse

71.9 M Ft
4 szoba
144 m²
Tápióság
Eladó családi ház

Tápióság

59.9 M Ft
4 szoba
99 m²
Cserépfalu
Eladó családi ház

Cserépfalu

58 M Ft
4 szoba
143 m²
Vértesboglár
Eladó családi ház

Vértesboglár

56.9 M Ft
4 szoba
154 m²