River Life

Eladó panellakás
Miskolc, 1. emelet

+ 13 kép 1/16
33 900 000 Ft33.9 M Ft 565 000 Ft/m2
1 + 2 szoba
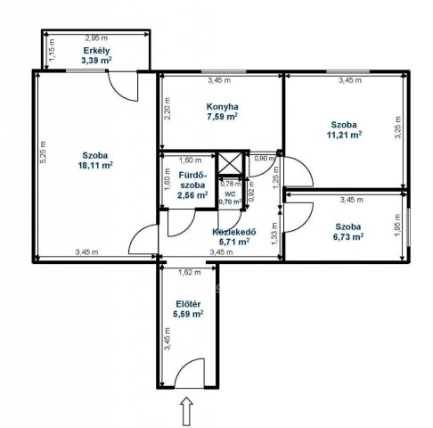
60 m²
1. emelet
építés éve:1973

Részletes adatok

Állapot: Felújítandó
Fűtés: Távfűtés
Emelet: 1. emelet
Parkolás: Garázs
Extrák: Lift
Energetikai besorolás: Nem adta meg a hirdető
Zenga Premier

Friss hirdetések, amiket nem találsz meg más ingatlankereső portálon.

Fedezd fel elsőként a Zenga Premier címkés eladó ingatlanokat!

További részletek a zenga.hu-n

Az OTP Bank lakáshitel ajánlataFizetett hirdetés

+36 70 637
Kovács Emese
Miskolc Corvin utca 1-3 - OTP Ingatlanpont Iroda

Érdekel az OTP Bank kedvezményes lakáshitel ajánlata? *

* A kérdésre „Igen” válasz bejelölése esetén, az „Üzenet küldése” gombra kattintva kijelentem, hogy az OTP Bank Nyrt. Adatkezelési tájékoztatójának tartalmát megismertem és tudomásul vettem.

Eladó panellakás leírása

Belvárosi kényelem és zöld kilátás ? Felújítandó gyöngyszem a Király utcában!

Szeretne a város szívében élni, de nem akar lemondani a nyugalomról? Megtalálta! Eladásra kínálunk egy 60 m2-es, 1+2 fél szobás lakást a közkedvelt Király utca páros oldalán 10 emeletes panelépület 1. emeletén.

Miért érdemes ezt a lakást választania?

Kiváló elosztás: A tágas nappali mellett két külön nyíló félszoba biztosítja a család minden tagjának a magánszférát.
Parkra néző panoráma: A beépített erkély közvetlenül a ház mögötti zöldövezetre néz, így a reggeli kávé mellett nem az autók zaját hallja
Saját ízlésére formálhatja: A lakás felújítandó állapotú, így nem kell megfizetnie más stílusát ? itt minden burkolatot és színt Ön választhat ki!
Alacsony fenntarthatóság: A távfűtés egyedi mérővel felszerelhető, de így is gazdaságos jelen állapotában
Paraméterek röviden:

Alapterület: 60 m2
Szobák: 1 egész + 2 fél szoba
Emelet: 1. emelet (lift van!)
Kilátás: Parkra néző, csendes
Fűtés: Távfő (távfűtés)
A környék előnyei:

A belváros minden kényelme pár perc sétára: boltok, iskolák, óvodák, orvosi rendelő, gyógyszertár. A tömegközlekedés kiváló, a parkolás pedig a ház körül megoldott.

Ideális választás családoknak, vagy befektetésnek is, hiszen a környék és az 1. emeleti elhelyezkedés miatt rendkívül könnyen bérbe adható!

Ne maradjon le erről a lehetőségről! Hívjon bizalommal, és nézzük meg együtt leendő otthonát!

Hirdetés feltöltve: 2026. 04. 01.

3 szobás panellakások ára Miskolcon

Ebből az összehasonlításból megtudhatod, hogyan viszonyul a lakás ára a környékbeli panellakások átlagos árához. Ez nem azt jelenti, hogy ennyivel olcsóbb vagy drágább, mint amennyit a lakás ér, hanem hogy ennyivel tér el a környékbeli átlagtól.

Ennek a m² ára
Miskolc m² ár
565 e Ft
683 e Ft 17%
Ennek az ára
Miskolc átlagár
33.9 M Ft m Ft
44.2 m Ft 23%

Az ingatlan elhelyezkedése

Cím: Miskolc, 1. emelet

Eladó panellakások a környékről

Miskolc
Eladó panellakás

Miskolc

35 M Ft
1 + 2 szoba
54 m²
Miskolc
Eladó panellakás

Miskolc

21.5 M Ft
1 + 1 szoba
35 m²
Miskolc, Vologda, Jókai Mór utca
Eladó panellakás

Miskolc

44.9 M Ft
3 szoba
55 m²
Kazincbarcika
Eladó panellakás

Kazincbarcika

46.8 M Ft
4 szoba
114 m²
Miskolc
Eladó panellakás

Miskolc

44.9 M Ft
3 szoba
55 m²
Miskolc, Hejőcsaba, Szalag utca
Eladó panellakás

Miskolc

32.89 M Ft
2 szoba
47 m²
Miskolc, Avas Dél városrész, Testvérvárosok
Eladó panellakás

Miskolc

21.5 M Ft
1 + 1 szoba
35 m²
Miskolc
Eladó panellakás

Miskolc

55.49 M Ft
2 + 1 szoba
63 m²
Miskolc
Eladó panellakás

Miskolc

21.5 M Ft
1 + 1 szoba
35 m²
Miskolc
Eladó panellakás

Miskolc

28.75 M Ft
2 szoba
51 m²
Miskolc, Vologda, Jókai Mór utca
Eladó panellakás

Miskolc

44.9 M Ft
3 szoba
55 m²
Kazincbarcika
Eladó panellakás

Kazincbarcika

46.8 M Ft
4 szoba
114 m²
Miskolc
Eladó panellakás

Miskolc

44.9 M Ft
3 szoba
55 m²
Miskolc
Eladó panellakás

Miskolc

33.5 M Ft
1 + 2 szoba
54 m²
Miskolc
Eladó panellakás

Miskolc

55.49 M Ft
2 + 1 szoba
63 m²
Miskolc
Eladó panellakás

Miskolc

44.9 M Ft
3 szoba
55 m²
Miskolc, Soltész Nagy Kálmán
Eladó panellakás

Miskolc

68.49 M Ft
4 + 1 szoba
119 m²
Miskolc
Eladó panellakás

Miskolc

79.9 M Ft
3 szoba
77 m²
Miskolc
Eladó panellakás

Miskolc

57.9 M Ft
2 + 1 szoba
63 m²
Kazincbarcika
Eladó panellakás

Kazincbarcika

46.8 M Ft
4 szoba
114 m²
Miskolc
Eladó panellakás

Miskolc

35 M Ft
1 + 2 szoba
54 m²
Miskolc, Avas Dél városrész, Testvérvárosok
Eladó panellakás

Miskolc

21.5 M Ft
1 + 1 szoba
35 m²
Miskolc
Eladó panellakás

Miskolc

29.8 M Ft
2 szoba
55 m²
Miskolc
Eladó panellakás

Miskolc

33.5 M Ft
1 + 2 szoba
54 m²

Falusi CSOK ingatlanok

Gyöngyössolymos
Eladó családi ház

Gyöngyössolymos

57.99 M Ft
4 szoba
160 m²
Tápiógyörgye
Eladó családi ház

Tápiógyörgye

14.9 M Ft
2 szoba
60 m²
Törtel
Eladó családi ház

Törtel

55 M Ft
3 + 1 szoba
120 m²
Tápióság
Eladó családi ház

Tápióság

59.9 M Ft
4 szoba
99 m²
Pécsvárad, Kossuth Lajos utca
Eladó téglalakás

Pécsvárad

64.99 M Ft
3 szoba
89 m²
Hajdúbagos
Eladó családi ház

Hajdúbagos

36.9 M Ft
3 szoba
50 m²
Onga
Eladó családi ház

Onga

52.9 M Ft
5 szoba
110 m²
Mád
Eladó családi ház

Mád

48 M Ft
3 szoba
181 m²