Metrodom

Eladó panellakás
Miskolc, földszint

+ 9 kép 1/12
25 500 000 Ft25.5 M Ft 728 571 Ft/m2
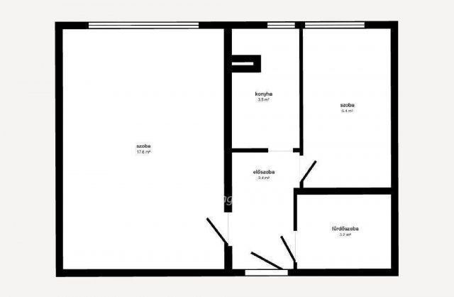
1 + 1 szoba
35 m²
földszint
építés éve:1985

Részletes adatok

Állapot: Átlagos
Fűtés: Távfűtés
Emelet: földszint
Energetikai besorolás: Nem adta meg a hirdető

Az OTP Bank lakáshitel ajánlataFizetett hirdetés

+36 30 928
Fehérvári György
OTP IP Miskolc Corvin 1-3

Érdekel az OTP Bank kedvezményes lakáshitel ajánlata? *

* A kérdésre „Igen” válasz bejelölése esetén, az „Üzenet küldése” gombra kattintva kijelentem, hogy az OTP Bank Nyrt. Adatkezelési tájékoztatójának tartalmát megismertem és tudomásul vettem.

Eladó panellakás leírása

ELADÓ MÁSFÉL SZOBÁS LAKÁS A SZENTPÉTERI KAPU ELEJÉN! Eladó a Macropolis közelében egy 35 nm-es, másfél szobás, földszinti, távfűtéses panellakás! Burkolata laminált padló, előszoba fürdő és konyha járólap. Nyílászárók kicserélve. Fekvésének és különnyíló szobáinak köszönhetően irodának is kiválóan alkalmas! Lépcsőháza csendes, üzletek tömegközlekedés pár percre. Várom hívását hétvégén is!
OTP Banki hátterünknek köszönhetően finanszírozási igényekben (pl. Otthon Start Hitelprogram, Babaváró, Falusi CSOK, CSOK Plusz, Lakáshitel, Személyi kölcsön stb.), illetve biztosítások tekintetében is díjmentesen, soron kívüli ügyintézéssel segítem ügyfeleim!
Referenciaszám: M318954

Virtuális séta:

25500000 Ft
Érdeklődni: Fehérvári György +36 30 928-2084

Referencia szám: M318945

Hirdetés feltöltve: 2026. 03. 21. Utoljára módosítva: 2026. 03. 21.

2 szobás panellakások ára Miskolcon

Ebből az összehasonlításból megtudhatod, hogyan viszonyul a lakás ára a környékbeli panellakások átlagos árához. Ez nem azt jelenti, hogy ennyivel olcsóbb vagy drágább, mint amennyit a lakás ér, hanem hogy ennyivel tér el a környékbeli átlagtól.

Ennek a m² ára
Miskolc m² ár
729 e Ft
666 e Ft -9%
Ennek az ára
Miskolc átlagár
25.5 M Ft m Ft
29.3 m Ft 13%

Az ingatlan elhelyezkedése

Cím: Miskolc, földszint

Eladó panellakások a környékről

Miskolc, Avas Dél városrész, Testvérvárosok
Eladó panellakás

Miskolc

21.5 M Ft
1 + 1 szoba
35 m²
Kazincbarcika
Eladó panellakás

Kazincbarcika

46.8 M Ft
4 szoba
114 m²
Miskolc
Eladó panellakás

Miskolc

26.5 M Ft
2 szoba
55 m²
Miskolc
Eladó panellakás

Miskolc

33.5 M Ft
1 + 2 szoba
54 m²
Sátoraljaújhely, Dózsa György utca
Eladó panellakás

Sátoraljaújhely

26 M Ft
2 szoba
54 m²
Miskolc, Vologda, Jókai Mór utca
Eladó panellakás

Miskolc

44.9 M Ft
3 szoba
55 m²
Kazincbarcika
Eladó panellakás

Kazincbarcika

46.8 M Ft
4 szoba
114 m²
Miskolc
Eladó panellakás

Miskolc

35 M Ft
1 + 2 szoba
54 m²
Miskolc
Eladó panellakás

Miskolc

44.9 M Ft
3 szoba
55 m²
Miskolc
Eladó panellakás

Miskolc

29.8 M Ft
2 szoba
55 m²
Miskolc
Eladó panellakás

Miskolc

35 M Ft
1 + 2 szoba
54 m²
Kazincbarcika
Eladó panellakás

Kazincbarcika

46.8 M Ft
4 szoba
114 m²
Miskolc
Eladó panellakás

Miskolc

32 M Ft
1 + 2 szoba
54 m²
Miskolc, Avas Dél városrész, Testvérvárosok
Eladó panellakás

Miskolc

21.5 M Ft
1 + 1 szoba
35 m²
Miskolc, Soltész Nagy Kálmán
Eladó panellakás

Miskolc

68.49 M Ft
4 + 1 szoba
119 m²
Miskolc
Eladó panellakás

Miskolc

28.75 M Ft
2 szoba
51 m²
Miskolc
Eladó panellakás

Miskolc

79.9 M Ft
3 szoba
77 m²
Miskolc
Eladó panellakás

Miskolc

35 M Ft
1 + 2 szoba
54 m²
Miskolc, Hejőcsaba, Szalag utca
Eladó panellakás

Miskolc

32.89 M Ft
2 szoba
47 m²
Miskolc
Eladó panellakás

Miskolc

35 M Ft
1 + 2 szoba
54 m²
Miskolc
Eladó panellakás

Miskolc

32 M Ft
1 + 2 szoba
54 m²
Sátoraljaújhely
Eladó panellakás

Sátoraljaújhely

26 M Ft
2 szoba
54 m²
Miskolc
Eladó panellakás

Miskolc

21.5 M Ft
1 + 1 szoba
35 m²
Miskolc
Eladó panellakás

Miskolc

35 M Ft
1 + 2 szoba
54 m²

Falusi CSOK ingatlanok

Úrkút
Eladó családi ház

Úrkút

94.9 M Ft
4 szoba
186 m²
Devecser
Eladó családi ház

Devecser

39.9 M Ft
3 szoba
75 m²
Herend
Eladó téglalakás

Herend

59.99 M Ft
3 szoba
69 m²
Elek
Eladó családi ház

Elek

18 M Ft
4 szoba
180 m²
Balatonszemes
Eladó téglalakás

Balatonszemes

123.3 M Ft
2 szoba
70 m²
Felsőmocsolád
Eladó családi ház

Felsőmocsolád

48 M Ft
4 szoba
150 m²
Tiszasziget, Sziget lakópark
Eladó sorház

Tiszasziget

33.9 M Ft
2 szoba
48 m²
Vásárosdombó
Eladó családi ház

Vásárosdombó

14.99 M Ft
2 szoba
69 m²