Astora Art House

Eladó panellakás
Miskolc, 4. emelet

+ 3 kép 1/6
29 900 000 Ft29.9 M Ft 575 000 Ft/m2
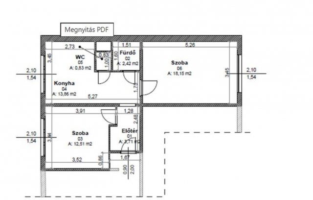
2 szoba
52 m²
4. emelet

Részletes adatok

Állapot: Felújított
Fűtés: Távfűtés
Emelet: 4. emelet
Közmű: Víz, Gáz, Villany, Csatorna
Energetikai besorolás: E

Az OTP Bank lakáshitel ajánlataFizetett hirdetés

+36 30 498
Icahome
Icahome

Érdekel az OTP Bank kedvezményes lakáshitel ajánlata? *

* A kérdésre „Igen” válasz bejelölése esetén, az „Üzenet küldése” gombra kattintva kijelentem, hogy az OTP Bank Nyrt. Adatkezelési tájékoztatójának tartalmát megismertem és tudomásul vettem.

Eladó panellakás leírása

Felújított, 2 szobás lakás eladó Miskolcon, a Bertalan utcában!
Miskolcon, Kilián várorészben kínálunk megvételre egy 52 nm-es, 2 szobás, kiváló állapotú lakást.
Az ingatlan 2 évvel ezelőtt teljes körű felújításon esett át, amely során megújultak a burkolatok, a gépészet, a villany- és vízvezetékek, valamint korszerű, esztétikus kialakítást kapott az egész lakás. A felújítás során modern, letisztult stílus került előtérbe, így az új tulajdonosnak már nem kell további munkálatokkal számolnia – ide valóban csak költözni kell.
A lakás két különnyíló szobával rendelkezik, így ideális lehet pároknak, kisebb családnak, de befektetésként, kiadásra is remek választás.
A helyiségek világosak, jó elosztásúak, praktikus térkihasználással.

A Bertalan utca csendes, mégis jól megközelíthető része Miskolcnak.
A közelben megtalálhatóak az élelmiszerboltok, iskolák, óvodák, gyógyszertár, posta, valamint busz- és villamosmegállók is a közvetlen közelben vannak.


A belváros rövid idő alatt elérhető tömegközlekedéssel és autóval egyaránt, így a lakás elhelyezkedése mindennapi életvitel szempontjából kifejezetten kedvező.
A ház környezetében az utcán biztosított a parkolás, amely a környéken jellemzően kényelmesen megoldható és ingyenes.

Nálunk nem áll meg a segítség a lakás bemutatásánál, hanem a teljes folyamatban végig melletted állunk. A gördülékeny hitelügyintézésnek és személyre szabott tanácsadásnak köszönhetően gyorsan és biztonságosan juthatsz új otthonodhoz.
Hívj minket a +36300130212 számon, vagy írj az icahomemisk@gmail.com elérhetőségre, és egyeztessünk időpontot!

Hirdetés feltöltve: 2026. 03. 05. Utoljára módosítva: 2026. 05. 10.

2 szobás panellakások ára Miskolcon

Ebből az összehasonlításból megtudhatod, hogyan viszonyul a lakás ára a környékbeli panellakások átlagos árához. Ez nem azt jelenti, hogy ennyivel olcsóbb vagy drágább, mint amennyit a lakás ér, hanem hogy ennyivel tér el a környékbeli átlagtól.

Ennek a m² ára
Miskolc m² ár
575 e Ft
690 e Ft 17%
Ennek az ára
Miskolc átlagár
29.9 M Ft m Ft
30.8 m Ft 3%

Az ingatlan elhelyezkedése

Cím: Miskolc, 4. emelet

Eladó panellakások a környékről

Miskolc
Eladó panellakás

Miskolc

79.9 M Ft
3 szoba
77 m²
Miskolc
Eladó panellakás

Miskolc

29.8 M Ft
2 szoba
55 m²
Miskolc
Eladó panellakás

Miskolc

55.49 M Ft
2 + 1 szoba
63 m²
Miskolc
Eladó panellakás

Miskolc

44.9 M Ft
3 szoba
55 m²
Miskolc
Eladó panellakás

Miskolc

36 M Ft
3 szoba
73 m²
Kazincbarcika
Eladó panellakás

Kazincbarcika

21.9 M Ft
2 szoba
52 m²
Miskolc, Hejőcsaba, Szalag utca
Eladó panellakás

Miskolc

31.45 M Ft
2 szoba
47 m²
Miskolc
Eladó panellakás

Miskolc

28.75 M Ft
2 szoba
51 m²
Miskolc, Belváros, Király utca
Eladó panellakás

Miskolc

34.5 M Ft
2 szoba
55 m²
Miskolc, Soltész Nagy Kálmán
Eladó panellakás

Miskolc

68.49 M Ft
4 + 1 szoba
119 m²
Kazincbarcika
Eladó panellakás

Kazincbarcika

46.8 M Ft
4 szoba
114 m²
Miskolc
Eladó panellakás

Miskolc

79.9 M Ft
3 szoba
77 m²
Miskolc
Eladó panellakás

Miskolc

33.5 M Ft
1 + 2 szoba
54 m²
Miskolc, Szentpéteri kapu Nyugat, Szentpéteri kapu
Eladó panellakás

Miskolc

36 M Ft
3 szoba
73 m²
Miskolc
Eladó panellakás

Miskolc

44.9 M Ft
3 szoba
55 m²
Sárospatak, Katona József utca
Eladó panellakás

Sárospatak

19.8 M Ft
2 szoba
54 m²
Miskolc
Eladó panellakás

Miskolc

28.75 M Ft
2 szoba
51 m²
Kazincbarcika
Eladó panellakás

Kazincbarcika

46.8 M Ft
4 szoba
114 m²
Miskolc
Eladó panellakás

Miskolc

46.5 M Ft
3 szoba
73 m²
Miskolc
Eladó panellakás

Miskolc

33.5 M Ft
1 + 2 szoba
54 m²
Miskolc, Vologda, Jókai Mór utca
Eladó panellakás

Miskolc

44.9 M Ft
3 szoba
55 m²
Miskolc
Eladó panellakás

Miskolc

35 M Ft
1 + 2 szoba
54 m²
Miskolc, Vologda, Jókai Mór utca
Eladó panellakás

Miskolc

44.9 M Ft
3 szoba
55 m²
Miskolc
Eladó panellakás

Miskolc

21.5 M Ft
1 + 1 szoba
35 m²

Falusi CSOK ingatlanok

Balatonszemes
Eladó téglalakás

Balatonszemes

110.9 M Ft
2 szoba
0 m²
Verseg
Eladó családi ház

Verseg

69.9 M Ft
4 szoba
0 m²
Sződ
Eladó családi ház

Sződ

102.9 M Ft
4 szoba
92 m²
Berzence
Eladó családi ház

Berzence

40 M Ft
3 szoba
233 m²
Verseg
Eladó családi ház

Verseg

41.5 M Ft
2 szoba
55 m²
Sumony
Eladó családi ház

Sumony

19 M Ft
4 szoba
120 m²
Győrság
Eladó családi ház

Győrság

89.9 M Ft
4 szoba
92 m²
Galgahévíz
Eladó családi ház

Galgahévíz

43 M Ft
3 szoba
115 m²