Astora Márvány8

Eladó panellakás
Miskolc, földszint

+ 9 kép 1/12
25 900 000 Ft25.9 M Ft 740 000 Ft/m2
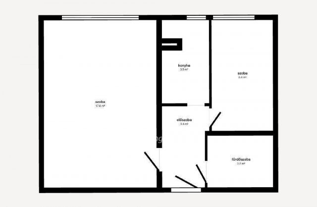
1 + 1 szoba
35 m²
földszint
építés éve:1985

Részletes adatok

Állapot: Átlagos
Fűtés: Távfűtés
Emelet: földszint
Energetikai besorolás: Nem adta meg a hirdető

Az OTP Bank lakáshitel ajánlataFizetett hirdetés

+36 30 120
Antal-Dusza Hajnalka
OTP IP Miskolc Corvin 1-3

Érdekel az OTP Bank kedvezményes lakáshitel ajánlata? *

* A kérdésre „Igen” válasz bejelölése esetén, az „Üzenet küldése” gombra kattintva kijelentem, hogy az OTP Bank Nyrt. Adatkezelési tájékoztatójának tartalmát megismertem és tudomásul vettem.

Eladó panellakás leírása

ELADÓ MÁSFÉL SZOBÁS LAKÁS A SZENTPÉTERI KAPU ELEJÉN! Eladó a Macropolis közelében egy 35 nm-es, másfél szobás, földszinti, távfűtéses panellakás! Burkolata laminált padló, előszoba fürdő és konyha járólap. Nyílászárók kicserélve. Fekvésének és különnyíló szobáinak köszönhetően irodának is kiválóan alkalmas! Lépcsőháza csendes, üzletek tömegközlekedés pár percre. Várom hívását hétvégén is!
OTP Banki hátterünknek köszönhetően finanszírozási igényekben (pl. Otthon Start Hitelprogram, Babaváró, Falusi CSOK, CSOK Plusz, Lakáshitel, Személyi kölcsön stb.), illetve biztosítások tekintetében is díjmentesen, soron kívüli ügyintézéssel segítem ügyfeleim!
Referenciaszám: M318954

Virtuális séta:

Referencia szám: M318945

Hirdetés feltöltve: 2026. 02. 20.

2 szobás panellakások ára Miskolcon

Ebből az összehasonlításból megtudhatod, hogyan viszonyul a lakás ára a környékbeli panellakások átlagos árához. Ez nem azt jelenti, hogy ennyivel olcsóbb vagy drágább, mint amennyit a lakás ér, hanem hogy ennyivel tér el a környékbeli átlagtól.

Ennek a m² ára
Miskolc m² ár
740 e Ft
632 e Ft -17%
Ennek az ára
Miskolc átlagár
25.9 M Ft m Ft
28.5 m Ft 9%

Az ingatlan elhelyezkedése

Cím: Miskolc, földszint

Eladó panellakások a környékről

Miskolc
Eladó panellakás

Miskolc

29.8 M Ft
2 szoba
55 m²
Sátoraljaújhely
Eladó panellakás

Sátoraljaújhely

26 M Ft
2 szoba
54 m²
Miskolc, Avas Dél városrész, Testvérvárosok
Eladó panellakás

Miskolc

21.5 M Ft
1 + 1 szoba
35 m²
Miskolc, Avas Dél városrész, Klapka György utca
Eladó panellakás

Miskolc

29.8 M Ft
2 szoba
55 m²
Miskolc
Eladó panellakás

Miskolc

35 M Ft
1 + 2 szoba
54 m²
Kazincbarcika
Eladó panellakás

Kazincbarcika

46.8 M Ft
4 szoba
114 m²
Miskolc
Eladó panellakás

Miskolc

30.99 M Ft
3 szoba
63 m²
Miskolc
Eladó panellakás

Miskolc

39.8 M Ft
2 szoba
64 m²
Miskolc
Eladó panellakás

Miskolc

30.99 M Ft
3 szoba
63 m²
Miskolc
Eladó panellakás

Miskolc

35 M Ft
1 + 2 szoba
54 m²
Kazincbarcika
Eladó panellakás

Kazincbarcika

46.8 M Ft
4 szoba
114 m²
Miskolc
Eladó panellakás

Miskolc

30.99 M Ft
3 szoba
63 m²
Miskolc, Győri kapu
Eladó panellakás

Miskolc

39.8 M Ft
2 szoba
64 m²
Miskolc
Eladó panellakás

Miskolc

28.75 M Ft
2 szoba
51 m²
Miskolc, Avas Dél városrész, Klapka György utca
Eladó panellakás

Miskolc

29.8 M Ft
2 szoba
55 m²
Ózd, Városközpont lakótelep, Nemzetőr utca
Eladó panellakás

Ózd

9.9 M Ft
1 + 1 szoba
35 m²
Miskolc
Eladó panellakás

Miskolc

27.5 M Ft
2 szoba
51 m²
Miskolc
Eladó panellakás

Miskolc

32 M Ft
1 + 2 szoba
54 m²
Miskolc
Eladó panellakás

Miskolc

35 M Ft
1 + 2 szoba
54 m²
Miskolc
Eladó panellakás

Miskolc

30.99 M Ft
3 szoba
63 m²
Miskolc, Avas Dél városrész, Testvérvárosok
Eladó panellakás

Miskolc

21.5 M Ft
1 + 1 szoba
35 m²
Miskolc
Eladó panellakás

Miskolc

29.8 M Ft
2 szoba
55 m²
Miskolc
Eladó panellakás

Miskolc

21.5 M Ft
1 + 1 szoba
35 m²
Kazincbarcika
Eladó panellakás

Kazincbarcika

46.8 M Ft
4 szoba
114 m²

Falusi CSOK ingatlanok

Balatonkenese
Eladó családi ház

Balatonkenese

189.9 M Ft
5 szoba
205 m²
Kistapolca, Szabadság utca
Eladó családi ház

Kistapolca

16.5 M Ft
3 szoba
69 m²
Pécsvárad, Petőfi Sándor utca
Eladó családi ház

Pécsvárad

72.9 M Ft
3 szoba
120 m²
Tótszentmárton
Eladó családi ház

Tótszentmárton

120 M Ft
2 szoba
234 m²
Pécsvárad, Külterület
Eladó családi ház

Pécsvárad

16.5 M Ft
2 szoba
66 m²
Nagybánhegyes
Eladó családi ház

Nagybánhegyes

21.9 M Ft
4 szoba
150 m²
Verseg
Eladó családi ház

Verseg

38 M Ft
3 szoba
83 m²
Szellő
Eladó családi ház

Szellő

125 M Ft
5 szoba
124 m²