Astora Art House

Eladó panellakás
Miskolc, 2. emelet

+ 12 kép 1/15
32 500 000 Ft32.5 M Ft 590 909 Ft/m2
2 szoba
55 m2
2. emelet
építés éve:1986

Részletes adatok

Állapot: Átlagos
Fűtés: Gázkazán
Emelet: 2. emelet
Energetikai besorolás: Nem adta meg a hirdető

Az OTP Bank lakáshitel ajánlataFizetett hirdetés

+36 70 439
dr. Rohács Andrea
OTP IP Miskolc Corvin 1-3

Érdekel az OTP Bank kedvezményes lakáshitel ajánlata? *

* A kérdésre „Igen” válasz bejelölése esetén, az „Üzenet küldése” gombra kattintva kijelentem, hogy az OTP Bank Nyrt. Adatkezelési tájékoztatójának tartalmát megismertem és tudomásul vettem.

Eladó panellakás leírása

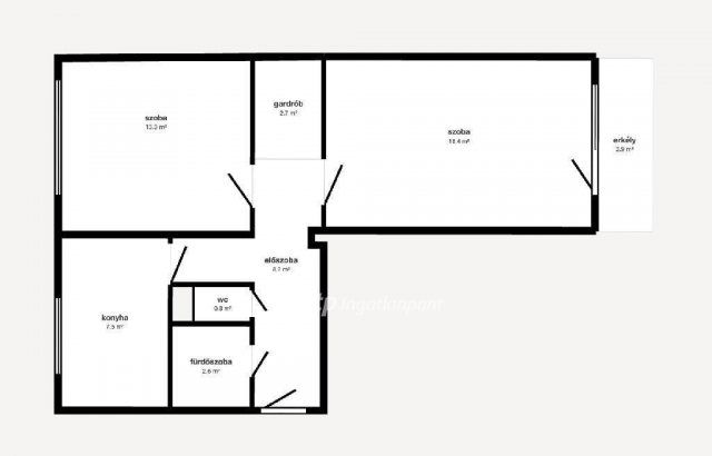
Eladó Miskolc egyik kedvelt részén, Újgyőri főtér szomszédságában, a Károly utcában, egy 55 nm-es, 2 szobás, második emeleti, tehermentes panel lakás!
A lakás átlagos állapotú, jól elrendezéssel rendelkezik. A két szoba parkettás, a többi helyiség járólappal burkolt. A nyílászárók műanyag, hőszigetelt ablakok redőnnyel, a lépcsőház pedig zárható, tiszta és rendezett.
A társasház 1986-ban épült, és külön előnye, hogy a lépcsőház saját kazánnal, teljesen egyedi fűtési rendszerrel rendelkezik ? ez kedvező fenntartási költségeket biztosít. Nagyszobában klíma is elhelyezésre került, beépített szekrény és a konyhabútor a vételár részét képezi, pince is tartozik hozzá.
A környék csendes, rendezett, a lakóközösség jó, a közelben villamosmegálló, buszmegálló.
Ideális választás első lakásnak, befektetésnek vagy kisebb család számára.
Banki háttérrel, teljes körű ügyintézéssel segítem a vásárlást! Otthon Start Hitelprogram, CSOK Plusz és lakáshitel ügyintézésben is támogatást nyújtok díjmentesen! Érdeklődés esetén hivatkozzon M318298 azonosítási számra.

Referencia szám: M318298

Hirdetés feltöltve: 2025. 12. 19. Utoljára módosítva: 2026. 02. 07.

2 szobás panellakások ára Miskolcon

Ebből az összehasonlításból megtudhatod, hogyan viszonyul a lakás ára a környékbeli panellakások átlagos árához. Ez nem azt jelenti, hogy ennyivel olcsóbb vagy drágább, mint amennyit a lakás ér, hanem hogy ennyivel tér el a környékbeli átlagtól.

Ennek a m² ára
Miskolc m² ár
591 e Ft
629 e Ft 6%
Ennek az ára
Miskolc átlagár
32.5 M Ft m Ft
27.9 m Ft -17%

Az ingatlan elhelyezkedése

Cím: Miskolc, 2. emelet

Eladó panellakások a környékről

Eladó panellakás
Eladó panellakás

Miskolc

29.8 M Ft
2 szoba
55 m2
Eladó panellakás
Eladó panellakás

Miskolc, Soltész Nagy Kálmán

68.49 M Ft
4 + 1 szoba
119 m2
Eladó panellakás
Eladó panellakás

Ózd, Városközpont lakótelep, Nemzetőr utca

9.9 M Ft
1 + 1 szoba
35 m2
Eladó panellakás
Eladó panellakás

Kazincbarcika

46.8 M Ft
4 szoba
114 m2
Eladó panellakás
Eladó panellakás

Kazincbarcika

46.8 M Ft
4 szoba
114 m2
Eladó panellakás
Eladó panellakás

Miskolc

24.99 M Ft
2 szoba
51 m2
Eladó panellakás
Eladó panellakás

Miskolc

26.5 M Ft
2 szoba
55 m2
Eladó panellakás
Eladó panellakás

Miskolc

21.5 M Ft
1 + 1 szoba
35 m2
Eladó panellakás
Eladó panellakás

Miskolc

36 M Ft
1 + 2 szoba
54 m2
Eladó panellakás
Eladó panellakás

Miskolc

36 M Ft
1 + 2 szoba
54 m2
Eladó panellakás
Eladó panellakás

Miskolc, Vologda, Jókai Mór utca

44.9 M Ft
3 szoba
55 m2
Eladó panellakás
Eladó panellakás

Kazincbarcika

46.8 M Ft
4 szoba
114 m2
Eladó panellakás
Eladó panellakás

Miskolc

29.8 M Ft
2 szoba
55 m2
Eladó panellakás
Eladó panellakás

Sárospatak, Katona József utca

19.8 M Ft
2 szoba
54 m2
Eladó panellakás
Eladó panellakás

Miskolc, Avas Dél városrész, Testvérvárosok

21.5 M Ft
1 + 1 szoba
35 m2
Eladó panellakás
Eladó panellakás

Miskolc

44.9 M Ft
3 szoba
55 m2
Eladó panellakás
Eladó panellakás

Miskolc

28.75 M Ft
2 szoba
51 m2
Eladó panellakás
Eladó panellakás

Miskolc

30.99 M Ft
3 szoba
63 m2
Eladó panellakás
Eladó panellakás

Miskolc

30.99 M Ft
3 szoba
63 m2
Eladó panellakás
Eladó panellakás

Miskolc

39.8 M Ft
2 szoba
64 m2
Eladó panellakás
Eladó panellakás

Miskolc, Avas Dél városrész, Klapka György utca

29.8 M Ft
2 szoba
55 m2
Eladó panellakás
Eladó panellakás

Miskolc, Avas Dél városrész, Testvérvárosok

21.5 M Ft
1 + 1 szoba
35 m2
Eladó panellakás
Eladó panellakás

Kazincbarcika

46.8 M Ft
4 szoba
114 m2
Eladó panellakás
Eladó panellakás

Kazincbarcika

23.5 M Ft
2 szoba
52 m2

Falusi CSOK ingatlanok

Eladó családi ház
Eladó családi ház

Bakonycsernye

39 M Ft
3 szoba
350 m2
Eladó családi ház
Eladó családi ház

Bugac

170 M Ft
187 m2
Eladó családi ház
Eladó családi ház

Csemő

36.6 M Ft
1 szoba
48 m2
Eladó családi ház
Eladó családi ház

Gyöngyöshalász

59 M Ft
4 + 3 szoba
214 m2
Eladó téglalakás
Eladó téglalakás

Herend

63 M Ft
3 szoba
69 m2
Eladó családi ház
Eladó családi ház

Szabadbattyán

67.5 M Ft
5 szoba
180 m2
Eladó családi ház
Eladó családi ház

Újlengyel

59.9 M Ft
3 szoba
73 m2
Eladó családi ház
Eladó családi ház

Bajna, Kossuth L. u. 28

58.5 M Ft
7 szoba
192 m2