Astora Art House

Eladó panellakás
Miskolc, 7. emelet

+ 11 kép 1/14
34 900 000 Ft34.9 M Ft 646 296 Ft/m2
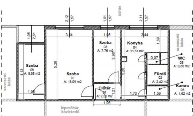
1 + 2 szoba
54 m2
7. emelet
építés éve:1980

Részletes adatok

Fűtés: Távfűtés
Emelet: 7. emelet
Extrák: Lift
Energetikai besorolás: Nem adta meg a hirdető

Az OTP Bank lakáshitel ajánlataFizetett hirdetés

+36 70 267
Kovács Attila
OTP IP Miskolc Corvin 1-3

Érdekel az OTP Bank kedvezményes lakáshitel ajánlata? *

* A kérdésre „Igen” válasz bejelölése esetén, az „Üzenet küldése” gombra kattintva kijelentem, hogy az OTP Bank Nyrt. Adatkezelési tájékoztatójának tartalmát megismertem és tudomásul vettem.

Eladó panellakás leírása

Panorámás Álomotthon a Bükk Lábánál! Eladó Felújított Lakás Miskolcon, Diósgyőrben!
Azonnal költözhető, gyönyörűen felújított, világos otthon várja új tulajdonosát Miskolc közkedvelt részén, Diósgyőrben!
Főbb Jellemzők:
Elhelyezkedés: Miskolc, Kuruc utca, Diósgyőr
Alapterület: Ideális elosztású, 1 plusz 2 félszobás panel lakás.
Emelet: 7. emelet (10 emeletes épületben) ? Csend és kiváló kilátás garantált!
Állapot: felújított ? Csak költöznie kell!
Fűtés: Távfűtés ? Költséghatékony és megbízható!
Panoráma: Jó kilátás a Bükk erdőre! Minden reggel a természet látványa fogadja. Beépített erkély.
Részletes Leírás:
Ez a Kuruc utcai lakás tökéletes választás mindazoknak, akik szeretnének egy csendes, zöldövezeti környezetben élni, de a város nyújtotta előnyökről sem mondanának le. A lakás teljeskörű felújításon esett át, melynek köszönhetően modern, fiatalos és energiatakarékos otthonná vált.
A praktikus elrendezésű, 1 egész és 2 félszobás lakás ideális választás lehet fiatal pároknak, kisebb családoknak vagy akár befektetésnek is. A 7. emeleti elhelyezkedésnek köszönhetően a zajszint minimális, a Bükk erdőre néző, festői panoráma pedig feledhetetlen élményt nyújt.
A lépcsőház rendezett, a szomszédok csendesek. Kiváló infrastruktúra: boltok, iskola, óvoda, orvosi rendelő, buszmegálló, villamosmegálló sétatávolságra található. A Diósgyőri vár közelsége és a Bükk erdei túraútvonalak lehetősége tovább növeli az ingatlan értékét.
Ne maradjon le erről a remek lehetőségről! Jöjjön el, nézze meg, és szeressen bele a panorámába!
Keressen bizalommal a részletekért és a megtekintés egyeztetéséért!
Irodai azonosító: M318013

Hirdetés feltöltve: 2025. 12. 15. Utoljára módosítva: 2026. 01. 13.

3 szobás panellakások ára Miskolcon

Ebből az összehasonlításból megtudhatod, hogyan viszonyul a lakás ára a környékbeli panellakások átlagos árához. Ez nem azt jelenti, hogy ennyivel olcsóbb vagy drágább, mint amennyit a lakás ér, hanem hogy ennyivel tér el a környékbeli átlagtól.

Ennek a m² ára
Miskolc m² ár
646 e Ft
646 e Ft 0%
Ennek az ára
Miskolc átlagár
34.9 M Ft m Ft
39 m Ft 10%

Az ingatlan elhelyezkedése

Cím: Miskolc, 7. emelet

Eladó panellakások a környékről

Eladó panellakás
Eladó panellakás

Miskolc

32 M Ft
3 szoba
63 m2
Eladó panellakás
Eladó panellakás

Miskolc

29.8 M Ft
2 szoba
55 m2
Eladó panellakás
Eladó panellakás

Miskolc, Avas Kelet városrész, Dankó Pista utca

31.9 M Ft
3 szoba
73 m2
Eladó panellakás
Eladó panellakás

Miskolc

32 M Ft
3 szoba
63 m2
Eladó panellakás
Eladó panellakás

Ózd, Városközpont lakótelep, Nemzetőr utca

9.9 M Ft
1 + 1 szoba
35 m2
Eladó panellakás
Eladó panellakás

Miskolc, Soltész Nagy Kálmán

68.49 M Ft
4 + 1 szoba
119 m2
Eladó panellakás
Eladó panellakás

Miskolc, Vologda, Jókai Mór utca

44.9 M Ft
3 szoba
55 m2
Eladó panellakás
Eladó panellakás

Miskolc, Belváros, Szent István utca

25.9 M Ft
2 szoba
51 m2
Eladó panellakás
Eladó panellakás

Miskolc, Avas Dél városrész, Testvérvárosok

21.5 M Ft
1 + 1 szoba
35 m2
Eladó panellakás
Eladó panellakás

Sárospatak, Katona József utca

19.8 M Ft
2 szoba
54 m2
Eladó panellakás
Eladó panellakás

Miskolc

33.5 M Ft
1 + 2 szoba
54 m2
Eladó panellakás
Eladó panellakás

Miskolc

34.99 M Ft
2 + 1 szoba
55 m2
Eladó panellakás
Eladó panellakás

Sátoraljaújhely

26 M Ft
2 szoba
54 m2
Eladó panellakás
Eladó panellakás

Miskolc

29.8 M Ft
2 szoba
55 m2
Eladó panellakás
Eladó panellakás

Miskolc

29.8 M Ft
2 szoba
55 m2
Eladó panellakás
Eladó panellakás

Miskolc

29.8 M Ft
2 szoba
55 m2
Eladó panellakás
Eladó panellakás

Miskolc

33.5 M Ft
1 + 2 szoba
54 m2
Eladó panellakás
Eladó panellakás

Miskolc

28.75 M Ft
2 szoba
51 m2
Eladó panellakás
Eladó panellakás

Miskolc

32 M Ft
3 szoba
63 m2
Eladó panellakás
Eladó panellakás

Miskolc, Avas Dél városrész, Klapka György utca

29.8 M Ft
2 szoba
55 m2
Eladó panellakás
Eladó panellakás

Miskolc

21.99 M Ft
2 szoba
55 m2
Eladó panellakás
Eladó panellakás

Miskolc, Győri kapu

39.8 M Ft
2 szoba
64 m2
Eladó panellakás
Eladó panellakás

Miskolc

21.5 M Ft
1 + 1 szoba
35 m2
Eladó panellakás
Eladó panellakás

Miskolc

54.9 M Ft
4 szoba
87 m2

Falusi CSOK ingatlanok

Eladó téglalakás
Eladó téglalakás

Herend

63 M Ft
3 szoba
69 m2
Eladó családi ház
Eladó családi ház

Pécsvárad

79.9 M Ft
4 szoba
100 m2
Eladó téglalakás
Eladó téglalakás

Balatonszemes

91.5 M Ft
2 szoba
60 m2
Eladó családi ház
Eladó családi ház

Zengővárkony

28 M Ft
3 szoba
87 m2
Eladó családi ház
Eladó családi ház

Orci

119.9 M Ft
6 szoba
200 m2
Eladó családi ház
Eladó családi ház

Mezőlak, Arany János utca

35.7 M Ft
3 szoba
104 m2
Eladó családi ház
Eladó családi ház

Nagyberki

39.9 M Ft
5 szoba
170 m2
Eladó családi ház
Eladó családi ház

Elek

18 M Ft
4 szoba
180 m2