Aerogate Homes

Eladó panellakás
Miskolc, 1. emelet

+ 12 kép 1/15
35 500 000 Ft35.5 M Ft 581 967 Ft/m2
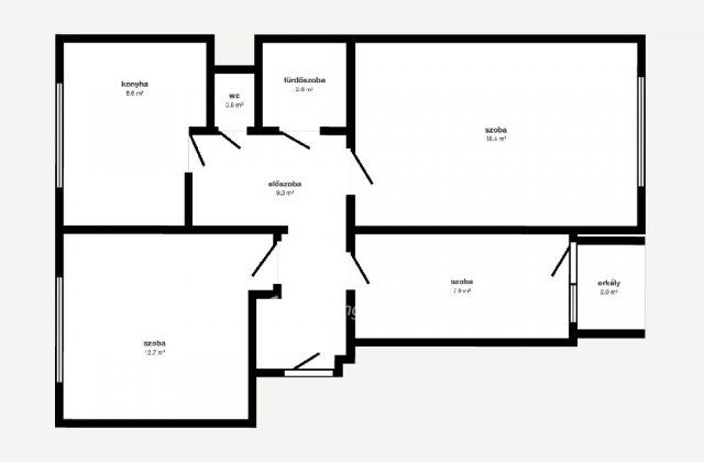
2 + 1 szoba
61 m2
1. emelet
építés éve:1973

Részletes adatok

Állapot: Átlagos
Fűtés: Távfűtés
Extrák: Lift
Energetikai besorolás: Nem adta meg a hirdető

Az OTP Bank lakáshitel ajánlataFizetett hirdetés

+36 20 361
Spéth Gábor György
referens

Érdekel az OTP Bank kedvezményes lakáshitel ajánlata? *

* A kérdésre „Igen” válasz bejelölése esetén, az „Üzenet küldése” gombra kattintva kijelentem, hogy az OTP Bank Nyrt. Adatkezelési tájékoztatójának tartalmát megismertem és tudomásul vettem.

Eladó panellakás leírása

Eladásra kínálunk Miskolcon a belvárostól 5 perc távolságra, a Kőporos utcában egy 61 nm-es, 2+1 félszobás , első emeleti jó állapotú távhős lakást. Az ingatlanban redőnnyel felszerelt műanyag nyílászárók kerültek beszerelésre, HI-SEC bejárati ajtóval egyetemben. Mind a meleg vízről, mind pedig az otthon melegéről távhő gondoskodik, ami egy felújított fürdőszobában még tovább tudja növelni a komfortérzetet. Az ingatlan jó elhelyezkedésének, valamint elosztásának köszönhetően befektetőknek, fiatal pároknak, illetve családosoknak egyaránt ideális választás lehet. Jöjjön és tekintsük meg együtt, ebben az ingatlanban nem fog csalódni. OTP Banki hátterünknek köszönhetően finanszírozási igényekben (pl. Otthon Start Program, Babaváró, Falusi CSOK, CSOK Plusz, Lakáshitel, Személyi kölcsön stb.), illetve biztosítások tekintetében is díjmentesen, soron kívüli ügyintézéssel segítem ügyfeleim! Az adásvételi szerződéshez igény esetén ügyvédet biztosítunk. Referenciaszám: M317297

Hirdetés feltöltve: 2025. 11. 29. Utoljára módosítva: 2025. 11. 29.

3 szobás panellakások ára Miskolcon

Ebből az összehasonlításból megtudhatod, hogyan viszonyul a lakás ára a környékbeli panellakások átlagos árához. Ez nem azt jelenti, hogy ennyivel olcsóbb vagy drágább, mint amennyit a lakás ér, hanem hogy ennyivel tér el a környékbeli átlagtól.

Ennek a m² ára
Miskolc m² ár
582 e Ft
642 e Ft 9%
Ennek az ára
Miskolc átlagár
35.5 M Ft m Ft
38.6 m Ft 8%

Az ingatlan elhelyezkedése

Cím: Miskolc, 1. emelet

Eladó panellakások a környékről

Eladó panellakás
Eladó panellakás

Miskolc, Diósgyőr, Árpád út

24.99 M Ft
2 szoba
51 m2
Eladó panellakás
Eladó panellakás

Sárospatak, Katona József utca

19.8 M Ft
2 szoba
54 m2
Eladó panellakás
Eladó panellakás

Miskolc, Avas Kelet városrész, Dankó Pista utca

31.9 M Ft
3 szoba
73 m2
Eladó panellakás
Eladó panellakás

Miskolc

21.99 M Ft
2 szoba
55 m2
Eladó panellakás
Eladó panellakás

Miskolc

32 M Ft
3 szoba
63 m2
Eladó panellakás
Eladó panellakás

Miskolc

39.8 M Ft
2 szoba
64 m2
Eladó panellakás
Eladó panellakás

Kazincbarcika

21.5 M Ft
2 szoba
52 m2
Eladó panellakás
Eladó panellakás

Miskolc

39.8 M Ft
2 szoba
64 m2
Eladó panellakás
Eladó panellakás

Miskolc

22.5 M Ft
1 + 1 szoba
35 m2
Eladó panellakás
Eladó panellakás

Miskolc

29.8 M Ft
2 szoba
55 m2
Eladó panellakás
Eladó panellakás

Miskolc

25.9 M Ft
2 szoba
51 m2
Eladó panellakás
Eladó panellakás

Miskolc, Diósgyőr, Árpád út

24.99 M Ft
2 szoba
51 m2
Eladó panellakás
Eladó panellakás

Miskolc

24.99 M Ft
2 szoba
51 m2
Eladó panellakás
Eladó panellakás

Sátoraljaújhely, Dózsa György utca

26 M Ft
2 szoba
54 m2
Eladó panellakás
Eladó panellakás

Miskolc

26.5 M Ft
2 szoba
55 m2
Eladó panellakás
Eladó panellakás

Miskolc, Soltész Nagy Kálmán

68.49 M Ft
4 + 1 szoba
119 m2
Eladó panellakás
Eladó panellakás

Miskolc, Vologda, Jókai Mór utca

44.9 M Ft
3 szoba
55 m2
Eladó panellakás
Eladó panellakás

Miskolc

32 M Ft
3 szoba
63 m2
Eladó panellakás
Eladó panellakás

Miskolc, Avas Dél városrész, Klapka György utca

29.8 M Ft
2 szoba
55 m2
Eladó panellakás
Eladó panellakás

Kazincbarcika

37.9 M Ft
3 + 1 szoba
87 m2
Eladó panellakás
Eladó panellakás

Sajószentpéter

14.49 M Ft
1 + 2 szoba
59 m2
Eladó panellakás
Eladó panellakás

Miskolc, Avas Dél városrész, Klapka György utca

29.8 M Ft
2 szoba
55 m2
Eladó panellakás
Eladó panellakás

Miskolc

34.99 M Ft
2 + 1 szoba
55 m2
Eladó panellakás
Eladó panellakás

Kazincbarcika

42 M Ft
4 szoba
114 m2

Falusi CSOK ingatlanok

Eladó családi ház
Eladó családi ház

Nyékládháza

75 M Ft
4 szoba
140 m2
Eladó családi ház
Eladó családi ház

Szigliget

299 M Ft
3 szoba
95 m2
Eladó téglalakás
Eladó téglalakás

Nagyharsány

22.5 M Ft
3 szoba
71 m2
Eladó ikerház
Eladó ikerház

Balatonakali

165 M Ft
4 szoba
138 m2
Eladó családi ház
Eladó családi ház

Törtel

10 M Ft
2 szoba
43 m2
Eladó családi ház
Eladó családi ház

Kamut

29 M Ft
3 szoba
100 m2
Eladó családi ház
Eladó családi ház

Segesd

3.9 M Ft
2 szoba
65 m2
Eladó családi ház
Eladó családi ház

Bócsa

68 M Ft
3 szoba
100 m2