Metrodom

Eladó panellakás
Miskolc, Belváros, Malomszög utca, 2. emelet

+ 11 kép 1/14
26 990 000 Ft26.99 M Ft 771 143 Ft/m2
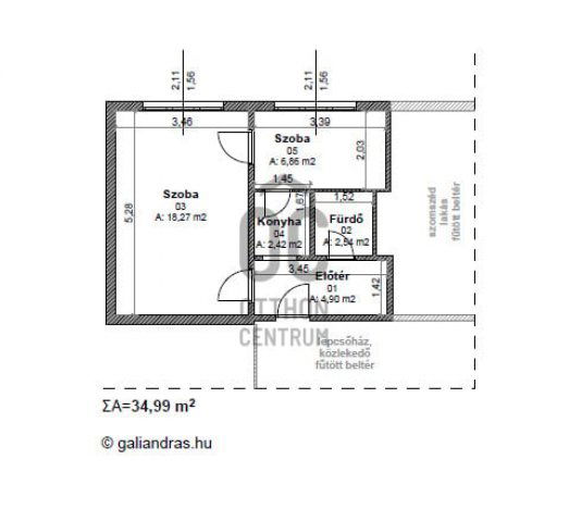
2 szoba
35 m2
2. emelet
építés éve:1980

Részletes adatok

Fűtés: Távfűtés
Közmű: Gáz, Villany, Csatorna
Energetikai besorolás: Nem adta meg a hirdető
Zenga Premier

Friss hirdetések, amiket nem találsz meg más ingatlankereső portálon.

Fedezd fel elsőként a Zenga Premier címkés eladó ingatlanokat!

További részletek a zenga.hu-n

Az OTP Bank lakáshitel ajánlataFizetett hirdetés

+36 70 435
Kocsis György
Otthon Centrum - Ózd

Érdekel az OTP Bank kedvezményes lakáshitel ajánlata? *

* A kérdésre „Igen” válasz bejelölése esetén, az „Üzenet küldése” gombra kattintva kijelentem, hogy az OTP Bank Nyrt. Adatkezelési tájékoztatójának tartalmát megismertem és tudomásul vettem.

Eladó panellakás leírása

Fedezd fel ezt a kivételes lehetőséget Miskolc belvárosában, ahol a modern életstílus és a kényelmes otthon találkozik! Ez a frissen felújított, 35 nm-es lakás tökéletes választás fiatal felnőttek számára, akik értékelik a városi élet adta előnyöket. A Malomszög utcában elhelyezkedő ingatlan igazi gyöngyszem, amely nemcsak világos tereivel, hanem csendes környezetével is elvarázsol. A lakásban két szoba található, amelyek tágasak és jól kihasználhatóak, így ideálisak lehetnek akár otthoni munkavégzésre, akár baráti összejövetelekre. A fürdőszobában a kád és a szaniterek is újak. A villamos hálózat és a vízhálózat is megújult. A burkolatok - laminált padló, járólap, fali csempe - szintén újak. A távfűtés egyedi mérés nélkül biztosítja a kellemes hőmérsékletet a hideg téli hónapokban is, így a lakás mindig otthonos marad. A környék ellátottsága kiváló, hiszen a közeli boltok, éttermek és szórakozási lehetőségek mindössze néhány lépésre találhatóak. A belvárosi elhelyezkedés lehetővé teszi, hogy a város legfontosabb intézményei, mint például a munkahelyek, iskolák és orvosi rendelők könnyen megközelíthetők legyenek. A közlekedés szempontjából is kitűnő, hiszen a tömegközlekedési eszközök, mint a buszok és villamosok, gyorsan és kényelmesen elérhetőek, így sosem kell aggódnod a közlekedés miatt. Ez a tehermentes ingatlan egy felkapott környéken helyezkedik el, ahol a fiatalok számára vonzó közösségi élet bontakozik ki. A csendes utcák pedig garantálják, hogy a nyugalom és a pihenés mindig elérhető legyen a mindennapokban. Az ingatlan állapota kiváló, így azonnal költözhető, nem kell hónapokat várnod a felújításokra. Ha egy olyan lakást keresel, amely ötvözi a modern kényelmet a városi élet nyújtotta lehetőségekkel, ne habozz! Ez a világos, belvárosi lakás a tökéletes választás számodra. Bármilyen kérdésed van, bátran keress meg, és segítek mindenben, amire szükséged van az ingatlanvásárlás során. Bízz bennem, és tedd meg az első lépést az új otthonod felé!
Az ingatlan az OC "Felező" portfóliójába tartozik! Bővebb információ az OC weboldalán olvasható!

Ez az ingatlan a "Felező csomag" megbízási portfólióhoz tartozik. Részletek az Otthon Centrum weboldalán.

Hirdetés feltöltve: 2025. 11. 16. Utoljára módosítva: 2025. 11. 16.

2 szobás panellakások ára Miskolcon

Ebből az összehasonlításból megtudhatod, hogyan viszonyul a lakás ára a környékbeli panellakások átlagos árához. Ez nem azt jelenti, hogy ennyivel olcsóbb vagy drágább, mint amennyit a lakás ér, hanem hogy ennyivel tér el a környékbeli átlagtól.

Ennek a m² ára
Belváros m² ár
Miskolc m² ár
771 e Ft
441 e Ft -75%
619 e Ft -25%
Ennek az ára
Belváros átlagár
Miskolc átlagár
26.99 M Ft m Ft
20.4 m Ft -32%
31.8 m Ft 15%

Az ingatlan elhelyezkedése

Cím: Miskolc, Belváros, Malomszög utca, 2. emelet

Eladó panellakások a környékről

Eladó panellakás
Eladó panellakás

Miskolc, Diósgyőr, Árpád út

24.99 M Ft
2 szoba
51 m2
Eladó panellakás
Eladó panellakás

Miskolc, Győri kapu

39.8 M Ft
2 szoba
64 m2
Eladó panellakás
Eladó panellakás

Miskolc, Soltész Nagy Kálmán

68.49 M Ft
4 + 1 szoba
119 m2
Eladó panellakás
Eladó panellakás

Miskolc, Soltész Nagy Kálmán

68.49 M Ft
4 + 1 szoba
119 m2
Eladó panellakás
Eladó panellakás

Miskolc, Avas Dél városrész, Klapka György utca

29.8 M Ft
2 szoba
55 m2
Eladó panellakás
Eladó panellakás

Miskolc

34.99 M Ft
2 + 1 szoba
55 m2
Eladó panellakás
Eladó panellakás

Miskolc

21.99 M Ft
2 szoba
55 m2
Eladó panellakás
Eladó panellakás

Miskolc, Avas Kelet városrész, Dankó Pista utca

31.9 M Ft
3 szoba
73 m2
Eladó panellakás
Eladó panellakás

Miskolc

24.99 M Ft
2 szoba
51 m2
Eladó panellakás
Eladó panellakás

Miskolc, Belváros, Szent István utca

25.9 M Ft
2 szoba
51 m2
Eladó panellakás
Eladó panellakás

Kazincbarcika

42 M Ft
4 szoba
114 m2
Eladó panellakás
Eladó panellakás

Sárospatak, Katona József utca

19.8 M Ft
2 szoba
54 m2
Eladó panellakás
Eladó panellakás

Miskolc

35.5 M Ft
2 szoba
55 m2
Eladó panellakás
Eladó panellakás

Miskolc, Avas Kelet városrész, Dankó Pista utca

31.9 M Ft
3 szoba
73 m2
Eladó panellakás
Eladó panellakás

Ózd

11.99 M Ft
3 szoba
64 m2
Eladó panellakás
Eladó panellakás

Miskolc

37.99 M Ft
2 + 1 szoba
73 m2
Eladó panellakás
Eladó panellakás

Sajószentpéter

14.49 M Ft
1 + 2 szoba
59 m2
Eladó panellakás
Eladó panellakás

Mezőkövesd

33 M Ft
2 + 2 szoba
73 m2
Eladó panellakás
Eladó panellakás

Kazincbarcika

21.5 M Ft
2 szoba
52 m2
Eladó panellakás
Eladó panellakás

Miskolc

26.5 M Ft
2 szoba
55 m2
Eladó panellakás
Eladó panellakás

Ózd

11.99 M Ft
3 szoba
64 m2
Eladó panellakás
Eladó panellakás

Miskolc

32 M Ft
3 szoba
63 m2
Eladó panellakás
Eladó panellakás

Miskolc, Vologda, Jókai Mór utca

44.9 M Ft
3 szoba
55 m2
Eladó panellakás
Eladó panellakás

Miskolc, Győri kapu

39.8 M Ft
2 szoba
64 m2

Falusi CSOK ingatlanok

Eladó panellakás
Eladó panellakás

Pétfürdő

49.9 M Ft
3 szoba
71 m2
Eladó családi ház
Eladó családi ház

Villány, Baross Gábor

130 M Ft
6 szoba
370 m2
Eladó ikerház
Eladó ikerház

Besnyő

79.6 M Ft
5 szoba
117 m2
Eladó családi ház
Eladó családi ház

Zengővárkony

35 M Ft
3 szoba
87 m2
Eladó családi ház
Eladó családi ház

Újkígyós

19.99 M Ft
2 + 1 szoba
72 m2
Eladó családi ház
Eladó családi ház

Dág, Petőfi Sándor utca

36.9 M Ft
4 szoba
105 m2
Eladó családi ház
Eladó családi ház

Bogács

79.5 M Ft
6 szoba
180 m2
Eladó családi ház
Eladó családi ház

Ásványráró

94.9 M Ft
6 szoba
180 m2