Astora Art House

Eladó panellakás
Kazincbarcika, 2. emelet

+ 10 kép 1/13
26 500 000 Ft26.5 M Ft 481 818 Ft/m2
2 szoba
55 m²
2. emelet
építés éve:1981

Részletes adatok

Állapot: Felújítandó
Fűtés: Távfűtés
Emelet: 2. emelet
Energetikai besorolás: Nem adta meg a hirdető

Az OTP Bank lakáshitel ajánlataFizetett hirdetés

+36 70 393
Czugh Péter
OTP IP Miskolc Corvin 1-3

Érdekel az OTP Bank kedvezményes lakáshitel ajánlata? *

* A kérdésre „Igen” válasz bejelölése esetén, az „Üzenet küldése” gombra kattintva kijelentem, hogy az OTP Bank Nyrt. Adatkezelési tájékoztatójának tartalmát megismertem és tudomásul vettem.

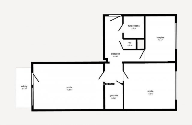
Eladó panellakás leírása

Kazincbarcika, Deák téren eladó egy távfűtéses, 55 nm-es, 2 szobás, erkélyes lakás, rendezett, négyemeletes épület második emeletén. Az ingatlan felújítandó állapotú, így kiváló lehetőséget kínál azok számára, akik saját ízlésük szerint szeretnék kialakítani új otthonukat vagy befektetésben gondolkodnak. A praktikus elrendezésű lakás két külön nyíló szobával rendelkezik, melyek jól alakítható életteret biztosítanak. Elhelyezkedése kiváló: a közvetlen közelben megtalálhatóak üzletek, élelmiszerboltok, gyógyszertár, iskola, óvoda, valamint buszmegálló is. A környéken parkok és zöldterületek is rendelkezésre állnak, amelyek kellemes kikapcsolódási lehetőséget nyújtanak a mindennapokban. Ez a lakás ideális választás lehet első otthonnak, fiatal pároknak, vagy akár befektetési célra is, hiszen a jó elhelyezkedés és az alakítható belső tér számos lehetőséget rejt magában.
OTP Banki hátterünknek köszönhetően finanszírozási igényekben (pl. Otthon Start Hitelprogram, Babaváró, CSOK Plusz, Lakáshitel, Személyi kölcsön stb.) soron kívüli ügyintézést biztosítunk. M324736

Az energetikai tanúsítvány készítése folyamatban van, amint rendelkezésre áll, úgy azzal a hirdetés frissítésre kerül.

Érdeklődni: Czugh Péter 70-3934954

Hirdetés feltöltve: 2026. 04. 02. Utoljára módosítva: 2026. 05. 10.

2 szobás panellakások ára Kazincbarcikán

Ebből az összehasonlításból megtudhatod, hogyan viszonyul a lakás ára a környékbeli panellakások átlagos árához. Ez nem azt jelenti, hogy ennyivel olcsóbb vagy drágább, mint amennyit a lakás ér, hanem hogy ennyivel tér el a környékbeli átlagtól.

Ennek a m² ára
Kazincbarcika m² ár
482 e Ft
464 e Ft -4%
Ennek az ára
Kazincbarcika átlagár
26.5 M Ft m Ft
33.3 m Ft 20%

Az ingatlan elhelyezkedése

Cím: Kazincbarcika, 2. emelet

Eladó panellakások a környékről

Kazincbarcika
Eladó panellakás

Kazincbarcika

27.9 M Ft
1 + 1 szoba
48 m²
Kazincbarcika
Eladó panellakás

Kazincbarcika

26.5 M Ft
2 szoba
55 m²
Kazincbarcika
Eladó panellakás

Kazincbarcika

26.5 M Ft
2 szoba
55 m²
Miskolc
Eladó panellakás

Miskolc

44.9 M Ft
3 szoba
55 m²
Kazincbarcika
Eladó panellakás

Kazincbarcika

46.8 M Ft
4 szoba
114 m²
Miskolc
Eladó panellakás

Miskolc

33.5 M Ft
1 + 2 szoba
54 m²
Miskolc, Hejőcsaba, Szalag utca
Eladó panellakás

Miskolc

31.45 M Ft
2 szoba
47 m²
Kazincbarcika
Eladó panellakás

Kazincbarcika

26.5 M Ft
2 szoba
55 m²
Kazincbarcika
Eladó panellakás

Kazincbarcika

26.5 M Ft
2 szoba
55 m²
Sátoraljaújhely
Eladó panellakás

Sátoraljaújhely

26 M Ft
2 szoba
54 m²
Kazincbarcika
Eladó panellakás

Kazincbarcika

46.8 M Ft
4 szoba
114 m²
Miskolc
Eladó panellakás

Miskolc

55.49 M Ft
2 + 1 szoba
63 m²
Miskolc
Eladó panellakás

Miskolc

44.9 M Ft
3 szoba
55 m²
Kazincbarcika
Eladó panellakás

Kazincbarcika

26.5 M Ft
2 szoba
55 m²
Kazincbarcika
Eladó panellakás

Kazincbarcika

30 M Ft
2 szoba
51 m²
Kazincbarcika
Eladó panellakás

Kazincbarcika

46.8 M Ft
4 szoba
114 m²
Kazincbarcika
Eladó panellakás

Kazincbarcika

46.8 M Ft
4 szoba
114 m²
Kazincbarcika
Eladó panellakás

Kazincbarcika

26.5 M Ft
2 szoba
55 m²
Miskolc
Eladó panellakás

Miskolc

21.5 M Ft
1 + 1 szoba
35 m²
Kazincbarcika
Eladó panellakás

Kazincbarcika

46.8 M Ft
4 szoba
114 m²
Kazincbarcika
Eladó panellakás

Kazincbarcika

46.8 M Ft
4 szoba
114 m²
Kazincbarcika
Eladó panellakás

Kazincbarcika

26.5 M Ft
2 szoba
55 m²
Kazincbarcika
Eladó panellakás

Kazincbarcika

26.5 M Ft
2 szoba
55 m²
Miskolc
Eladó panellakás

Miskolc

29.8 M Ft
2 szoba
55 m²

Falusi CSOK ingatlanok

Márianosztra
Eladó családi ház

Márianosztra

38 M Ft
4 szoba
75 m²
Balatonszepezd
Eladó családi ház

Balatonszepezd

299 M Ft
5 szoba
220 m²
Bag
Eladó családi ház

Bag

16.9 M Ft
6 szoba
160 m²
Zalaszentiván
Eladó ikerház

Zalaszentiván

54.99 M Ft
5 szoba
160 m²
Porva
Eladó családi ház

Porva

74.6 M Ft
3 szoba
115 m²
Balatonőszöd
Eladó családi ház

Balatonőszöd

72 M Ft
4 szoba
92 m²
Sásd
Eladó családi ház

Sásd

35.9 M Ft
4 + 1 szoba
71 m²
Törtel
Eladó családi ház

Törtel

32.5 M Ft
3 szoba
66 m²