Astora Márvány8

Eladó panellakás
Győr, Adyváros, Szigethy Attila, 2. emelet

+ 17 kép 1/20
47 800 000 Ft47.8 M Ft 901 887 Ft/m2
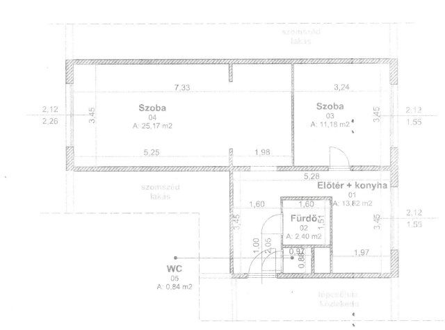
2 szoba
53 m2
2. emelet
építés éve:1971

Részletes adatok

Telekméret: 53 m2
Fűtés: Távfűtés
Közmű: Víz, Gáz, Villany, Csatorna, Szélessáv
Extrák: Lift
Energetikai besorolás: Nem adta meg a hirdető

Az OTP Bank lakáshitel ajánlataFizetett hirdetés

+36 20 584
Varga Zoltán
Rezidencia Ingatlan

Érdekel az OTP Bank kedvezményes lakáshitel ajánlata? *

* A kérdésre „Igen” válasz bejelölése esetén, az „Üzenet küldése” gombra kattintva kijelentem, hogy az OTP Bank Nyrt. Adatkezelési tájékoztatójának tartalmát megismertem és tudomásul vettem.

Eladó panellakás leírása

Eladó egy kiváló adottságokkal rendelkező második emeleti panellakás Győr Adyvárosban, mely ideális választás lehet családoknak vagy fiatal pároknak.

Az ingatlan alapterülete 53 négyzetméter, két szoba hallos kialakítású és jól kihasználható teret biztosít.

Az épület 1971-ben épült, az állapota jó, ugyan nem panelprogramos még, de az egész épületben ki lettek cserélve a strangok és a központi villanyhálózat. A lakásban műanyag nyílászárók vannak beépítve és a nappali ablakain redőny is van. A földszinten tartozik a lakáshoz egy ÖNÁLLÓ kb3nm nagyságú tároló.
A fűtést távfűtés biztosítja, a komfortfokozat összkomfortos, tehát minden szükséges kényelem adott. Az ingatlan bútorozott, gépesített és azonnal költözhető. Villanyhálózat eredeti azonban modern kapcsolótábla lett beépítve és Fi relé is.

Rendezett és tiszta otthon, kettő szobával és igényes konyhával valamint vizes blokkal, befektetésnek vagy saját otthonnak tökéletes lehet.
A parkolás utcán, de fizetős övezetben lehetséges, az ingatlan részben akadálymentesített, így különböző igényekhez is alkalmazkodik.

Az irányár 47 800 000 forint, amely a környék adottságait és az ingatlan értékét figyelembe véve kedvező lehetőséget kínál.

Ne hagyja ki ezt az ajánlatot, hiszen egy remek otthonra lelhet Győr szívében!

Hirdetés feltöltve: 2025. 10. 28. Utoljára módosítva: 2025. 12. 16.

2 szobás panellakások ára Győrött

Ebből az összehasonlításból megtudhatod, hogyan viszonyul a lakás ára a környékbeli panellakások átlagos árához. Ez nem azt jelenti, hogy ennyivel olcsóbb vagy drágább, mint amennyit a lakás ér, hanem hogy ennyivel tér el a környékbeli átlagtól.

Ennek a m² ára
Adyváros m² ár
Győr m² ár
902 e Ft
561 e Ft -61%
959 e Ft 6%
Ennek az ára
Adyváros átlagár
Győr átlagár
47.8 M Ft m Ft
29.4 m Ft -63%
51.6 m Ft 7%

Az ingatlan elhelyezkedése

Cím: Győr, Adyváros, Szigethy Attila, 2. emelet

Eladó panellakások a környékről

Eladó panellakás
Eladó panellakás

Győr

45.99 M Ft
2 szoba
53 m2
Eladó panellakás
Eladó panellakás

Győr

64.99 M Ft
3 szoba
68 m2
Eladó panellakás
Eladó panellakás

Győr, Adyváros, Földes Gábor utca

53.9 M Ft
2 szoba
55 m2
Eladó panellakás
Eladó panellakás

Győr

37 M Ft
1 + 1 szoba
47 m2
Eladó panellakás
Eladó panellakás

Győr

55.9 M Ft
3 szoba
62 m2
Eladó panellakás
Eladó panellakás

Győr

45.99 M Ft
2 szoba
53 m2
Eladó panellakás
Eladó panellakás

Győr

44.9 M Ft
2 szoba
55 m2
Eladó panellakás
Eladó panellakás

Győr

55.59 M Ft
3 szoba
62 m2
Eladó panellakás
Eladó panellakás

Győr

55.5 M Ft
3 + 1 szoba
67 m2
Eladó panellakás
Eladó panellakás

Mosonmagyaróvár, Móra Ferenc utca 17

64.631 M Ft
2 szoba
49 m2
Eladó panellakás
Eladó panellakás

Győr, Adyváros, Tihanyi Árpád út

52.9 M Ft
1 + 2 szoba
55 m2
Eladó panellakás
Eladó panellakás

Győr

56 M Ft
3 szoba
62 m2
Eladó panellakás
Eladó panellakás

Győr

55.5 M Ft
3 + 1 szoba
67 m2
Eladó panellakás
Eladó panellakás

Győr

44.9 M Ft
2 szoba
49 m2
Eladó panellakás
Eladó panellakás

Mosonmagyaróvár, Kiserdő utca

52 M Ft
3 + 1 szoba
67 m2
Eladó panellakás
Eladó panellakás

Győr

49.9 M Ft
2 szoba
53 m2
Eladó panellakás
Eladó panellakás

Győr

44.9 M Ft
2 szoba
49 m2
Eladó panellakás
Eladó panellakás

Győr

44.9 M Ft
2 szoba
55 m2
Eladó panellakás
Eladó panellakás

Győr

52.9 M Ft
2 szoba
55 m2
Eladó panellakás
Eladó panellakás

Győr

56 M Ft
3 szoba
62 m2
Eladó panellakás
Eladó panellakás

Győr

44.9 M Ft
2 szoba
55 m2
Eladó panellakás
Eladó panellakás

Győr, Belváros, Pálffy utca

64.9 M Ft
3 szoba
55 m2
Eladó panellakás
Eladó panellakás

Győr, Adyváros, Földes Gábor utca

53.9 M Ft
2 szoba
55 m2
Eladó panellakás
Eladó panellakás

Győr

37 M Ft
1 + 1 szoba
47 m2

Falusi CSOK ingatlanok

Eladó családi ház
Eladó családi ház

Sződ, Mártírok útja

73.4 M Ft
6 szoba
120 m2
Eladó családi ház
Eladó családi ház

Tiszaalpár

25.9 M Ft
3 szoba
100 m2
Eladó családi ház
Eladó családi ház

Kisdér

143.8 M Ft
4 szoba
205 m2
Eladó családi ház
Eladó családi ház

Tatárszentgyörgy

60.5 M Ft
7 szoba
305 m2
Eladó családi ház
Eladó családi ház

Csolnok

185 M Ft
5 szoba
224 m2
Eladó családi ház
Eladó családi ház

Újszilvás

23 M Ft
3 + 1 szoba
100 m2
Eladó családi ház
Eladó családi ház

Fajsz

25 M Ft
3 szoba
95 m2
Eladó családi ház
Eladó családi ház

Jakabszállás

69.99 M Ft
1 + 4 szoba
91 m2