Kedves Felhasználónk! Rendszerfrissítés miatt az oldalunk 2026. február 9-én 12 órától várhatóan 20 óráig nem lesz elérhető. Köszönjük megértésed!
City Pearl

Eladó panellakás
Debrecen, 9. emelet

+ 17 kép 1/20
61 900 000 Ft61.9 M Ft 871 831 Ft/m2
3 szoba
71 m2
9. emelet
építés éve:1970

Részletes adatok

Állapot: Átlagos
Fűtés: Távfűtés
Emelet: 9. emelet
Extrák: Lift
Energetikai besorolás: Nem adta meg a hirdető

Az OTP Bank lakáshitel ajánlataFizetett hirdetés

+36 20 213
Oláhné Németi Gréta
Debrecen Kürtös utca

Érdekel az OTP Bank kedvezményes lakáshitel ajánlata? *

* A kérdésre „Igen” válasz bejelölése esetén, az „Üzenet küldése” gombra kattintva kijelentem, hogy az OTP Bank Nyrt. Adatkezelési tájékoztatójának tartalmát megismertem és tudomásul vettem.

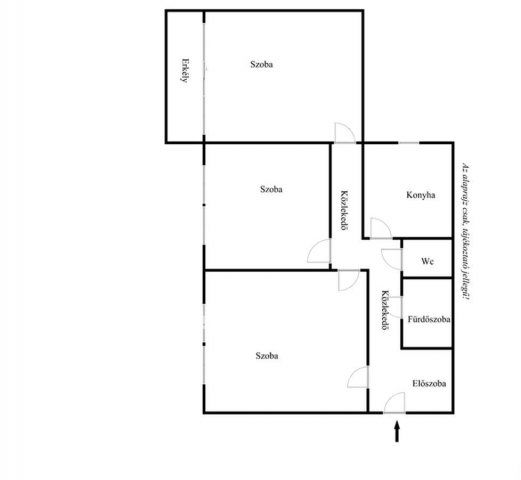
Eladó panellakás leírása

Debrecen belvárosában a Bethlen utcán, 3 szobás lakás eladó!

Debrecen egyik kedvelt, központi részén, a Bethlen utcán kínálunk megvételre egy tíz emeletes épület 9. emeletén lévő, világos, tágas elrendezésű lakást. A környék infrastruktúrája kiemelkedő: busz- és villamosmegállók néhány perc sétára, a közelben üzletek, iskolák, gyógyszertár, valamint a belváros minden fontos szolgáltatása megtalálható. A társasház rendezett, jó lakóközösséggel rendelkezik.

Az ingatlan főbb jellemzői:

* Alapterület: 71 m?
* Emelet: 9. emelet/nem zárószint/
* Fűtés / melegvíz: távfűtés; a melegvíz a fűtésrendszeren keresztül biztosított ? költséghatékony és kiszámítható rezsivel
* Közös költség: 12 070 Ft
* Elrendezés:
- 3 teljes értékű, különnyíló szoba
- konyha
- fürdőszoba
- külön WC
- előszoba
- közlekedő
* Erkély: az ingatlanhoz erkély tartozik, ahonnan hangulatos kilátás nyílik a Bethlen utcára innen akár a Virágkarnevál menete is megtekinthető
* Tárolás: a lakáshoz közös tárolóhelyiség is tartozik/3-4 lakás/tároló/
* Nyílászárók: fa nyílászárók
* Állapot: átlagos, utoljára átfogóbb korszerűsítés 2011-ben történt

Kinek ajánljuk?

Tökéletes választás mindazok számára, akik a belváros kényelmét, a kiváló közlekedést és a praktikus elrendezést szeretnék élvezni. Családoknak, egyetemistáknak és befektetőknek is ideális, mivel a környék keresett és a lakás könnyen bérbe adható.

Ha olyan lakást keres, amely értékálló, könnyen kiadható, ezt érdemes megnéznie! Az OTP Bankcsoport teljes körű ügyintézéssel áll az eladók és a vevők rendelkezésére.

Referencia szám: M318104

Hirdetés feltöltve: 2025. 12. 09. Utoljára módosítva: 2026. 01. 26.

3 szobás panellakások ára Debrecenben

Ebből az összehasonlításból megtudhatod, hogyan viszonyul a lakás ára a környékbeli panellakások átlagos árához. Ez nem azt jelenti, hogy ennyivel olcsóbb vagy drágább, mint amennyit a lakás ér, hanem hogy ennyivel tér el a környékbeli átlagtól.

Ennek a m² ára
Debrecen m² ár
872 e Ft
1000 e Ft 13%
Ennek az ára
Debrecen átlagár
61.9 M Ft m Ft
65.6 m Ft 6%

Az ingatlan elhelyezkedése

Cím: Debrecen, 9. emelet

Eladó panellakások a környékről

Eladó panellakás
Eladó panellakás

Debrecen

57.5 M Ft
3 szoba
64 m2
Eladó panellakás
Eladó panellakás

Debrecen

54.9 M Ft
3 szoba
61 m2
Eladó panellakás
Eladó panellakás

Debrecen

69.9 M Ft
2 szoba
57 m2
Eladó panellakás
Eladó panellakás

Debrecen

57.5 M Ft
3 szoba
64 m2
Eladó panellakás
Eladó panellakás

Debrecen

71.9 M Ft
3 szoba
71 m2
Eladó panellakás
Eladó panellakás

Debrecen

57.5 M Ft
3 szoba
64 m2
Eladó panellakás
Eladó panellakás

Debrecen, Újkert, Füredi út

65 M Ft
2 + 1 szoba
65 m2
Eladó panellakás
Eladó panellakás

Debrecen

79.9 M Ft
4 szoba
89 m2
Eladó panellakás
Eladó panellakás

Debrecen, Sestakert, Alkotmány

46.7 M Ft
1 szoba
42 m2
Eladó panellakás
Eladó panellakás

Debrecen

63.9 M Ft
1 + 2 szoba
57 m2
Eladó panellakás
Eladó panellakás

Debrecen

69.9 M Ft
2 szoba
57 m2
Eladó panellakás
Eladó panellakás

Debrecen

67.9 M Ft
3 szoba
73 m2
Eladó panellakás
Eladó panellakás

Debrecen, Tócóskert, Derék utca

54 M Ft
3 szoba
68 m2
Eladó panellakás
Eladó panellakás

Debrecen

71.9 M Ft
3 szoba
71 m2
Eladó panellakás
Eladó panellakás

Debrecen

57.5 M Ft
3 szoba
64 m2
Eladó panellakás
Eladó panellakás

Debrecen

61.5 M Ft
2 szoba
54 m2
Eladó panellakás
Eladó panellakás

Debrecen, Füredi út

69.9 M Ft
3 szoba
70 m2
Eladó panellakás
Eladó panellakás

Debrecen

62 M Ft
4 szoba
68 m2
Eladó panellakás
Eladó panellakás

Debrecen

76 M Ft
4 szoba
84 m2
Eladó panellakás
Eladó panellakás

Debrecen

63.9 M Ft
1 + 2 szoba
57 m2
Eladó panellakás
Eladó panellakás

Debrecen, Füredi út

69.9 M Ft
3 szoba
70 m2
Eladó panellakás
Eladó panellakás

Debrecen

61.5 M Ft
2 szoba
54 m2
Eladó panellakás
Eladó panellakás

Debrecen

71.9 M Ft
3 szoba
71 m2
Eladó panellakás
Eladó panellakás

Debrecen

59.9 M Ft
3 szoba
61 m2

Falusi CSOK ingatlanok

Eladó családi ház
Eladó családi ház

Zsámbok

49.9 M Ft
3 + 1 szoba
89 m2
Eladó családi ház
Eladó családi ház

Szigetcsép

110 M Ft
3 szoba
137 m2
Eladó családi ház
Eladó családi ház

Recsk

40 M Ft
3 + 1 szoba
130 m2
Eladó családi ház
Eladó családi ház

Vásárosdombó

14.99 M Ft
2 szoba
69 m2
Eladó családi ház
Eladó családi ház

Drágszél, Petőfi utca 12

5.58 M Ft
1 + 1 szoba
106 m2
Eladó családi ház
Eladó családi ház

Fülöpszállás

23.6 M Ft
3 szoba
115 m2
Eladó családi ház
Eladó családi ház

Monyoród

88 M Ft
3 szoba
90 m2
Eladó családi ház
Eladó családi ház

Véménd

59 M Ft
2 szoba
200 m2