River Life

Eladó panellakás
Debrecen, 2. emelet

+ 7 kép 1/10
62 500 000 Ft62.5 M Ft 1 157 407 Ft/m2
1 + 2 szoba
54 m2
2. emelet
építés éve:1989

Részletes adatok

Fűtés: Távfűtés
Extrák: Lift
Energetikai besorolás: Nem adta meg a hirdető

Az OTP Bank lakáshitel ajánlataFizetett hirdetés

+36 70 467
Ferencziné Molnár Ágnes Anikó
Openhouse Ingatlan Debrecen Hadházi út 1-3

Érdekel az OTP Bank kedvezményes lakáshitel ajánlata? *

* A kérdésre „Igen” válasz bejelölése esetén, az „Üzenet küldése” gombra kattintva kijelentem, hogy az OTP Bank Nyrt. Adatkezelési tájékoztatójának tartalmát megismertem és tudomásul vettem.

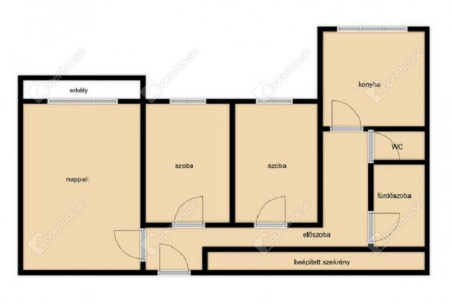
Eladó panellakás leírása

Debrecen Tócóskert városrészén társas házi lakás eladó!

- A lakás 54 nm-es felújított állapotú.
- A lakásban nappali, kettő szoba, konyha, előszoba, fürdőszoba, WC külön helységben található.
- A lakás nappali helysége erkély kapcsolatos, klímával felszerelt. Minden helység külön nyíló.
- A lakás bejárati ajtaja műanyag, a beltéri ajtó fából készültek.
- A lakás nyílászárói fa borításúak, redőnnyel, szúnyoghálóval felszereltek.
- A lakás villanyhálózata felújított.
- Belváros közelében keres? Nem szeretne felújítással foglalkozni?
- Ne habozzon, mert le marad! Hívjon, nézze meg!


Ha felkeltette érdeklődését ez az eladó debreceni társasházi lakás, vagy bármely más társasházi lakás és bővebb információt szeretne, keressen bizalommal.

Hivatkozási szám: #178696

Az Openhouse Debrecen Hadházi úti Ingatlaniroda tagjaként várom Önt az országos hálózatunk teljes kínálatával.

A társasházi lakás vásárláshoz hitelt igényelne? Ingyenes hitelközvetítéssel segít Önnek bankfüggetlen hitelszakértőnk.

További szolgáltatásainkkal (pl. értékbecslés, energetikai tanúsítvány, jogi háttér) is segítjük Önt a vásárlásban.

Az otthon érték. Az ingatlan üzlet.

Hirdetés feltöltve: 2025. 12. 04. Utoljára módosítva: 2025. 12. 04.

3 szobás panellakások ára Debrecenben

Ebből az összehasonlításból megtudhatod, hogyan viszonyul a lakás ára a környékbeli panellakások átlagos árához. Ez nem azt jelenti, hogy ennyivel olcsóbb vagy drágább, mint amennyit a lakás ér, hanem hogy ennyivel tér el a környékbeli átlagtól.

Ennek a m² ára
Debrecen m² ár
1157 e Ft
991 e Ft -17%
Ennek az ára
Debrecen átlagár
62.5 M Ft m Ft
65.1 m Ft 4%

Az ingatlan elhelyezkedése

Cím: Debrecen, 2. emelet

Eladó panellakások a környékről

Eladó panellakás
Eladó panellakás

Debrecen

65.9 M Ft
4 szoba
68 m2
Eladó panellakás
Eladó panellakás

Debrecen

61.9 M Ft
3 szoba
71 m2
Eladó panellakás
Eladó panellakás

Debrecen

57 M Ft
3 szoba
54 m2
Eladó panellakás
Eladó panellakás

Debrecen, Újkert, Borbíró tér

59 M Ft
2 + 1 szoba
62 m2
Eladó panellakás
Eladó panellakás

Debrecen

65.9 M Ft
4 szoba
68 m2
Eladó panellakás
Eladó panellakás

Debrecen

63.9 M Ft
1 + 2 szoba
57 m2
Eladó panellakás
Eladó panellakás

Debrecen

79.9 M Ft
4 szoba
89 m2
Eladó panellakás
Eladó panellakás

Debrecen

67.75 M Ft
3 szoba
71 m2
Eladó panellakás
Eladó panellakás

Debrecen, Burgundia, Csapó

62 M Ft
3 + 1 szoba
68 m2
Eladó panellakás
Eladó panellakás

Debrecen

57 M Ft
3 szoba
54 m2
Eladó panellakás
Eladó panellakás

Debrecen

69.9 M Ft
2 szoba
57 m2
Eladó panellakás
Eladó panellakás

Debrecen

69 M Ft
4 szoba
68 m2
Eladó panellakás
Eladó panellakás

Debrecen

69.9 M Ft
2 szoba
57 m2
Eladó panellakás
Eladó panellakás

Debrecen, Burgundia, Csapó

62 M Ft
3 + 1 szoba
68 m2
Eladó panellakás
Eladó panellakás

Debrecen

58 M Ft
3 szoba
61 m2
Eladó panellakás
Eladó panellakás

Debrecen

79.9 M Ft
4 szoba
89 m2
Eladó panellakás
Eladó panellakás

Debrecen

63.9 M Ft
1 + 2 szoba
57 m2
Eladó panellakás
Eladó panellakás

Debrecen

79.9 M Ft
4 szoba
89 m2
Eladó panellakás
Eladó panellakás

Debrecen

63.9 M Ft
1 + 2 szoba
57 m2
Eladó panellakás
Eladó panellakás

Debrecen

63.9 M Ft
1 + 2 szoba
57 m2
Eladó panellakás
Eladó panellakás

Debrecen, Füredi út

69.9 M Ft
3 szoba
70 m2
Eladó panellakás
Eladó panellakás

Debrecen

61.9 M Ft
3 szoba
71 m2
Eladó panellakás
Eladó panellakás

Debrecen

61.9 M Ft
3 szoba
71 m2
Eladó panellakás
Eladó panellakás

Debrecen

61.9 M Ft
3 szoba
71 m2

Falusi CSOK ingatlanok

Eladó ikerház
Eladó ikerház

Táborfalva

49.9 M Ft
4 szoba
54 m2
Eladó családi ház
Eladó családi ház

Tápióság

17 M Ft
1 szoba
44 m2
Eladó családi ház
Eladó családi ház

Jákfa

14.4 M Ft
3 szoba
70 m2
Eladó családi ház
Eladó családi ház

Elek

89.9 M Ft
5 szoba
274 m2
Eladó családi ház
Eladó családi ház

Bugac

55 M Ft
3 szoba
90 m2
Eladó családi ház
Eladó családi ház

Nagybörzsöny

79.9 M Ft
4 szoba
149 m2
Eladó családi ház
Eladó családi ház

Kamut

29 M Ft
3 szoba
100 m2
Eladó családi ház
Eladó családi ház

Vaskút

64 M Ft
5 szoba
180 m2