River Life

Eladó panellakás
Budapest, XV. kerület, 2. emelet

61 999 000 Ft61.999 M Ft 1 127 255 Ft/m2
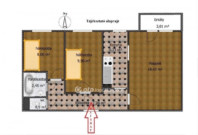
1 + 2 szoba
55 m²
2. emelet
építés éve:1983

Részletes adatok

Állapot: Felújítandó
Fűtés: Házközponti
Emelet: 2. emelet
Energetikai besorolás: E

Az OTP Bank lakáshitel ajánlataFizetett hirdetés

+36 70 345
Hován Sándor
referens

Érdekel az OTP Bank kedvezményes lakáshitel ajánlata? *

* A kérdésre „Igen” válasz bejelölése esetén, az „Üzenet küldése” gombra kattintva kijelentem, hogy az OTP Bank Nyrt. Adatkezelési tájékoztatójának tartalmát megismertem és tudomásul vettem.

Eladó panellakás leírása

Kertvárosi nyugalom, élhető tér - saját ízlésére formálható otthon Rákospalotán
Rákospalota-Kertváros részen kínálunk megvételre egy 55 négyzetméteres, nappali + 2 hálószobás, erkélyes lakást, amely kiváló választás lehet családoknak vagy azoknak, akik szeretnének egy értékálló ingatlant saját elképzelésük szerint kialakítani.
Ezen a környéken ritkaságnak számít a hasonló adottságú, eladó lakás, NE MARADJON LE RÓLA!
Egy folyamatosan karbantartott, jó állapotú társasházban található ez a mindössze másfél emeletnyi lépcsőzéssel elérhető otthon.
- Élhető elrendezés, valódi térérzet:
Az ingatlan egyik előnye a praktikus, különnyíló elrendezés:
- nappali + 2 hálószoba
- világos, ablakos konyha
- külön fürdőszoba
- külön WC
- nappaliból nyíló, 3 m2-es nyugati tájolású erkély

A nyugati fekvésnek köszönhetően a lakás délutánonként napfényes, meleg hangulatú. Az erkély ideális egy kávéra, esti beszélgetésre vagy egy csendes pihenésre.

Lehetőség azoknak, akik értéket látnak benne
Az ingatlan felújítandó állapotú, így új tulajdonosa teljes mértékben saját igényei szerint alakíthatja ki.
Egy tisztasági festéssel és burkolatcserével akár rövid időn belül költözhetővé tehető, hosszabb távon pedig a gépészeti és nyílászáró korszerűsítés tovább növelheti az értékét.
Ez nem kompromisszum - ez lehetőség.

Kiváló közlekedés, élhető környezet
Sétatávolságra több buszjárat is elérhető, melyekkel közvetlenül megközelíthető:
- Újpest-Központ (170)
- Bosnyák tér (124, 125)
- Mexikói út (225)
- valamint a Budapest-Nyugati - Vác vasútvonal állomásai
Az éjszakai közlekedést a 950-es busz biztosítja.
A parkolás a környéken ingyenes.

Családbarát környezet
Óvoda, játszótér és általános iskola a közelben, biztonságos, kertvárosi hangulatú utcák, nyugodt lakókörnyezet - ideális választás gyermekes családok számára is.

Az ingatlan megfelel az Otthon_Start_Program (Fix3% Lakáshitel Program) feltételeinek.

Felkeltette érdeklődését az általam kínált ingatlan?
Keressen bizalommal!

61999000 Ft

Referencia szám: M322616

Hirdetés feltöltve: 2026. 03. 17.

3 szobás panellakások ára Budapesten

Ebből az összehasonlításból megtudhatod, hogyan viszonyul a lakás ára a környékbeli panellakások átlagos árához. Ez nem azt jelenti, hogy ennyivel olcsóbb vagy drágább, mint amennyit a lakás ér, hanem hogy ennyivel tér el a környékbeli átlagtól.

Ennek a m² ára
XV. kerület m² ár
Budapest m² ár
1127 e Ft
1116 e Ft -1%
1219 e Ft 8%
Ennek az ára
XV. kerület átlagár
Budapest átlagár
61.999 M Ft m Ft
71.7 m Ft 14%
76.1 m Ft 18%

Az ingatlan elhelyezkedése

Cím: Budapest, XV. kerület, 2. emelet

Eladó ingatlanok a környékről

XV. kerület
Eladó panellakás

Budapest, XV. kerület

68 M Ft
2 szoba
52 m²
XIII. kerület, Vizafogó, Turóc utca 10
Eladó téglalakás

Budapest, XIII. kerület

147.525 M Ft
3 szoba
64 m²
V. kerület, Belváros, Bástya utca
Eladó téglalakás

Budapest, V. kerület

139 M Ft
2 + 1 szoba
71 m²
XV. kerület
Eladó panellakás

Budapest, XV. kerület

79.9 M Ft
3 szoba
71 m²
XI. kerület, Kelenföld, Budafoki út 64
Eladó téglalakás

Budapest, XI. kerület

199.74 M Ft
4 szoba
86 m²
XV. kerület, Újpalota
Eladó panellakás

Budapest, XV. kerület

82 M Ft
3 szoba
71 m²
XV. kerület
Eladó panellakás

Budapest, XV. kerület

78.9 M Ft
3 + 1 szoba
69 m²
XIII. kerület, Vizafogó, Turóc utca 10
Eladó téglalakás

Budapest, XIII. kerület

138.285 M Ft
3 szoba
64 m²
XIII. kerület, Vizafogó, Turóc utca 10
Eladó téglalakás

Budapest, XIII. kerület

133.98 M Ft
3 szoba
63 m²
XV. kerület, Újpalota
Eladó panellakás

Budapest, XV. kerület

78.9 M Ft
4 szoba
69 m²
XX. kerület, Erzsébetfalva, Vörösmarty
Eladó panellakás

Budapest, XX. kerület

50 M Ft
2 szoba
50 m²
XIII. kerület, Vizafogó, Turóc utca 10
Eladó téglalakás

Budapest, XIII. kerület

145.845 M Ft
3 szoba
72 m²
XI. kerület, Kelenföld, Budafoki út 64
Eladó téglalakás

Budapest, XI. kerület

84.525 M Ft
2 szoba
41 m²
XV. kerület
Eladó panellakás

Budapest, XV. kerület

68 M Ft
2 szoba
52 m²
XV. kerület, Újpalota
Eladó panellakás

Budapest, XV. kerület

78.9 M Ft
3 + 1 szoba
69 m²
XV. kerület
Eladó panellakás

Budapest, XV. kerület

68 M Ft
2 szoba
52 m²
XV. kerület, Rákospalota, Fő út
Eladó üzlethelyiség

Budapest, XV. kerület

0.2 M Ft
2 szoba
66 m²
XIII. kerület, Vizafogó, Turóc utca 10
Eladó téglalakás

Budapest, XIII. kerület

96.915 M Ft
2 szoba
47 m²
XXI. kerület, Csillagtelep, Kossuth Lajos utca
Eladó panellakás

Budapest, XXI. kerület

55.9 M Ft
2 szoba
52 m²
XV. kerület
Eladó panellakás

Budapest, XV. kerület

68 M Ft
2 szoba
52 m²
XIII. kerület, Vizafogó, Turóc utca 10
Eladó téglalakás

Budapest, XIII. kerület

145.11 M Ft
3 szoba
72 m²
XV. kerület
Eladó panellakás

Budapest, XV. kerület

79.9 M Ft
3 szoba
71 m²
XV. kerület
Eladó panellakás

Budapest, XV. kerület

64.9 M Ft
3 szoba
61 m²
XIII. kerület, Vizafogó, Turóc utca 10
Eladó téglalakás

Budapest, XIII. kerület

150.57 M Ft
3 szoba
72 m²

Falusi CSOK ingatlanok

Tésenfa, Kossuth utca 23/a
Eladó családi ház

Tésenfa

5.55 M Ft
1 + 1 szoba
109 m²
Somogyhárságy
Eladó családi ház

Somogyhárságy

183.75 M Ft
5 szoba
250 m²
Balatonszemes
Eladó téglalakás

Balatonszemes

91.5 M Ft
2 szoba
60 m²
Nagyszentjános
Eladó téglalakás

Nagyszentjános

74.9 M Ft
4 szoba
117 m²
Táborfalva
Eladó családi ház

Táborfalva

36.9 M Ft
1 + 2 szoba
89 m²
Kőtelek
Eladó családi ház

Kőtelek

25 M Ft
2 szoba
90 m²
Ceglédbercel, Aranyhegy utca
Eladó családi ház

Ceglédbercel

114.99 M Ft
5 szoba
133 m²
Nyáregyháza
Eladó családi ház

Nyáregyháza

114.99 M Ft
7 szoba
267 m²