Astora Olive Club House

Eladó panellakás
Budapest, XIX. kerület, Kispest, Hunyadi utca, Ikerház

+ 16 kép 1/19
57 800 000 Ft57.8 M Ft 1 111 538 Ft/m2
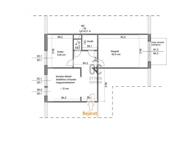
3 szoba
52 m2
Ikerház
építés éve:1981

Részletes adatok

Fűtés: Távfűtés
Emelet: 2. emelet
Közmű: Gáz, Villany, Csatorna
Energetikai besorolás: Nem adta meg a hirdető

Az OTP Bank lakáshitel ajánlataFizetett hirdetés

+36 70 465
Polgár Péter
referens

Érdekel az OTP Bank kedvezményes lakáshitel ajánlata? *

* A kérdésre „Igen” válasz bejelölése esetén, az „Üzenet küldése” gombra kattintva kijelentem, hogy az OTP Bank Nyrt. Adatkezelési tájékoztatójának tartalmát megismertem és tudomásul vettem.

Eladó panellakás leírása

Amennyiben saját ízlére alakítható lakást keresel, akkor figyelmedbe ajánlom ezt az 52 nm-es, tulajdoni lapon háromszobás, valójában nagy étkezőkonyhás kétszobás lakást, Budapest 19. kerületében, Kispest szívében, a Hunyadi utcában.
Az ingatlan felújítandó állapotban van, így lehetőséged nyílik arra, hogy saját ízlésed szerint alakítsd ki, miközben a piacon való értékét is növelheted. A lakás világos és tágas és nappali kapcsolatos erkélyen egy csésze kávé mellett élvezheted a napsütést. A fűtés távfűtéssel megoldott, egyedi mérés nélkül, ami kényelmes és gazdaságos megoldás a hideg hónapokban, klíma gondoskodik a nappaliban a forró napokban.
Kispest kedvelt városrész, ahol a mindennapi élethez szükséges összes szolgáltatás könnyen elérhető. A környék csendes, biztonságos, ideális választás családoknak és fiatal pároknak egyaránt. A közlekedési lehetőségek is kiválóak: a közelben található buszmegállók és a metróállomás gyors és kényelmes elérhetőséget biztosítanak Budapest belvárosához.
Az ingatlan tehermentes, így gyorsen birtokba vehető, ami különösen vonzó lehet a befektetők számára is. Kispest számos zöld területtel büszkélkedhet, így a természet kedvelői is megtalálják a számításaikat. A környéken több iskola, óvoda és bevásárlóközpont található, így minden korosztály számára ideális választás. A közeli parkok és játszóterek pedig lehetőséget biztosítanak a szabadidő eltöltésére, ami tovább növeli az ingatlan vonz erejét. Ha érdekel ez a kiváló befektetési lehetőség, ne habozz, keress bizalommal! Szívesen válaszolok a kérdéseidre, és segítek a vásárlási folyamatban, hogy a lehető legjobb döntést hozhasd meg.
Segítséget nyújtunk a vásárláshoz pénzügyi szakembereink bankfüggetlen pénzügyi termékkínálatával, valamint ingatlan szakjogászunk biztosítja a problémamentes vásárlást.

akár #OSP Otthon Start Program hitellel is megvásárolható

Ez az ingatlan a "Felező csomag" megbízási portfólióhoz tartozik. Részletek az Otthon Centrum weboldalán.

Hirdetés feltöltve: 2025. 11. 10. Utoljára módosítva: 2026. 01. 13.

3 szobás panellakások ára Budapesten

Ebből az összehasonlításból megtudhatod, hogyan viszonyul a lakás ára a környékbeli panellakások átlagos árához. Ez nem azt jelenti, hogy ennyivel olcsóbb vagy drágább, mint amennyit a lakás ér, hanem hogy ennyivel tér el a környékbeli átlagtól.

Ennek a m² ára
Kispest m² ár
XIX. kerület m² ár
Budapest m² ár
1112 e Ft
1225 e Ft 9%
1216 e Ft 9%
1180 e Ft 6%
Ennek az ára
Kispest átlagár
XIX. kerület átlagár
Budapest átlagár
57.8 M Ft m Ft
66.5 m Ft 13%
66.3 m Ft 13%
74.6 m Ft 23%

Az ingatlan elhelyezkedése

Cím: Budapest, XIX. kerület, Kispest, Hunyadi utca, Ikerház

Eladó ingatlanok a környékről

Eladó panellakás
Eladó panellakás

XIX. kerület, Kispest

73.4 M Ft
1 + 2 szoba
53 m2
Eladó panellakás
Eladó panellakás

XIX. kerület

57.99 M Ft
2 + 1 szoba
53 m2
Eladó panellakás
Eladó panellakás

XIX. kerület

65 M Ft
1 + 2 szoba
59 m2
Eladó téglalakás
Eladó téglalakás

VIII. kerület, Palotanegyed, Rákóczi út

185 M Ft
5 szoba
121 m2
Eladó téglalakás
Eladó téglalakás

VII. kerület, Belső Erzsébetváros, Erzsébet körút

89.9 M Ft
1 + 1 szoba
71 m2
Eladó téglalakás
Eladó téglalakás

VI. kerület, Külső Terézváros, Szív utca

119.5 M Ft
3 szoba
94 m2
Eladó panellakás
Eladó panellakás

XIX. kerület, Kispest

64.9 M Ft
3 szoba
57 m2
Eladó panellakás
Eladó panellakás

XIX. kerület

73.4 M Ft
1 + 2 szoba
53 m2
Eladó panellakás
Eladó panellakás

XIX. kerület

73.4 M Ft
1 + 2 szoba
53 m2
Eladó téglalakás
Eladó téglalakás

XIV. kerület, Kiszugló, Kövér Lajos utca

168 M Ft
3 + 1 szoba
84 m2
Eladó téglalakás
Eladó téglalakás

XIII. kerület

59.9 M Ft
1 szoba
30 m2
Eladó panellakás
Eladó panellakás

XIX. kerület

73.4 M Ft
1 + 2 szoba
53 m2
Eladó panellakás
Eladó panellakás

XIX. kerület, Kispest

65.9 M Ft
1 + 2 szoba
53 m2
Eladó panellakás
Eladó panellakás

XIX. kerület

51.9 M Ft
1 szoba
27 m2
Eladó családi ház
Eladó családi ház

XVIII. kerület

149.99 M Ft
4 szoba
148 m2
Eladó panellakás
Eladó panellakás

XIX. kerület, Kispest

73.4 M Ft
1 + 2 szoba
53 m2
Eladó panellakás
Eladó panellakás

XIX. kerület

73.4 M Ft
1 + 2 szoba
53 m2
Eladó téglalakás
Eladó téglalakás

XIII. kerület, Angyalföld, Fiastyúk utca

39.9 M Ft
1 + 1 szoba
34 m2
Eladó téglalakás
Eladó téglalakás

XVI. kerület, Cinkota

85 M Ft
3 szoba
67 m2
Eladó téglalakás
Eladó téglalakás

VI. kerület, Külső Terézváros, Szófia utca

112.9 M Ft
4 szoba
103 m2
Eladó családi ház
Eladó családi ház

IV. kerület

52.9 M Ft
2 szoba
47 m2
Eladó téglalakás
Eladó téglalakás

VIII. kerület

42.6 M Ft
1 szoba
32 m2
Eladó téglalakás
Eladó téglalakás

III. kerület, Óbuda, Szomolnok utca

89.9 M Ft
2 + 2 szoba
96 m2
Eladó téglalakás
Eladó téglalakás

XIV. kerület

69.9 M Ft
2 szoba
45 m2

Falusi CSOK ingatlanok

Eladó családi ház
Eladó családi ház

Lőkösháza

12.5 M Ft
2 szoba
63 m2
Eladó családi ház
Eladó családi ház

Rédics

65.027 M Ft
3 szoba
180 m2
Eladó családi ház
Eladó családi ház

Somogyhárságy

111.65 M Ft
4 szoba
330 m2
Eladó családi ház
Eladó családi ház

Mezőzombor

19.99 M Ft
3 szoba
91 m2
Eladó téglalakás
Eladó téglalakás

Fertőszentmiklós

52.2 M Ft
3 szoba
89 m2
Eladó családi ház
Eladó családi ház

Szederkény

107.9 M Ft
6 szoba
224 m2
Eladó családi ház
Eladó családi ház

Somogygeszti

38.6 M Ft
3 + 1 szoba
98 m2
Eladó családi ház
Eladó családi ház

Újlengyel

108 M Ft
3 szoba
80 m2