Eladó panellakás
Budapest, XIX. kerület, 3. emelet

+ 17 kép 1/20
64 900 000 Ft64.9 M Ft 968 657 Ft/m2
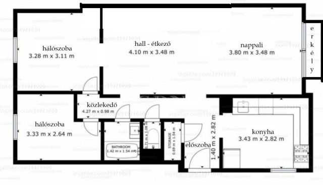
2 + 1 szoba
67 m2
3. emelet
építés éve:1979

Részletes adatok

Állapot: Felújítandó
Fűtés: Távfűtés
Energetikai besorolás: Nem adta meg a hirdető

Az OTP Bank lakáshitel ajánlataFizetett hirdetés

+36 30 338
Gombár János
referens

Érdekel az OTP Bank kedvezményes lakáshitel ajánlata? *

* A kérdésre „Igen” válasz bejelölése esetén, az „Üzenet küldése” gombra kattintva kijelentem, hogy az OTP Bank Nyrt. Adatkezelési tájékoztatójának tartalmát megismertem és tudomásul vettem.

Eladó panellakás leírása

XIX. Kispesti lakótelepen, 4 emeletes szigetelt panel házban, 67 nm-es, 2 + 1 fél szobás, erkélyes FELÚJÍTANDÓ panel lakás eladó.

Az épület átesett a panel programon!
A lakás 1979-es építéskori állapotban van, tehát felújítandó.
A nyílászárókat 2010-ben műanyagra cserélték.
A radiátorok már szintén nem az eredetiek.
A lakás, K-Ny-i fekvésének köszönhetően, világos.
A fürdőszoba és a WC külön helyiségben kapott helyet.
A nappali az Ady Endre út felé néz, a két hálószoba az épület mögötti csendes parkra.

Az ingatlan tehermentes, azonnal birtokba vehető!

Hitelre vásárló ügyfeleinknek teljeskörű, ingyenes, bank semleges ügyintézéssel állunk rendelkezésére. Irodánk ügyvédje pedig kedvező díjszabással vállalja az adásvételi szerződés elkészítését.
Amennyiben még el kell adnia ingatlanát, kérem, tiszteljen meg bizalmával és kérje, nagy tapasztalattal rendelkező, az aktuális árakkal tisztában lévő, irodánk ajánlatát.

B.Zs. ...TOVÁBBI, TÖBBEZRES INGATLAN KÍNÁLAT: www.gdn-ingatlan.hu - GDN azonosító: 388139

Hirdetés feltöltve: 2025. 10. 06. Utoljára módosítva: 2025. 10. 06.

3 szobás panellakások ára Budapesten

Ebből az összehasonlításból megtudhatod, hogyan viszonyul a lakás ára a környékbeli panellakások átlagos árához. Ez nem azt jelenti, hogy ennyivel olcsóbb vagy drágább, mint amennyit a lakás ér, hanem hogy ennyivel tér el a környékbeli átlagtól.

Ennek a m² ára
XIX. kerület m² ár
Budapest m² ár
969 e Ft
1103 e Ft 12%
1156 e Ft 16%
Ennek az ára
XIX. kerület átlagár
Budapest átlagár
64.9 M Ft m Ft
64.4 m Ft -1%
74.4 m Ft 13%

Az ingatlan elhelyezkedése

Cím: Budapest, XIX. kerület, 3. emelet

Eladó ingatlanok a környékről

Eladó panellakás
Eladó panellakás

XIX. kerület

56 M Ft
1 + 2 szoba
59 m2
Eladó családi ház
Eladó családi ház

XII. kerület

1408.896 M Ft
6 szoba
534 m2
Eladó panellakás
Eladó panellakás

XI. kerület, Kelenföld, Rátz László utca

106 M Ft
3 szoba
65 m2
Eladó panellakás
Eladó panellakás

XIX. kerület

56 M Ft
1 + 2 szoba
59 m2
Eladó téglalakás
Eladó téglalakás

XIII. kerület

48.5 M Ft
1 szoba
24 m2
Eladó panellakás
Eladó panellakás

XIX. kerület, Kispest

56 M Ft
1 + 2 szoba
59 m2
Eladó panellakás
Eladó panellakás

IV. kerület

75.5 M Ft
3 szoba
59 m2
Eladó panellakás
Eladó panellakás

XIX. kerület, Kispest

56 M Ft
1 + 2 szoba
59 m2
Eladó panellakás
Eladó panellakás

XIX. kerület, Kispest, Nagysándor József utca

56 M Ft
1 + 2 szoba
59 m2
Eladó panellakás
Eladó panellakás

XIX. kerület, Kispest

64.9 M Ft
3 szoba
60 m2
Eladó panellakás
Eladó panellakás

XIX. kerület, Kispest

64.9 M Ft
3 szoba
60 m2
Eladó panellakás
Eladó panellakás

XIX. kerület

56 M Ft
1 + 2 szoba
59 m2
Eladó téglalakás
Eladó téglalakás

VII. kerület

72 M Ft
2 + 2 szoba
54 m2
Eladó téglalakás
Eladó téglalakás

VII. kerület

83 M Ft
2 szoba
47 m2
Eladó téglalakás
Eladó téglalakás

IX. kerület

57 M Ft
1 szoba
35 m2
Eladó téglalakás
Eladó téglalakás

XVI. kerület

100.5 M Ft
4 szoba
70 m2
Eladó panellakás
Eladó panellakás

XIX. kerület

59.9 M Ft
2 + 1 szoba
53 m2
Eladó panellakás
Eladó panellakás

XIX. kerület

65 M Ft
1 + 2 szoba
59 m2
Eladó panellakás
Eladó panellakás

XV. kerület

74.99 M Ft
3 szoba
71 m2
Eladó téglalakás
Eladó téglalakás

XVIII. kerület, Havannatelep, Baross utca

59.9 M Ft
2 szoba
55 m2
Eladó téglalakás
Eladó téglalakás

VI. kerület

122 M Ft
1 + 1 szoba
41 m2
Eladó panellakás
Eladó panellakás

XIX. kerület, Kispest

65 M Ft
1 + 2 szoba
59 m2
Eladó panellakás
Eladó panellakás

XIX. kerület

56 M Ft
1 + 2 szoba
59 m2
Eladó panellakás
Eladó panellakás

XIX. kerület

56 M Ft
1 + 2 szoba
59 m2

Falusi CSOK ingatlanok

Eladó családi ház
Eladó családi ház

Szalmatercs

29.5 M Ft
2 szoba
78 m2
Eladó téglalakás
Eladó téglalakás

Hegyeshalom

35 M Ft
43 m2
Eladó családi ház
Eladó családi ház

Homokmégy

15.9 M Ft
2 + 1 szoba
78 m2
Eladó családi ház
Eladó családi ház

Fonyód

79.9 M Ft
7 szoba
149 m2
Eladó családi ház
Eladó családi ház

Örkény

29.9 M Ft
3 szoba
106 m2
Eladó családi ház
Eladó családi ház

Vácegres

28 M Ft
1 + 3 szoba
44 m2
Eladó családi ház
Eladó családi ház

Rédics

51 M Ft
3 szoba
107 m2
Eladó családi ház
Eladó családi ház

Hernádnémeti

19.9 M Ft
2 szoba
62 m2