Eladó panellakás
Budapest, XIX. kerület, 7. emelet

+ 6 kép 1/9
76 000 000 Ft76 M Ft 1 433 962 Ft/m2
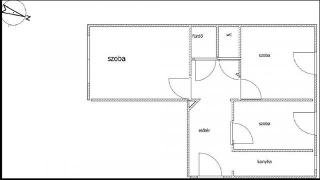
2 + 1 szoba
53 m2
7. emelet
építés éve:1990

Részletes adatok

Állapot: Felújított
Fűtés: Távfűtés
Extrák: Lift
Energetikai besorolás: Nem adta meg a hirdető

Az OTP Bank lakáshitel ajánlataFizetett hirdetés

+36 70 790
Schuszter Tamás
OTPIP I. kerület Zsolt utcai iroda

Érdekel az OTP Bank kedvezményes lakáshitel ajánlata? *

* A kérdésre „Igen” válasz bejelölése esetén, az „Üzenet küldése” gombra kattintva kijelentem, hogy az OTP Bank Nyrt. Adatkezelési tájékoztatójának tartalmát megismertem és tudomásul vettem.

Eladó panellakás leírása

Eladó ******Kispest*****3 szobás lakás****3%- os hitel!!!!

Eladásra kínálok Kispest szívében, egy 53 m2-es, 2 +1 szobás, loggiás ,7.emeleti világos lakást!
Gyönyörűen felújított, IKEA bútorokkal ízlésesen berendezett, modern burkolatokkal, új konyhabútorral és berendezési tárgyakkal ellátott, igényes otthon! Délkeleti fekvésű a nagyobb szoba, de a két kisebb szoba délnyugati, mindegyiken ablak, így a lakás mindig fényben úszik.
A loggia a kisgyermekek miatt védőhálózott. Külön wc és fürdőszoba van. A konyhában a tűzhely és a sütő is villany,szintén Ikeás.
A beépített gardróbok, cipőtárolók, a nappali bútor a leendő vevő igénye szerint mind maradhatnak,a tulajdonossal egyeztetve megvásárolhatók.
A környék telis tele óvodákkal, bölcsikkel, játszótérrel, parkokkal, bevásárlási lehetőségekkel.
A házban Telekom és Digi is elérhető.
A közös költség 27.000,-a vízzel és szeméttel, jelenleg extra csomaggal,extra fogyasztási lehetőséggel. 4 vízórával ellátott. Panel program folyamatban. Fűtés, villany kb.22.000,-.
Csendes, békés ház, jó szomszédok!!

Remek lehetőség kisgyermekeseknek, home officeban dolgozóknak, új otthont keresőknek, kiscsaládosoknak,de befektetésnek sem utolsó!! A beköltözés gyorsan megoldható!

Teljeskörű hitel ügyintézéssel és ügyvédi háttérrel biztosítjuk a leendő tulajdonosok gyors, minden igényt kielégítő ingatlan vásárlását!
Kérdéseivel és megtekintési szándékával forduljon hozzám bizalommal!
Az ingatlan kevés, igény szerint rendezhető hitellel terhelt, de 3% otthon Start és egyéb hitelre is alkalmas . M314112

Hirdetés feltöltve: 2025. 10. 06.

3 szobás panellakások ára Budapesten

Ebből az összehasonlításból megtudhatod, hogyan viszonyul a lakás ára a környékbeli panellakások átlagos árához. Ez nem azt jelenti, hogy ennyivel olcsóbb vagy drágább, mint amennyit a lakás ér, hanem hogy ennyivel tér el a környékbeli átlagtól.

Ennek a m² ára
XIX. kerület m² ár
Budapest m² ár
1434 e Ft
1103 e Ft -30%
1156 e Ft -24%
Ennek az ára
XIX. kerület átlagár
Budapest átlagár
76 M Ft m Ft
64.4 m Ft -18%
74.4 m Ft -2%

Az ingatlan elhelyezkedése

Cím: Budapest, XIX. kerület, 7. emelet

Eladó ingatlanok a környékről

Eladó panellakás
Eladó panellakás

XIX. kerület

56 M Ft
1 + 2 szoba
59 m2
Eladó családi ház
Eladó családi ház

XIX. kerület

89.9 M Ft
5 szoba
150 m2
Eladó panellakás
Eladó panellakás

XIX. kerület

56 M Ft
1 + 2 szoba
59 m2
Eladó téglalakás
Eladó téglalakás

IX. kerület

57 M Ft
1 szoba
35 m2
Eladó téglalakás
Eladó téglalakás

IX. kerület

64 M Ft
1 szoba
38 m2
Eladó panellakás
Eladó panellakás

XIX. kerület

56 M Ft
1 + 2 szoba
59 m2
Eladó panellakás
Eladó panellakás

XIX. kerület

65 M Ft
1 + 2 szoba
59 m2
Eladó téglalakás
Eladó téglalakás

XVI. kerület

78 M Ft
3 szoba
54 m2
Eladó panellakás
Eladó panellakás

XIX. kerület, Kispest

56 M Ft
1 + 2 szoba
59 m2
Eladó panellakás
Eladó panellakás

XIX. kerület

56 M Ft
1 + 2 szoba
59 m2
Eladó téglalakás
Eladó téglalakás

XVI. kerület

100.5 M Ft
4 szoba
70 m2
Eladó panellakás
Eladó panellakás

XIX. kerület

56 M Ft
1 + 2 szoba
59 m2
Eladó panellakás
Eladó panellakás

XIX. kerület, Kispest, Nagysándor József utca

56 M Ft
1 + 2 szoba
59 m2
Eladó panellakás
Eladó panellakás

XIX. kerület, Kispest

56 M Ft
1 + 2 szoba
59 m2
Eladó téglalakás
Eladó téglalakás

XVIII. kerület, Havannatelep, Baross utca

59.9 M Ft
2 szoba
55 m2
Eladó téglalakás
Eladó téglalakás

XIII. kerület

48.5 M Ft
1 szoba
24 m2
Eladó panellakás
Eladó panellakás

XIX. kerület

59.9 M Ft
2 + 1 szoba
53 m2
Eladó panellakás
Eladó panellakás

XIX. kerület

65 M Ft
1 + 2 szoba
59 m2
Eladó téglalakás
Eladó téglalakás

XVII. kerület, Rákoskeresztúr, Újlak utca

71.9 M Ft
3 szoba
51 m2
Eladó panellakás
Eladó panellakás

XIX. kerület, Kispest

64.9 M Ft
3 szoba
60 m2
Eladó panellakás
Eladó panellakás

IV. kerület

75.5 M Ft
3 szoba
59 m2
Eladó panellakás
Eladó panellakás

XIX. kerület

56 M Ft
1 + 2 szoba
59 m2
Eladó családi ház
Eladó családi ház

XVI. kerület

187 M Ft
5 szoba
125 m2
Eladó téglalakás
Eladó téglalakás

VI. kerület

122 M Ft
1 + 1 szoba
41 m2

Falusi CSOK ingatlanok

Eladó családi ház
Eladó családi ház

Úrkút, Temető utca

99 M Ft
7 szoba
540 m2
Eladó családi ház
Eladó családi ház

Örkény

29.9 M Ft
3 szoba
106 m2
Eladó családi ház
Eladó családi ház

Rédics

51 M Ft
3 szoba
107 m2
Eladó családi ház
Eladó családi ház

Aszaló

16.49 M Ft
3 szoba
112 m2
Eladó családi ház
Eladó családi ház

Ceglédbercel

63 M Ft
3 szoba
70 m2
Eladó családi ház
Eladó családi ház

Badacsonytomaj

199.8 M Ft
3 szoba
166 m2
Eladó családi ház
Eladó családi ház

Ugod

53.8 M Ft
3 szoba
137 m2
Eladó családi ház
Eladó családi ház

Csátalja, Kossuth Lajos utca

41.9 M Ft
3 szoba
90 m2