River Life

Eladó panellakás
Budapest, XIV. kerület, 2. emelet

+ 10 kép 1/13
71 500 000 Ft71.5 M Ft 1 300 000 Ft/m2
1 + 1 szoba
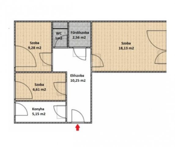
55 m²
2. emelet
építés éve:1980

Részletes adatok

Állapot: Felújított
Fűtés: Távfűtés
Emelet: 2. emelet
Extrák: Lift
Energetikai besorolás: Nem adta meg a hirdető

Az OTP Bank lakáshitel ajánlataFizetett hirdetés

+36 30 720
Nyári Katalin
referens

Érdekel az OTP Bank kedvezményes lakáshitel ajánlata? *

* A kérdésre „Igen” válasz bejelölése esetén, az „Üzenet küldése” gombra kattintva kijelentem, hogy az OTP Bank Nyrt. Adatkezelési tájékoztatójának tartalmát megismertem és tudomásul vettem.

Eladó panellakás leírása

Zugló egyik legjobb fogása – 2 loggiás, felújított lakás a Füredi lakótelepen

Zugló közkedvelt részén, a Füredi lakótelepen kínálok megvételre egy 55 m²-es, 2. emeleti, teljeskörűen felújított lakást, amely ritka adottságával – két külön loggiával – azonnal kitűnik a piacon.

Ez nem egy átlagos panel. Ez egy jól átgondolt, élhető otthon, ahol minden négyzetméternek funkciója van.

- Ami miatt azonnal beleszeretnek:
-2 külön loggia – extra tér, reggeli kávé, esti kikapcsolódás
-Klímás lakás – nyáron is komfort
-Nappali + külön háló – ideális pároknak, kis családnak
- Külön nyíló szobák – nincs átjárás
- Gardrób + kamra – ritka, brutál jó tárolás
- Felújítás (2017 – nem kozmetika, hanem alapoktól):
-villanyvezetékek teljes cseréje
-burkolatok és beltéri ajtók cseréje
-radiátorcsere
-áramhálózat bővítés

Magyarul: nem kell hozzányúlni, költözöl és kész.

Főbb adatok:
-55 m²
-1 + 1 fél szoba
-2 emelet
-lift + teherlift
tehermentes


Örs vezér tere ~10 perc séta
több buszjárat pár perc
boltok, éttermek, minden a közelben
óvoda, iskola, orvos – családbarát környezet

Kinek ideális?
első lakásnak
fiatal párnak
kisgyermekes családnak
befektetésnek (könnyen kiadható lokáció!) ...TOVÁBBI, TÖBBEZRES INGATLAN KÍNÁLAT: www.gdn-ingatlan.hu - GDN azonosító: 394756

Hirdetés feltöltve: 2026. 04. 15. Utoljára módosítva: 2026. 05. 10.

2 szobás panellakások ára Budapesten

Ebből az összehasonlításból megtudhatod, hogyan viszonyul a lakás ára a környékbeli panellakások átlagos árához. Ez nem azt jelenti, hogy ennyivel olcsóbb vagy drágább, mint amennyit a lakás ér, hanem hogy ennyivel tér el a környékbeli átlagtól.

Ennek a m² ára
XIV. kerület m² ár
Budapest m² ár
1300 e Ft
1349 e Ft 4%
1348 e Ft 4%
Ennek az ára
XIV. kerület átlagár
Budapest átlagár
71.5 M Ft m Ft
66.9 m Ft -7%
64.8 m Ft -10%

Az ingatlan elhelyezkedése

Cím: Budapest, XIV. kerület, 2. emelet

Eladó ingatlanok a környékről

XIV. kerület
Eladó panellakás

Budapest, XIV. kerület

65.2 M Ft
2 szoba
46 m²
XVI. kerület, Sashalom, Rovás utca
Eladó családi ház

Budapest, XVI. kerület

349.9 M Ft
12 szoba
478 m²
XIII. kerület, Angyalföld, Béke tér
Eladó téglalakás

Budapest, XIII. kerület

88 M Ft
2 szoba
43 m²
XIV. kerület
Eladó panellakás

Budapest, XIV. kerület

63 M Ft
2 szoba
46 m²
XIV. kerület
Eladó panellakás

Budapest, XIV. kerület

61.5 M Ft
2 szoba
46 m²
VII. kerület
Eladó téglalakás

Budapest, VII. kerület

89.9 M Ft
4 szoba
70 m²
XIV. kerület
Eladó panellakás

Budapest, XIV. kerület

74.2 M Ft
2 szoba
50 m²
VII. kerület
Eladó téglalakás

Budapest, VII. kerület

113.9 M Ft
5 szoba
134 m²
XVIII. kerület
Eladó téglalakás

Budapest, XVIII. kerület

90 M Ft
3 szoba
73 m²
III. kerület
Eladó téglalakás

Budapest, III. kerület

65.9 M Ft
2 szoba
49 m²
XIII. kerület, Angyalföld, Csata utca
Eladó téglalakás

Budapest, XIII. kerület

130 M Ft
3 szoba
0 m²
XIV. kerület
Eladó panellakás

Budapest, XIV. kerület

61.5 M Ft
2 szoba
46 m²
XIV. kerület
Eladó panellakás

Budapest, XIV. kerület

95 M Ft
2 + 1 szoba
63 m²
XVII. kerület
Eladó panellakás

Budapest, XVII. kerület

79.5 M Ft
3 szoba
63 m²
XIV. kerület
Eladó panellakás

Budapest, XIV. kerület

79.9 M Ft
3 szoba
56 m²
XIV. kerület, Alsórákos
Eladó panellakás

Budapest, XIV. kerület

74.8 M Ft
2 szoba
53 m²
VII. kerület
Eladó téglalakás

Budapest, VII. kerület

84.9 M Ft
2 szoba
66 m²
XIV. kerület
Eladó panellakás

Budapest, XIV. kerület

61.5 M Ft
2 szoba
46 m²
II. kerület
Eladó sorház

Budapest, II. kerület

209.79 M Ft
5 szoba
196 m²
XX. kerület
Eladó téglalakás

Budapest, XX. kerület

41.9 M Ft
2 szoba
53 m²
XIV. kerület
Eladó panellakás

Budapest, XIV. kerület

61.5 M Ft
2 szoba
46 m²
XXII. kerület
Eladó téglalakás

Budapest, XXII. kerület

62.5 M Ft
2 szoba
44 m²
XIV. kerület
Eladó panellakás

Budapest, XIV. kerület

79 M Ft
2 szoba
50 m²
XIV. kerület
Eladó panellakás

Budapest, XIV. kerület

69 M Ft
2 szoba
50 m²

Falusi CSOK ingatlanok

Hegyeshalom, Margaréta utca 12
Eladó téglalakás

Hegyeshalom

46.91 M Ft
2 szoba
43 m²
Sződ
Eladó családi ház

Sződ

116 M Ft
5 szoba
136 m²
Kutas
Eladó családi ház

Kutas

17.9 M Ft
2 + 1 szoba
83 m²
Balatonszemes
Eladó téglalakás

Balatonszemes

125.2 M Ft
2 szoba
50 m²
Zagyvarékas, Erdő utca 16
Eladó családi ház

Zagyvarékas

0.1 M Ft
2 szoba
113 m²
Győrság
Eladó családi ház

Győrság

89.9 M Ft
4 szoba
92 m²
Berzence
Eladó családi ház

Berzence

40 M Ft
3 szoba
233 m²
Balatonszepezd
Eladó családi ház

Balatonszepezd

299 M Ft
5 szoba
220 m²